PA
Plot 16 The Glover, Lowans Court, Off Cookridge Close, Redditch, Worcestershire, B97
By Payne Associates New Homes and Land
£ 459,000
Reviews
3 out of 5 stars
Payne Associates New Homes and Land says ..
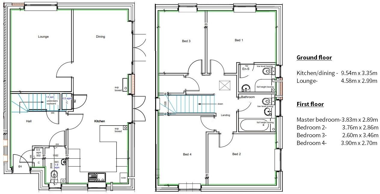
Plot 16 The Glover is a four bedroom, link detached high specification home with a single garage and off road parking, set in a cul-de-sac of just 17 private properties. Estimated build completion March 2026 These brand new homes at Lowans Court are built to a high specific...
Property Oracle says ..
Therefore, we give this property 7 / 10. *Disclaimer: This is our option and does constitute a recommendation or financial advice. Do your own research. *
- Price
- 8
- Condition
- 10
- Location
- 7
- Land
- 6
- Bedrooms
- 4
- Bathrooms
- 2
- Sqft (est)
- 936.63
The heatmap indicates the level of crime in the area. The color of the heatmap indicates the crime severity and recency.
Metrics Year-on-Year
- Average area value
- 401,278.00 £Increased by 42.31 %
- Est sale value
- 464,568.48 £Increased by 69.28 %
- Average area rental value
- 1,053.00 £/moDecreased by 6.32 %
- Est letting value
- 936.63 £/moUnchanged by 0.00 %
- Est rental Yield
- 3.15 %Decreased by 34.10 %
- Crime Rate
- 2.00 %Unchanged by 0.00 %
from 281,975.00 £
from 274,432.59 £
from 1,124.00 £/mo
from 936.63 £/mo
from 4.78 %
from 2.00 %
Agent Activity
Payne Associates New Homes and Land created the listing.
Nearby Schools
| Name | Type | Ofsted | Distance |
|---|---|---|---|
| Birchensale Middle School | Academy Converter | 0.68 KM | |
| Holyoakes Field First School | Academy Converter | 0.95 KM | |
| Pitcheroak School | Community Special School | Good | 1.19 KM |
| Batchley First And Nursery School | Community School | Good | 1.32 KM |
| Cherry Trees Children'S Centre | Children's Centre | 1.35 KM |
Images
Nearby Streets
| Name | Average Price | Average Sqft | Distance |
|---|---|---|---|
| Broad Heath Close | £ 0 | 0 | 0.00 KM |
| Alderbrook Close | £ 0 | 0 | 0.00 KM |
| Weights Drive | £ 0 | 0 | 0.00 KM |
| Windsor Road | £ 215,000 | 0 | 0.00 KM |
| Adelaide Street | £ 0 | 0 | 0.00 KM |
Nearby Transport
| Name | NLC | TLC | Distance |
|---|---|---|---|
| Redditch | 1208 | RDC | 1.33 KM |
| Alvechurch | 1198 | ALV | 3.80 KM |
| Barnt Green | 1096 | BTG | 6.70 KM |
| Longbridge | 1110 | LOB | 9.57 KM |
Nearby Listings
| Address | Price | Type | Score | Distance |
|---|---|---|---|---|
| Plot 4 The Chenille, Lowans Court, Off Cookridge Close, Redditch, Worcestershire, B97 | £ 385,000 | BUY | 7 / 10 | 0.00 KM |
| Plot 8 The Paisley, Lowans Court, Off Cookridge Close, Redditch, Worcestershire, B97 | £ 320,000 | BUY | 6 / 10 | 0.00 KM |
| Plot 17 The Milliner, Lowans Court, Off Cookridge Close, Redditch, Worcestershire, B97 | £ 385,000 | BUY | 7 / 10 | 0.00 KM |
| Plot 5 The Chenille, Lowans Court, Off Cookridge Close, Redditch, Worcestershire, B97 | £ 385,000 | BUY | Unknown | 0.00 KM |
| Plot 14 The Chenille, Lowans Court, Off Cookridge Close, Redditch, Worcestershire, B97 | £ 385,000 | BUY | 7 / 10 | 0.00 KM |
Nearby Properties
| Address | Price | Distance |
|---|---|---|
| 15 Cookridge Close | £ 246,500 | 0.01 KM |
| 12 Cookridge Close | £ 300,000 | 0.01 KM |
| 3 Cookridge Close | £ 220,000 | 0.02 KM |
| 26 Cookridge Close | £ 390,000 | 0.02 KM |
| 6 Cookridge Close | £ 239,995 | 0.02 KM |