ElliotLee says ..
Spacious 4-bed semi-detached home in friendly neighbourhood. Large lounge, second reception, practical kitchen, family-friendly layout. Good-sized garden, garage, driveway. Close to stations. Ideal for growing families.
Property Oracle says ..
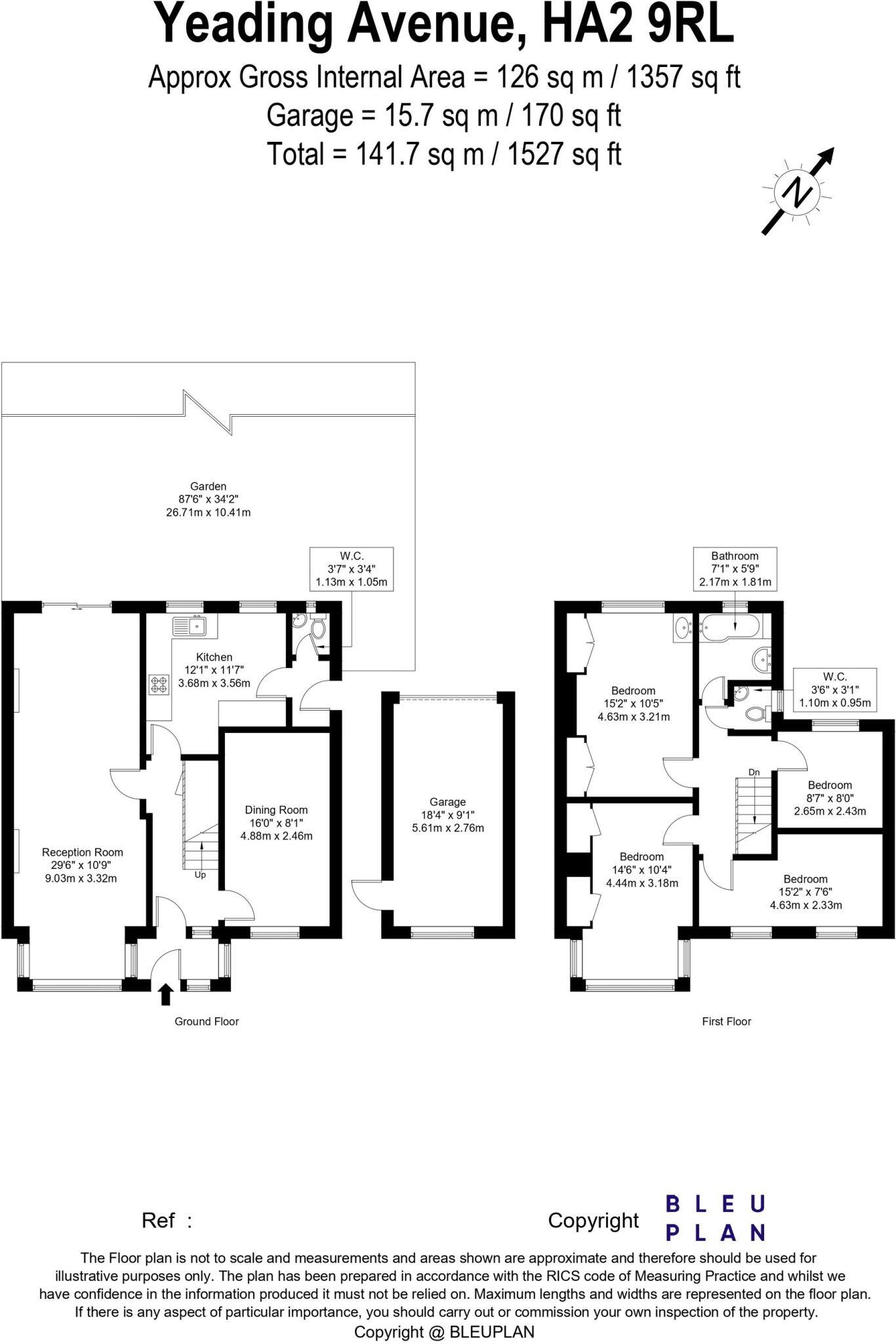
This property is a four-bedroom terraced house located on Yeading Avenue in Harrow, HA2 9RN. The property benefits from a good-sized garden and is within easy reach of local amenities and transport links. Rayners Lane tube station provides access to the Metropolitan Line, offering convenient connections to central London. The property itself is in relatively good condition, although some modernisation may be desirable to enhance its overall appeal. The list price of £625,000 is higher than the average price for similar properties in the area, but the larger plot size and additional features may justify this higher price point. However, a comprehensive survey would be recommended to confirm the overall condition and to identify any potential maintenance needs.
Therefore, we give this property 7 / 10. *Disclaimer: This is our option and does constitute a recommendation or financial advice. Do your own research. *
- Price
- 6
- Condition
- 7
- Location
- 8
- Land
- 8
- Bedrooms
- 4
- Bathrooms
- 1
- Sqft (est)
- 4,199.29
- Lot (est)
- 1,527.00
The heatmap indicates the level of crime in the area. The color of the heatmap indicates the crime severity and recency.
Metrics Year-on-Year
- Average area value
- 341,429.00 £Increased by 9.95 %
- Est sale value
- 1,314,377.77 £Decreased by 25.65 %
- Average area rental value
- 875.00 £/moDecreased by 18.53 %
- Est letting value
- 0.00 £/moDecreased by 100.00 %
- Est rental Yield
- 3.08 %Decreased by 25.78 %
- Crime Rate
- 0.00 %
Agent Activity
ElliotLee created the listing.
Nearby Schools
| Name | Type | Ofsted | Distance |
|---|---|---|---|
| Gesher School | Other Independent School | Outstanding | 0.24 KM |
| Roxbourne Primary School | Community School | Good | 0.40 KM |
| Newton Farm Nursery, Infant And Junior School | Community School | Outstanding | 0.91 KM |
| Field End Junior School | Academy Converter | 0.94 KM | |
| Field End Infant School | Community School | Outstanding | 0.94 KM |
Images
Nearby Streets
| Name | Average Price | Average Sqft | Distance |
|---|---|---|---|
| Rodney Close | £ 895,000 | 0 | 0.00 KM |
| Essex Close | £ 0 | 0 | 0.00 KM |
| Lynton Road | £ 0 | 0 | 0.00 KM |
| The Fairway | £ 708,333 | 0 | 0.00 KM |
| Garth Close | £ 0 | 0 | 0.00 KM |
Nearby Transport
| Name | NLC | TLC | Distance |
|---|---|---|---|
| South Ruislip | 3057 | SRU | 2.57 KM |
| Northolt Park | 1478 | NLT | 3.01 KM |
| Headstone Lane | 1434 | HDL | 4.34 KM |
| Hatch End | 1398 | HTE | 4.37 KM |
| Harrow-On-The-Hill | 598 | HOH | 5.02 KM |
Nearby Listings
| Address | Price | Type | Score | Distance |
|---|---|---|---|---|
| Yeading Avenue, Harrow, HA2 | £ 625,000 | BUY | 7 / 10 | 0.00 KM |
| Yeading Avenue, Harrow, HA2 | £ 520,000 | BUY | 6 / 10 | 0.09 KM |
| Yeading Avenue, Harrow, HA2 | £ 725,000 | BUY | 7 / 10 | 0.09 KM |
| Yeading Avenue, Harrow, Middlesex, HA2 | £ 625,000 | BUY | Unknown | 0.10 KM |
| Waverley Road, Harrow | £ 599,950 | BUY | Unknown | 0.16 KM |
Nearby Properties
| Address | Price | Distance |
|---|---|---|
| 35 Yeading Avenue | £ 515,000 | 0.04 KM |
| 63 Yeading Avenue | £ 335,000 | 0.04 KM |
| 79 Yeading Avenue | £ 395,000 | 0.04 KM |
| 19 Yeading Avenue | £ 293,000 | 0.04 KM |
| 45 Yeading Avenue | £ 315,500 | 0.04 KM |