CB
Greenacres Park, Meysey Hampton, Gloucestershire
By CBSlade
£ 70,000
Reviews
3 out of 5 stars
CBSlade says ..
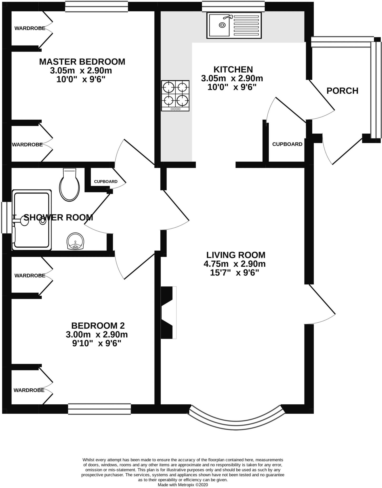
SALE AGREED by CBSlade Property Group - Set on this favoured development for the over 45's and overlooking a communal green, this spacious property has accommodation which includes two double bedrooms, shower room, inner hall, living room, kitchen, and entrance porch. There are gardens to thr...
Property Oracle says ..
Therefore, we give this property 6 / 10. *Disclaimer: This is our option and does constitute a recommendation or financial advice. Do your own research. *
- Price
- 8
- Condition
- 6
- Location
- 6
- Land
- 5
- Bedrooms
- 2
- Bathrooms
- 1
The heatmap indicates the level of crime in the area. The color of the heatmap indicates the crime severity and recency.
Metrics Year-on-Year
- Average area value
- 241,538.00 £Decreased by 4.18 %
- Average area rental value
- 846.00 £/moIncreased by 4.19 %
- Est rental Yield
- 4.20 %Increased by 8.53 %
- Crime Rate
- 0.00 %
from 252,064.00 £
from 812.00 £/mo
from 3.87 %
from 0.00 %
Agent Activity
CBSlade created the listing.
Nearby Schools
| Name | Type | Ofsted | Distance |
|---|---|---|---|
| Meysey Hampton Church Of England Primary School | Voluntary Controlled School | Outstanding | 0.87 KM |
| Down Ampney Church Of England Primary School | Voluntary Controlled School | Good | 3.74 KM |
| Bibury Church Of England Primary School | Academy Converter | 6.28 KM | |
| Farmor'S School | Academy Converter | Good | 6.52 KM |
| Meadowpark School | Other Independent School | Inadequate | 6.63 KM |
Images
Nearby Streets
| Name | Average Price | Average Sqft | Distance |
|---|---|---|---|
| Greenacres Park | £ 0 | 0 | 0.00 KM |
| London Road | £ 982,500 | 0 | 0.00 KM |
| Bell Lane | £ 585,833 | 0 | 0.00 KM |
Nearby Listings
| Address | Price | Type | Score | Distance |
|---|---|---|---|---|
| Greenacres Park, Meysey Hampton, Gloucestershire | £ 70,000 | BUY | 6 / 10 | 0.00 KM |
| Greenacres Park, Meysey Hampton, Gloucestershire. | £ 90,000 | BUY | 7 / 10 | 0.01 KM |
| Greenacres Park, Meysey Hampton, Gloucestershire. | £ 150,000 | BUY | 7 / 10 | 0.01 KM |
| Greenacres Park, Meysey Hampton, Gloucestershire | £ 130,000 | BUY | 6 / 10 | 0.01 KM |
| Greenacres Park, Meysey Hampton, Gloucestershire | £ 125,000 | BUY | Unknown | 0.01 KM |
Nearby Properties
| Address | Price | Distance |
|---|---|---|
| 18 Church Street | £ 1,200,000 | 0.76 KM |
| Old Chapel | £ 620,000 | 0.76 KM |
| 16 Church Street | £ 547,000 | 0.76 KM |
| Willowdale | £ 500,000 | 0.76 KM |
| Brake House | £ 530,000 | 0.80 KM |