Christchurch Road, London
By All in the postcode...SW19.com
£ 775,000
Reviews
3 out of 5 stars
All in the postcode...SW19.com says ..
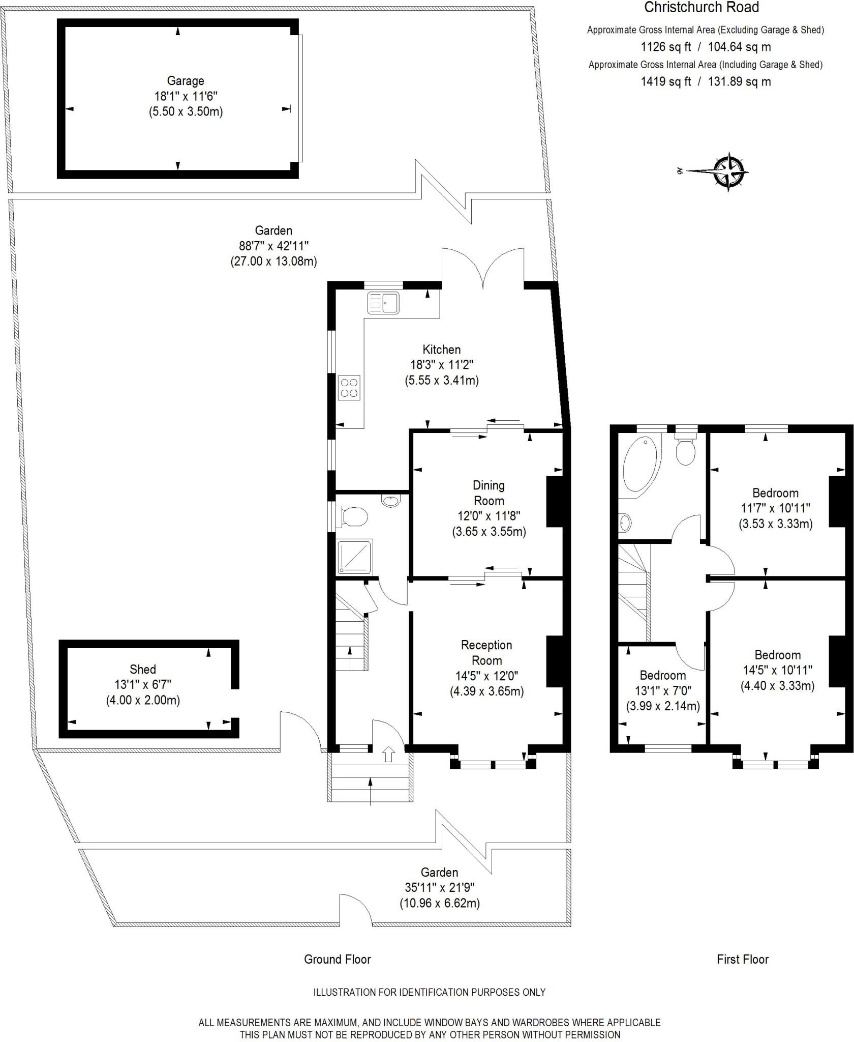
A unique three bedroom end of terrace house in need of total modernisation. This unique house is boast a extra large plot of land within the demise of the property to the side and the rear with a range of possabilities ( subject to planning) early viewing highly recomended.
Property Oracle says ..
This property is located in Colliers Wood, Merton, which is in South West London. The area benefits from good transport links, with Colliers Wood underground station (Northern Line) being within walking distance, providing easy access to central London. There are also several bus routes serving the area. The property itself is a three-bedroom house with two bathrooms. The garden is overgrown but appears to be of a reasonable size. The property is in need of some modernisation and updating, as seen in the provided photos. The list price of £775,000 seems relatively high compared to some of the nearby properties, especially considering the condition of the property and the lack of information regarding the square footage of the house. However, the proximity to transport links and schools could justify a higher price. More information about the property’s square footage would be needed to accurately assess the value for money.
Therefore, we give this property 6 / 10. *Disclaimer: This is our option and does constitute a recommendation or financial advice. Do your own research. *
- Price
- 5
- Condition
- 6
- Location
- 8
- Land
- 7
- Bedrooms
- 3
- Bathrooms
- 2
- Sqft (est)
- 6,200.12
The heatmap indicates the level of crime in the area. The color of the heatmap indicates the crime severity and recency.
Metrics Year-on-Year
- Average area value
- 578,333.00 £Increased by 10.22 %
- Est sale value
- 4,383,484.84 £Increased by 13.48 %
- Average area rental value
- 2,070.00 £/moIncreased by 12.32 %
- Est letting value
- 12,400.24 £/moUnchanged by 0.00 %
- Est rental Yield
- 4.30 %Increased by 2.14 %
- Crime Rate
- 12.00 %Unchanged by 0.00 %
Agent Activity
All in the postcode...SW19.com created the listing.
Nearby Schools
| Name | Type | Ofsted | Distance |
|---|---|---|---|
| Singlegate Primary School | Community School | Outstanding | 0.18 KM |
| All Saints' Cofe Primary School | Voluntary Aided School | Good | 0.63 KM |
| Church Road Children'S Centre | Children's Centre Linked Site | 0.85 KM | |
| Haslemere Primary School | Community School | Good | 1.04 KM |
| Garfield Primary School | Community School | Good | 1.06 KM |
Images
Nearby Streets
| Name | Average Price | Average Sqft | Distance |
|---|---|---|---|
| Breakspear Gardens | £ 0 | 0 | 0.00 KM |
| Holmbury Court | £ 0 | 0 | 0.00 KM |
| East Road | £ 791,667 | 0 | 0.00 KM |
| Laburnum Road | £ 546,667 | 0 | 0.00 KM |
| Littlers Close | £ 330,000 | 0 | 0.00 KM |
Nearby Transport
| Name | NLC | TLC | Distance |
|---|---|---|---|
| Haydons Road | 5289 | HYR | 1.57 KM |
| Tooting | 5389 | TOO | 1.86 KM |
| Mitcham Eastfields | 5069 | MTC | 2.74 KM |
| Earlsfield | 5584 | EAD | 3.07 KM |
| Wimbledon | 5578 | WIM | 3.21 KM |
Nearby Listings
| Address | Price | Type | Score | Distance |
|---|---|---|---|---|
| Christchurch Road, London | £ 775,000 | BUY | 6 / 10 | 0.00 KM |
| Christchurch Road, Colliers Wood, London SW19 | £ 1,350,000 | BUY | 5 / 10 | 0.12 KM |
| Valley Gardens, Central Colliers Wood | £ 840,000 | BUY | 8 / 10 | 0.13 KM |
| Colwood Gardens, London, SW19 | £ 850,000 | BUY | 6 / 10 | 0.15 KM |
| Christchurch Close, Colliers Wood | £ 675,000 | BUY | 6 / 10 | 0.15 KM |
Nearby Properties
| Address | Price | Distance |
|---|---|---|
| 32 Christchurch Close | £ 830,000 | 0.17 KM |
| 14 Christchurch Close | £ 340,000 | 0.17 KM |
| 7 Christchurch Close | £ 185,000 | 0.17 KM |
| 5 Christchurch Close | £ 310,000 | 0.17 KM |
| 41 Christchurch Close | £ 68,000 | 0.17 KM |