Teignmouth Road, Willesden Green
By Empire Estates
£ 794,950
Reviews
3 out of 5 stars
Empire Estates says ..
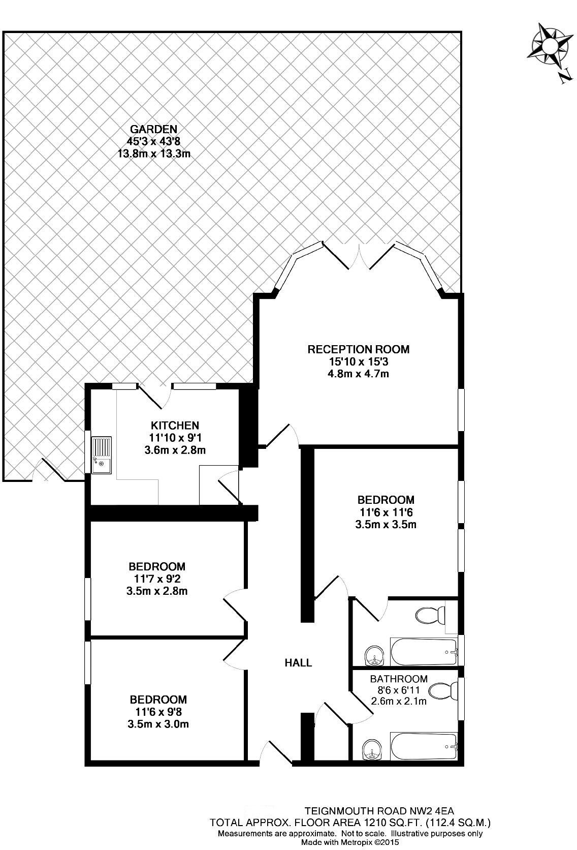
With superb proportions and abundance of natural lighting throughout. Empire Estates are pleased to offer for sale this larger than average 3 bedroom ground floor flat with sole use of the garden located in the highly sought after Mapesbury Conservation area. The property consists of three large ...
Property Oracle says ..
This is a three-bedroom flat in Willesden Green, London. The property is in a good location, close to schools and transportation. The condition is reasonable, but the property could benefit from some modernisation. It has a garden. The price seems reasonable for the location and size of the property. The flat offers 1,209.86 sqft of living space. The nearby school, Anson Primary School, has a ‘Good’ Ofsted rating. The closest train station is Cricklewood.
Therefore, we give this property 6 / 10. *Disclaimer: This is our option and does constitute a recommendation or financial advice. Do your own research. *
- Price
- 7
- Condition
- 6
- Location
- 7
- Land
- 7
- Bedrooms
- 3
- Bathrooms
- 2
- Sqft (est)
- 1,209.86
The heatmap indicates the level of crime in the area. The color of the heatmap indicates the crime severity and recency.
Metrics Year-on-Year
- Average area value
- 1,318,000.00 £Increased by 70.66 %
- Est sale value
- 1,784,543.50 £Increased by 119.49 %
- Average area rental value
- 1,474.00 £/moDecreased by 27.60 %
- Est letting value
- 1,209.86 £/moUnchanged by 0.00 %
- Est rental Yield
- 1.34 %Decreased by 57.59 %
- Crime Rate
- 2.00 %Unchanged by 0.00 %
Agent Activity
Empire Estates created the listing.
Nearby Schools
| Name | Type | Ofsted | Distance |
|---|---|---|---|
| Anson Primary School | Community School | Good | 0.39 KM |
| North West London Jewish Day School | Academy Converter | Good | 0.98 KM |
| Malorees Junior School | Foundation School | Good | 1.03 KM |
| Brondesbury College London | Other Independent School | Outstanding | 1.06 KM |
| Convent Of Jesus And Mary Rc Infant School | Voluntary Aided School | Outstanding | 1.07 KM |
Images
Nearby Streets
| Name | Average Price | Average Sqft | Distance |
|---|---|---|---|
| Clovelly Court | £ 0 | 0 | 0.00 KM |
| Sylvan Grove | £ 0 | 0 | 0.00 KM |
| Brondesbury Park | £ 2,583,333 | 0 | 0.00 KM |
| Gardiner Avenue | £ 0 | 0 | 0.00 KM |
| Staverton Road | £ 0 | 0 | 0.00 KM |
Nearby Transport
| Name | NLC | TLC | Distance |
|---|---|---|---|
| Cricklewood | 1519 | CRI | 1.06 KM |
| Brondesbury Park | 1438 | BSP | 1.38 KM |
| Kensal Rise | 1448 | KNR | 1.78 KM |
| Brondesbury | 1437 | BSY | 1.82 KM |
| Queens Park (London) | 1419 | QPW | 2.32 KM |
Nearby Listings
| Address | Price | Type | Score | Distance |
|---|---|---|---|---|
| Teignmouth Road, Willesden Green | £ 794,950 | BUY | 6 / 10 | 0.00 KM |
| Teignmouth Road, Willesden Green | £ 574,950 | BUY | 6 / 10 | 0.00 KM |
| Teignmouth Road, Willesden Green | £ 749,950 | BUY | 5 / 10 | 0.00 KM |
| Teignmouth Road, Willesden Green | £ 794,950 | BUY | 6 / 10 | 0.00 KM |
| Teignmouth Road, London NW2 | £ 1,395,000 | BUY | 7 / 10 | 0.05 KM |
Nearby Properties
| Address | Price | Distance |
|---|---|---|
| 89a Teignmouth Road | £ 380,000 | 0.00 KM |
| 75 Teignmouth Road | £ 1,360,000 | 0.00 KM |
| 79b Teignmouth Road | £ 398,500 | 0.00 KM |
| 85 Teignmouth Road | £ 800,000 | 0.00 KM |
| 89c Teignmouth Road | £ 240,000 | 0.00 KM |