Castle Street, Ludlow, Shropshire
By McCartneys LLP
£ 124,950
Reviews
2 out of 5 stars
McCartneys LLP says ..
In the heart of historic Ludlow overlooking Castle Square this third floor apartment offers light and airy accommodation. With a newly fitted Kitchen and electric heating. Enjoying views over the Town. Available with no upward chain.
Property Oracle says ..
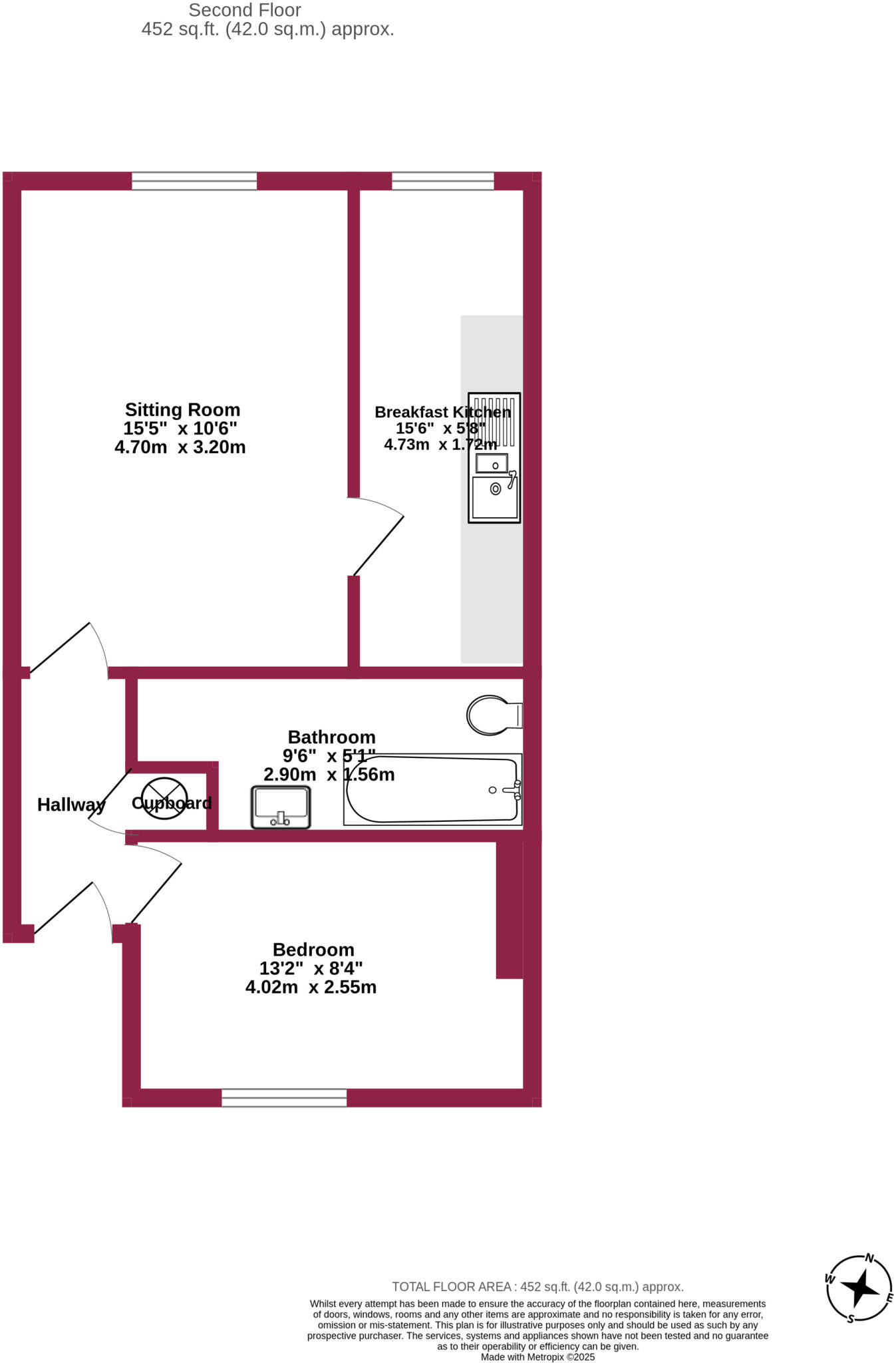
This is a one-bedroom apartment located on Castle Street in Ludlow. The property is situated in a prime location, offering convenient access to local amenities and transport links. The apartment itself is of a traditional style, and while it appears to be in a generally fair condition, some modernization could enhance its appeal. The lack of private land is typical for an apartment in a town-center location. The asking price appears reasonable when compared to the average price per square foot in the area. The property is near to local schools and the Ludlow train station.
Therefore, we give this property 5 / 10. *Disclaimer: This is our option and does constitute a recommendation or financial advice. Do your own research. *
- Price
- 7
- Condition
- 6
- Location
- 8
- Land
- 1
- Bedrooms
- 1
- Bathrooms
- 1
- Sqft (est)
- 410.89
The heatmap indicates the level of crime in the area. The color of the heatmap indicates the crime severity and recency.
Metrics Year-on-Year
- Average area value
- 279,983.00 £Decreased by 11.77 %
- Est sale value
- 193,118.30 £Increased by 58.78 %
- Average area rental value
- 1,185.00 £/moIncreased by 50.57 %
- Est letting value
- 410.89 £/mo
- Est rental Yield
- 5.08 %Increased by 70.47 %
- Crime Rate
- 50.00 %Unchanged by 0.00 %
Agent Activity
McCartneys LLP created the listing.
Nearby Schools
| Name | Type | Ofsted | Distance |
|---|---|---|---|
| Shropshire Sw Early Help Family Hub | Children's Centre | 0.44 KM | |
| St Laurence Cofe Primary School | Voluntary Controlled School | Good | 0.70 KM |
| Ludlow Church Of England School | Academy Converter | Good | 1.46 KM |
| Shropshire Sw Early Help Family Hub (2) | Children's Centre | 1.67 KM | |
| Ludlow Primary School | Academy Converter | Good | 2.03 KM |
Images
Nearby Streets
| Name | Average Price | Average Sqft | Distance |
|---|---|---|---|
| Mews Cottages | £ 275,000 | 0 | 0.00 KM |
| Harp Lane | £ 0 | 0 | 0.00 KM |
| The Narrows | £ 0 | 0 | 0.00 KM |
| Callens | £ 0 | 0 | 0.00 KM |
| King Street | £ 0 | 0 | 0.00 KM |
Nearby Transport
| Name | NLC | TLC | Distance |
|---|---|---|---|
| Ludlow | 3635 | LUD | 0.62 KM |
Nearby Listings
| Address | Price | Type | Score | Distance |
|---|---|---|---|---|
| Castle Street, Ludlow, Shropshire | £ 124,950 | BUY | 5 / 10 | 0.00 KM |
| Castle Street, Ludlow | £ 500,000 | BUY | 6 / 10 | 0.05 KM |
| Quality Square, Ludlow | £ 109,950 | BUY | 6 / 10 | 0.05 KM |
| Flat 4, Castle Street, Ludlow, Shropshire | £ 140,000 | BUY | 6 / 10 | 0.05 KM |
| Castle Street, Ludlow | £ 350,000 | BUY | 5 / 10 | 0.05 KM |
Nearby Properties
| Address | Price | Distance |
|---|---|---|
| 2a Quality Square | £ 360,000 | 0.06 KM |
| 9 Raven Lane | £ 138,000 | 0.07 KM |
| 6 Raven Lane | £ 385,000 | 0.07 KM |
| 18a Raven Lane | £ 134,950 | 0.07 KM |
| 13 Raven Lane | £ 400,000 | 0.07 KM |