Homes on Web Ltd says ..
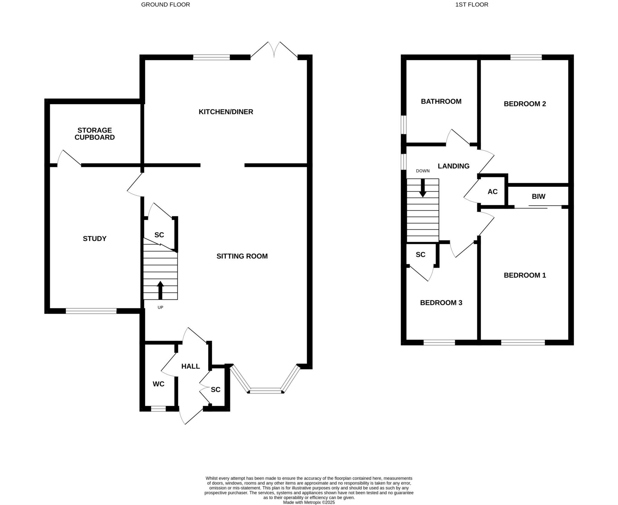
THREE BEDROOM SEMI DETACHED PROPERTY...STUDY (10`7 X 7`8 max)...LARGE SOUTH/WEST FACING REAR GARDEN...DOWNSTAIRS CLOAKROOM...SHENLEY BROOK END SCHOOL CATCHMENT...POTENTIAL TO EXTEND STP
Property Oracle says ..
Therefore, we give this property 7 / 10. *Disclaimer: This is our option and does constitute a recommendation or financial advice. Do your own research. *
- Price
- 6
- Condition
- 8
- Location
- 7
- Land
- 7
- Bedrooms
- 3
- Bathrooms
- 1
- Sqft (est)
- 982.00
The heatmap indicates the level of crime in the area. The color of the heatmap indicates the crime severity and recency.
Metrics Year-on-Year
- Average area value
- 451,286.00 £Increased by 32.54 %
- Est sale value
- 308,348.00 £Decreased by 13.50 %
- Average area rental value
- 1,410.00 £/moDecreased by 12.04 %
- Est letting value
- 0.00 £/moDecreased by 100.00 %
- Est rental Yield
- 3.75 %Decreased by 33.63 %
- Crime Rate
- 5.00 %Unchanged by 0.00 %
from 340,490.00 £
from 356,466.00 £
from 1,603.00 £/mo
from 982.00 £/mo
from 5.65 %
from 5.00 %
Agent Activity
Homes on Web Ltd created the listing.
Nearby Schools
| Name | Type | Ofsted | Distance |
|---|---|---|---|
| Barleyhurst Park Primary | Community School | Good | 0.72 KM |
| Romans Field School | Community Special School | Good | 0.77 KM |
| Milton Keynes Primary Pupil Referral Unit | Pupil Referral Unit | Good | 0.81 KM |
| Cold Harbour Church Of England School | Voluntary Controlled School | Requires improvement | 0.83 KM |
| Sunshine Children'S Centre | Children's Centre | 1.29 KM |
Images
Nearby Streets
| Name | Average Price | Average Sqft | Distance |
|---|---|---|---|
| Parkside | £ 0 | 0 | 0.00 KM |
| Highland Close | £ 587,498 | 0 | 0.00 KM |
| Taunton Deane redway | £ 0 | 0 | 0.00 KM |
| Derwent Drive | £ 0 | 0 | 0.00 KM |
| Denbigh Hall Drive | £ 0 | 0 | 0.00 KM |
Nearby Transport
| Name | NLC | TLC | Distance |
|---|---|---|---|
| Bletchley | 1360 | BLY | 2.98 KM |
| Milton Keynes Central | 1378 | MKC | 3.32 KM |
| Fenny Stratford | 1377 | FEN | 4.95 KM |
| Bow Brickhill | 1381 | BWB | 7.09 KM |
| Wolverton | 1364 | WOL | 8.09 KM |
Nearby Listings
| Address | Price | Type | Score | Distance |
|---|---|---|---|---|
| Perracombe, Furzton | £ 350,000 | BUY | 7 / 10 | 0.00 KM |
| Blackmoor Gate, Furzton | £ 600,000 | BUY | 7 / 10 | 0.05 KM |
| Perracombe, Furzton Milton Keynes, MK4 | £ 210,000 | BUY | 8 / 10 | 0.10 KM |
| Withycombe, Furzton | £ 220,000 | BUY | Unknown | 0.11 KM |
| Withycombe, Furzton, Milton Keynes, Buckinghamshire, MK4 1ET | £ 250,000 | BUY | 5 / 10 | 0.12 KM |
Nearby Properties
| Address | Price | Distance |
|---|---|---|
| 60 Blackmoor Gate | £ 194,995 | 0.04 KM |
| 54 Blackmoor Gate | £ 80,000 | 0.04 KM |
| 58 Blackmoor Gate | £ 275,000 | 0.04 KM |
| 46 Blackmoor Gate | £ 162,500 | 0.04 KM |
| 52 Blackmoor Gate | £ 265,000 | 0.04 KM |