Pen Y Cefn, Caerwys, Mold, Denbighshire, CH7
WI

Pen Y Cefn, Caerwys, Mold, Denbighshire, CH7

By William Gleave

£ 325,000

Reviews

3 out of 5 stars

William Gleave says ..

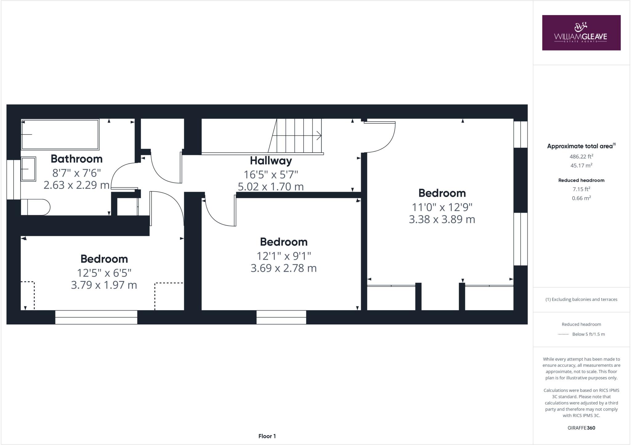
BEAUTIFUL SURROUNDINGS | 360° OPEN COUNTRYSIDE VIEWS | OPTIONAL FOURTH BEDROOM | OFF-ROAD PARKING We are delighted to present this charming three/four-bedroom semi-detached home in the highly sought-after area of Pen-Y-Cefn, on the outskirts of Caerwys. Positioned to en...

Property Oracle says ..

This property is a 3-bedroom semi-detached house located in Caerwys, Flintshire. Based on the images, the property appears to be in reasonable condition, though some modernisation may be desirable. The kitchen shows signs of age, and the bathrooms could benefit from updating. The property has a garden, and the location appears to be in a quiet residential area. The list price of £325,000 is slightly higher than the average price for the area (£312,744), but considering the size of the property (1,038 sq ft) and the presence of a garden, it could be considered reasonable. However, the lack of information on the plot size and the absence of details on nearby transportation and school Ofsted ratings make a complete assessment challenging.

Therefore, we give this property 6 / 10. *Disclaimer: This is our option and does constitute a recommendation or financial advice. Do your own research. *

Price
7
Condition
6
Location
7
Land
7
Bedrooms
3
Bathrooms
1
Sqft (est)
1,038.29

The heatmap indicates the level of crime in the area. The color of the heatmap indicates the crime severity and recency.

Metrics Year-on-Year

Average area value
267,500.00 £
Decreased by 0.99 %
from 270,182.00 £
Est sale value
266,840.53 £
Increased by 5.33 %
from 253,342.76 £
Average area rental value
1,107.00 £/mo
Decreased by 6.11 %
from 1,179.00 £/mo
Est letting value
1,038.29 £/mo
Unchanged by 0.00 %
from 1,038.29 £/mo
Est rental Yield
4.97 %
Decreased by 5.15 %
from 5.24 %
Crime Rate
22.00 %
Unchanged by 0.00 %
from 22.00 %

Agent Activity

  • William Gleave created the listing.

Nearby Schools

NameTypeOfstedDistance
Ysgol Yr EsgobWelsh Establishment0.77 KM
Ysgol Y Llan, Whitford V.P.Welsh Establishment6.22 KM
Bodfari C.P. SchoolWelsh Establishment6.33 KM
Ysgol Bro CarmelWelsh Establishment7.09 KM
Ysgol Gynradd TreloganWelsh Establishment7.25 KM

Images

Picture 1 Picture 2 Picture 3 Picture 4 Picture 5 Picture 6 Picture 7 Picture 8 Picture 9 Picture 10 Picture 11 Picture 12 Picture 13 Picture 14 Picture 15 Picture No. 31 Picture 17 Picture 18 Picture 19 Picture 20 Picture 21 Picture 26 Picture 27 Picture 28 Picture 29 Picture 30 Picture 31 Picture 32 Picture 33 Picture 22 Picture 23 Picture 24 Picture 25

Nearby Streets

NameAverage PriceAverage SqftDistance
St Michael's Close £ 000.00 KM
Chapel Street £ 000.00 KM
Llys-Y-Pentre £ 000.00 KM
Railway Terrace £ 171,50000.00 KM
Park View £ 000.00 KM

Nearby Listings

AddressPriceTypeScoreDistance
Pen Y Cefn, Caerwys, Mold, Denbighshire, CH7 £ 325,000BUY6 / 100.00 KM
Pen Y Cefn Road, Caerwys, Mold £ 250,000BUYUnknown0.06 KM
High Street, Caerwys, Mold, Flintshire, CH7 £ 170,000BUYUnknown0.10 KM
Pen Y Cefn Road, Caerwys, Mold £ 339,950BUYUnknown0.11 KM
Pen Y Cefn Road, Caerwys £ 349,950BUY7 / 100.14 KM

Nearby Properties

AddressPriceDistance
12 Ffordd Angharad £ 250,0000.08 KM
16 Ffordd Angharad £ 205,0000.08 KM
5 Ffordd Angharad £ 168,0000.08 KM
2 Ffordd Angharad £ 157,0000.08 KM
1 Ffordd Angharad £ 130,0000.08 KM