FR
Marshalls Heath Lane, Wheathampstead, St. Albans, Hertfordshire, AL4
By Frost's Estate Agents
£ 440,000
Reviews
3 out of 5 stars
Frost's Estate Agents says ..
Offering pleasant views and only moments away from open countryside walks, this charming period cottage offers a perfect blend of character with modern appeal. This lovely home is ideally placed offering easy access to highly regarded local schools as well as within 1.3 miles of Wheath...
Property Oracle says ..
Therefore, we give this property 7 / 10. *Disclaimer: This is our option and does constitute a recommendation or financial advice. Do your own research. *
- Price
- 6
- Condition
- 8
- Location
- 7
- Land
- 7
- Bedrooms
- 2
- Bathrooms
- 1
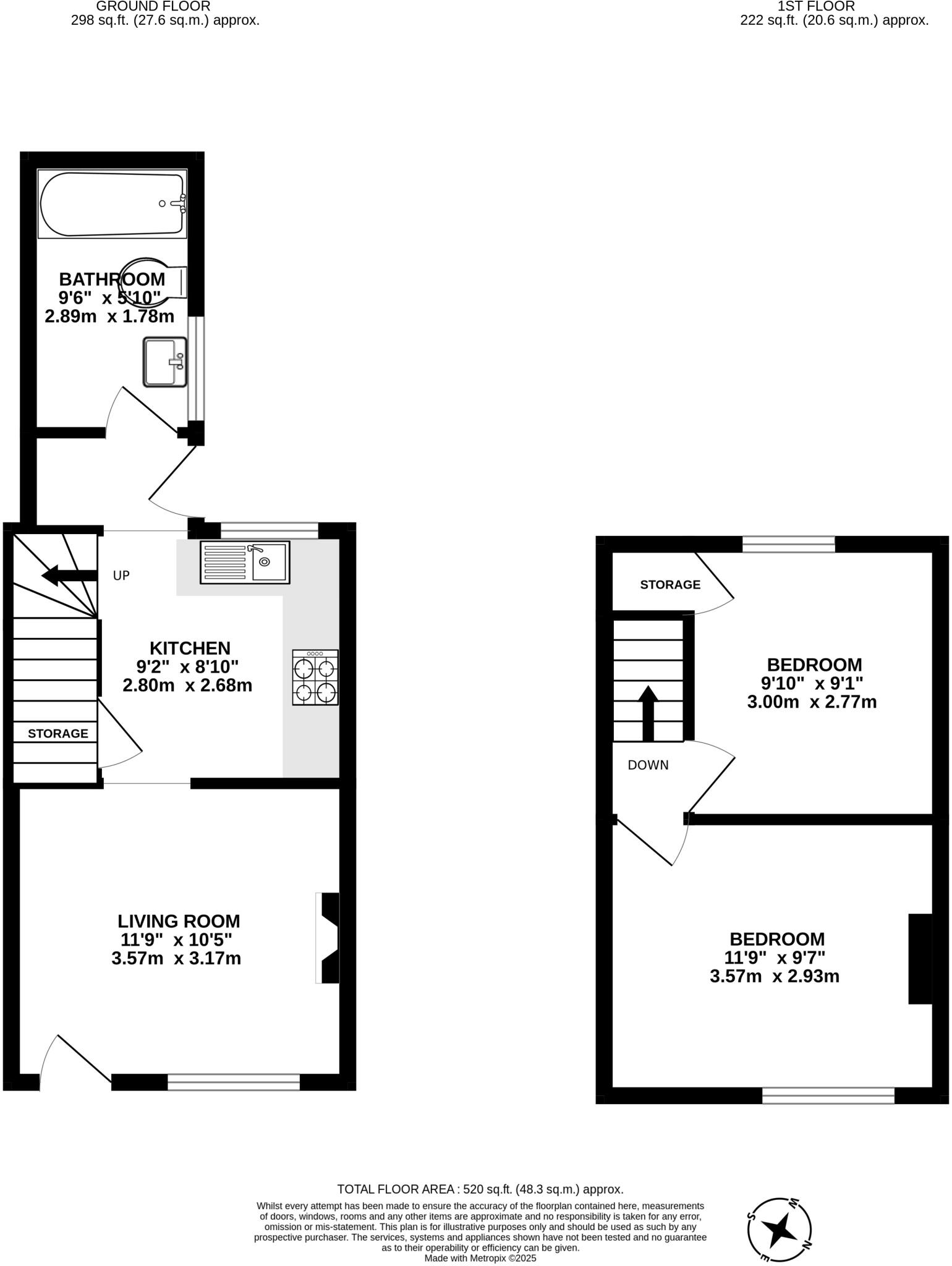
- Sqft (est)
- 519.90
The heatmap indicates the level of crime in the area. The color of the heatmap indicates the crime severity and recency.
Metrics Year-on-Year
- Average area value
- 903,571.00 £Increased by 35.99 %
- Est sale value
- 363,410.10 £Increased by 9.39 %
- Average area rental value
- 4,500.00 £/moIncreased by 168.18 %
- Est letting value
- 1,559.70 £/moIncreased by 200.00 %
- Est rental Yield
- 5.98 %Increased by 97.36 %
- Crime Rate
- 11.00 %Unchanged by 0.00 %
from 664,415.00 £
from 332,216.10 £
from 1,678.00 £/mo
from 519.90 £/mo
from 3.03 %
from 11.00 %
Agent Activity
Frost's Estate Agents created the listing.
Nearby Schools
| Name | Type | Ofsted | Distance |
|---|---|---|---|
| Aldwickbury School | Other Independent School | 1.80 KM | |
| High Beeches Primary School | Community School | Outstanding | 2.33 KM |
| Sa2 Batford Family Centre | Children's Centre | 2.33 KM | |
| Batford Nursery School | Local Authority Nursery School | Outstanding | 2.46 KM |
| Sauncey Wood Primary School | Community School | Good | 2.47 KM |
Images
Nearby Transport
| Name | NLC | TLC | Distance |
|---|---|---|---|
| Harpenden | 1543 | HPD | 3.92 KM |
| St Albans City | 1548 | SAC | 7.73 KM |
| St Albans Abbey | 1562 | SAA | 8.77 KM |
Nearby Listings
| Address | Price | Type | Score | Distance |
|---|---|---|---|---|
| Marshalls Heath Lane, Wheathampstead, St. Albans, Hertfordshire, AL4 | £ 440,000 | BUY | 7 / 10 | 0.00 KM |
| Marshalls Heath Lane, Wheathampstead, St. Albans, Hertfordshire, AL4 | £ 1,250,000 | BUY | 7 / 10 | 0.01 KM |
| Lower Luton Road, Wheathampstead, St. Albans, AL4 | £ 625,000 | BUY | 7 / 10 | 0.09 KM |
| Marshalls Way, Wheathampstead, St. Albans, Hertfordshire, AL4 | £ 800,000 | BUY | 7 / 10 | 0.14 KM |
| Lower Luton Road, Wheathampstead, Wheathampstead, AL4 | £ 650,000 | BUY | 7 / 10 | 0.19 KM |
Nearby Properties
| Address | Price | Distance |
|---|---|---|
| 264 Lower Luton Road | £ 355,000 | 0.00 KM |
| 11 Marshalls Heath Lane | £ 610,000 | 0.00 KM |
| 8 Marshalls Heath Lane | £ 490,000 | 0.00 KM |
| 12 Marshalls Heath Lane | £ 680,000 | 0.01 KM |
| 15b Marshalls Heath Lane | £ 742,500 | 0.01 KM |