Parkend Crescent, Shieldhill, FK1
By RE/MAX Property Marketing Centre
£ 160,000
Reviews
3 out of 5 stars
RE/MAX Property Marketing Centre says ..
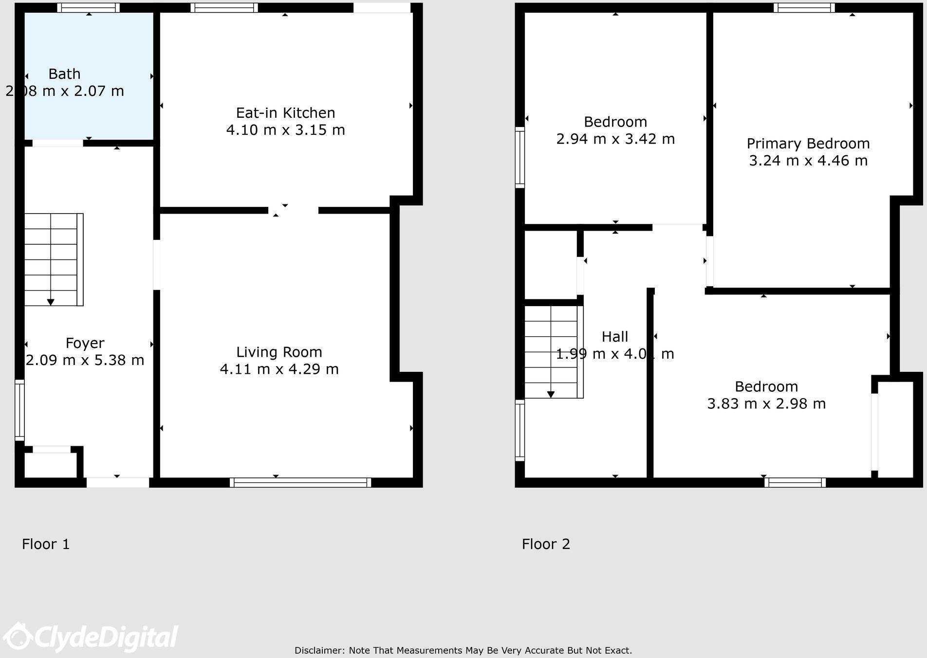
Beautifully presented 3-bed semi-detached home in Shieldhill, Falkirk. Generous plot, private driveway, enclosed rear garden, modern interior - perfect for families, first-time buyers, or upsizing.
Property Oracle says ..
Therefore, we give this property 7 / 10. *Disclaimer: This is our option and does constitute a recommendation or financial advice. Do your own research. *
- Price
- 8
- Condition
- 8
- Location
- 6
- Land
- 7
- Bedrooms
- 3
- Bathrooms
- 1
- Sqft (est)
- 472.31
The heatmap indicates the level of crime in the area. The color of the heatmap indicates the crime severity and recency.
Metrics Year-on-Year
- Average area value
- 490,000.00 £Decreased by 5.86 %
- Est sale value
- 213,484.12 £Increased by 75.88 %
- Average area rental value
- 1,975.00 £/moIncreased by 83.72 %
- Est letting value
- 472.31 £/mo
- Est rental Yield
- 4.84 %Increased by 95.16 %
- Crime Rate
- 0.00 %
from 520,498.00 £
from 121,383.67 £
from 1,075.00 £/mo
from 0.00 £/mo
from 2.48 %
from 0.00 %
Agent Activity
RE/MAX Property Marketing Centre created the listing.
Nearby Schools
| Name | Type | Ofsted | Distance |
|---|---|---|---|
| Oakwood School | Offshore Schools | 3.40 KM |
Images
Nearby Streets
| Name | Average Price | Average Sqft | Distance |
|---|---|---|---|
| Greencraig Avenue | £ 0 | 0 | 0.00 KM |
| Mavisbank Avenue | £ 0 | 0 | 0.00 KM |
| Pirleyhill Drive | £ 0 | 0 | 0.00 KM |
| Vorlich Drive | £ 175,000 | 0 | 0.00 KM |
| Rannock Place | £ 0 | 0 | 0.00 KM |
Nearby Transport
| Name | NLC | TLC | Distance |
|---|---|---|---|
| Falkirk High | 9931 | FKK | 3.01 KM |
| Falkirk Grahamston | 9930 | FKG | 3.60 KM |
| Camelon | 9878 | CMO | 6.17 KM |
| Polmont | 9936 | PMT | 6.58 KM |
| Larbert | 9876 | LBT | 8.45 KM |
Nearby Listings
| Address | Price | Type | Score | Distance |
|---|---|---|---|---|
| Parkend Crescent, Shieldhill, FK1 | £ 160,000 | BUY | 7 / 10 | 0.00 KM |
| Parkend Crescent, Shieldhill, FK1 | £ 177,000 | BUY | 6 / 10 | 0.07 KM |
| Greencraig Avenue, Shieldhill, FK1 | £ 118,000 | BUY | Unknown | 0.25 KM |
| Main Street,Shieldhill,Falkirk,FK1 2HE | £ 120,000 | BUY | 7 / 10 | 0.26 KM |
| Cross Brae, Shieldhill, FK1 | £ 145,000 | BUY | 6 / 10 | 0.28 KM |