Crown Street, Duffield, Belper
By Boxall Brown & Jones
£ 205,000
Reviews
2 out of 5 stars
Boxall Brown & Jones says ..
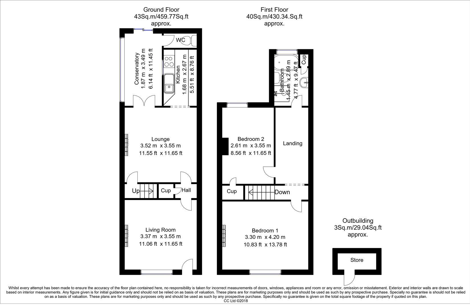
Located in the heart of Duffield just a short distance away from the vibrant high street is this two bedroom mid-cottage requiring a scheme of modernisation and improvement but offering excellent potential.
Property Oracle says ..
This two-bedroom terraced house in Duffield, Derbyshire, presents a mixed bag of attributes. Its location on Crown Street offers excellent access to the village’s amenities, including shops, schools, and the railway station. The proximity to highly-regarded schools like Ecclesbourne School and William Gilbert Endowed Church of England Primary School is a strong selling point for families. The train station provides easy access to Derby and beyond.
However, the property requires modernisation. While the exterior looks structurally sound, the interior likely needs updating to enhance its appeal and value. The image suggests a lack of outdoor space, which might be a significant drawback for potential buyers seeking a garden.
The asking price is slightly above average based on a limited available sample for Duffield. There are several comparably priced properties nearby that require similar renovations. The lack of information regarding the square footage of the listed properties makes direct comparisons more challenging. A thorough survey and potential cost estimates for renovation are strongly advised for any potential buyers before committing to a purchase. In short, the property presents a good opportunity for someone willing to undertake renovation projects, but certain limitations need to be considered.
Therefore, we give this property 5 / 10. *Disclaimer: This is our option and does constitute a recommendation or financial advice. Do your own research. *
- Price
- 7
- Condition
- 6
- Location
- 7
- Land
- 1
- Bedrooms
- 2
- Bathrooms
- 1
- Sqft (est)
- 490.77
The heatmap indicates the level of crime in the area. The color of the heatmap indicates the crime severity and recency.
Metrics Year-on-Year
- Average area value
- 383,980.00 £Decreased by 24.53 %
- Est sale value
- 258,145.02 £Increased by 6.26 %
- Average area rental value
- 1,505.00 £/moIncreased by 11.23 %
- Est letting value
- 981.54 £/moIncreased by 100.00 %
- Est rental Yield
- 4.70 %Increased by 47.34 %
- Crime Rate
- 55.00 %Unchanged by 0.00 %
Agent Activity
Boxall Brown & Jones created the listing.
Nearby Schools
| Name | Type | Ofsted | Distance |
|---|---|---|---|
| William Gilbert Endowed Church Of England Primary School | Academy Converter | 0.24 KM | |
| The Ecclesbourne School | Academy Converter | 0.30 KM | |
| Duffield The Meadows Primary School | Community School | Good | 0.94 KM |
| Milford Primary School | Community School | Good | 1.96 KM |
| The Curzon Cofe Primary School | Voluntary Aided School | Good | 2.96 KM |
Images
Nearby Streets
| Name | Average Price | Average Sqft | Distance |
|---|---|---|---|
| Mayfair Court | £ 0 | 0 | 0.00 KM |
| The Croft | £ 0 | 0 | 0.00 KM |
| Springfield Drive | £ 0 | 0 | 0.00 KM |
| William Close | £ 0 | 0 | 0.00 KM |
| Cedar Close | £ 0 | 0 | 0.00 KM |
Nearby Transport
| Name | NLC | TLC | Distance |
|---|---|---|---|
| Duffield | 1691 | DFI | 0.46 KM |
| Belper | 1679 | BLP | 4.03 KM |
| Ambergate | 1678 | AMB | 8.09 KM |
| Derby | 1823 | DBY | 8.53 KM |
Nearby Listings
| Address | Price | Type | Score | Distance |
|---|---|---|---|---|
| Crown Street, Duffield, Belper | £ 205,000 | BUY | 5 / 10 | 0.00 KM |
| Tamworth Street, Duffield, DE56 | £ 400,000 | BUY | 8 / 10 | 0.06 KM |
| Crown Street, Duffield | £ 189,950 | BUY | 5 / 10 | 0.07 KM |
| King Street, Duffield, Belper | £ 180,000 | BUY | 7 / 10 | 0.07 KM |
| King Street, Duffield, DE56 | £ 160,000 | BUY | 6 / 10 | 0.08 KM |
Nearby Properties
| Address | Price | Distance |
|---|---|---|
| 2 Tamworth Rise | £ 139,500 | 0.04 KM |
| 5 Tamworth Rise | £ 170,000 | 0.04 KM |
| 16 Crown Street | £ 153,000 | 0.04 KM |
| 9 Crown Street | £ 37,500 | 0.04 KM |
| 1 Crown Street | £ 194,220 | 0.04 KM |