The Ayalon - Plot 33, Bell Street, Hebburn
By WalkersXchange
£ 339,950
Reviews
3 out of 5 stars
WalkersXchange says ..
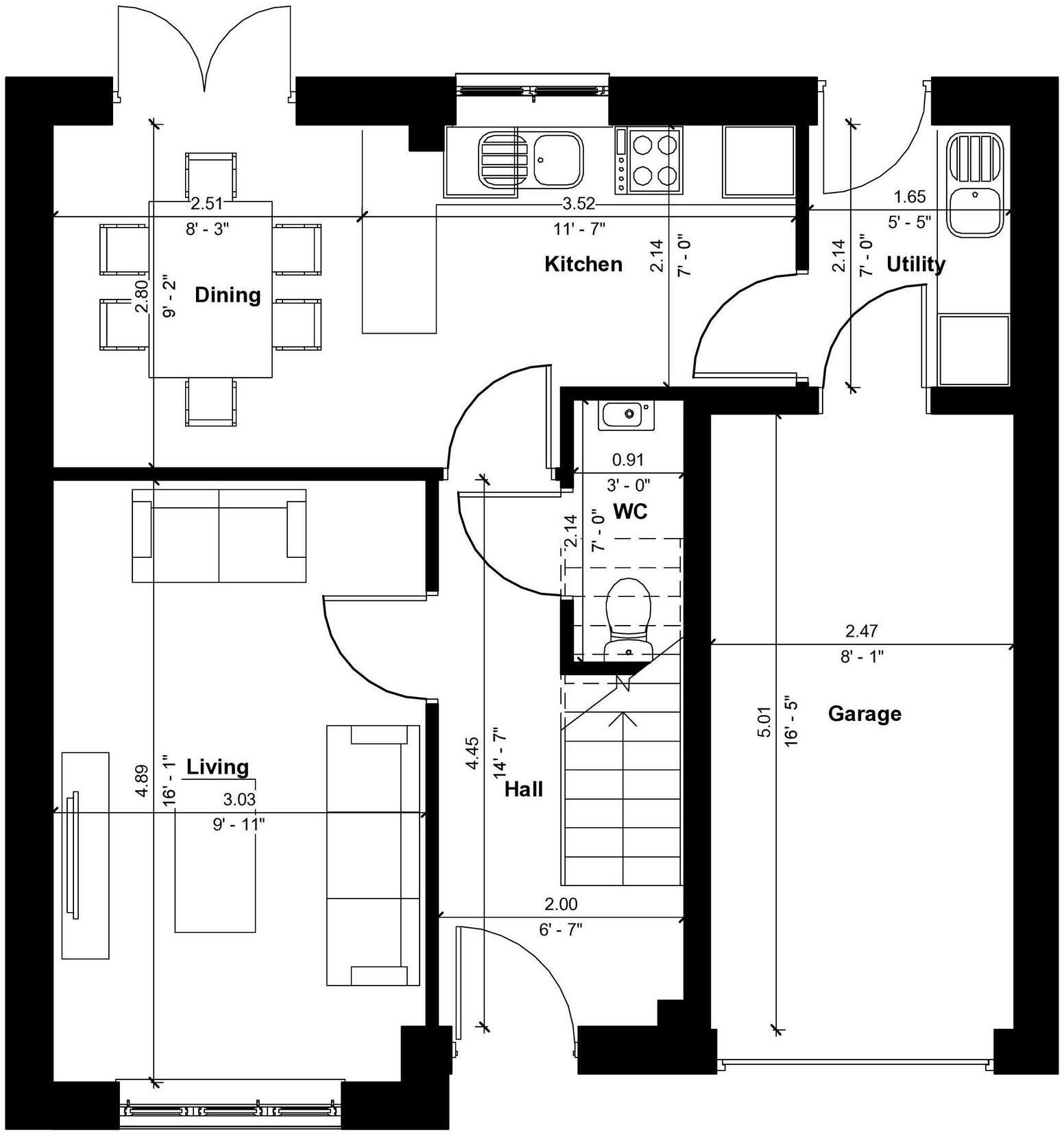
Plot 32 & 33 - The Ayalon - This four bedroom design offers perfect accommodation for the growing family with a generous garden in a private location. Featuring a stunning open-plan kitchen and dining area, ideal for both everyday living and entertaining, with Frenc...
Property Oracle says ..
The property is a modern, detached new build in Hebburn North. It features 4 bedrooms and 2 bathrooms, with a garage. The location offers access to local schools and transportation. While the square footage is below average for the area, the property is in excellent condition and benefits from modern fixtures and fittings. The price is reasonable considering the new build status and detached type, but the smaller square footage and higher price per square foot should be considered.
Therefore, we give this property 7 / 10. *Disclaimer: This is our option and does constitute a recommendation or financial advice. Do your own research. *
- Price
- 7
- Condition
- 9
- Location
- 7
- Land
- 5
- Bedrooms
- 4
- Bathrooms
- 2
- Sqft (est)
- 617.52
The heatmap indicates the level of crime in the area. The color of the heatmap indicates the crime severity and recency.
Metrics Year-on-Year
- Average area value
- 410,714.00 £Increased by 0.52 %
- Est sale value
- 259,358.40 £Increased by 4.48 %
- Average area rental value
- 1,363.00 £/moDecreased by 8.52 %
- Est letting value
- 617.52 £/moUnchanged by 0.00 %
- Est rental Yield
- 3.98 %Decreased by 9.13 %
- Crime Rate
- 12.00 %Unchanged by 0.00 %
Agent Activity
WalkersXchange created the listing.
Nearby Schools
| Name | Type | Ofsted | Distance |
|---|---|---|---|
| St Aloysius Catholic Infant School, Hebburn | Academy Converter | 0.44 KM | |
| St Aloysius Catholic Junior School Academy | Academy Converter | Outstanding | 0.47 KM |
| The Sue Hedley Nursery School | Local Authority Nursery School | Outstanding | 1.04 KM |
| South Tyneside Early Excellence Centre | Children's Centre | 1.11 KM | |
| Keelman'S Way School | Foundation Special School | Good | 1.19 KM |
Images
Nearby Streets
| Name | Average Price | Average Sqft | Distance |
|---|---|---|---|
| Thistle Street | £ 175,000 | 0 | 0.00 KM |
| Thomas Drive | £ 330,000 | 0 | 0.00 KM |
| B1297 | £ 0 | 0 | 0.00 KM |
| Alfred Street | £ 0 | 0 | 0.00 KM |
| Saint John's Walk | £ 0 | 0 | 0.00 KM |
Nearby Transport
| Name | NLC | TLC | Distance |
|---|---|---|---|
| Heworth | 7766 | HEW | 4.91 KM |
| Manors | 7603 | MAS | 9.46 KM |
Nearby Listings
| Address | Price | Type | Score | Distance |
|---|---|---|---|---|
| The Ayalon - Plot 33, Bell Street, Hebburn | £ 339,950 | BUY | 7 / 10 | 0.00 KM |
| Bell Street, The Ropery, Hebburn | £ 207,950 | BUY | 7 / 10 | 0.00 KM |
| The Alexander - Plot 26, Bell Street, Hebburn | £ 244,950 | BUY | Unknown | 0.00 KM |
| The Alexander - Plot 27, Bell Street, Hebburn | £ 244,950 | BUY | Unknown | 0.00 KM |
| The Alexander - Plot 28, Bell Street, Hebburn | £ 244,950 | BUY | Unknown | 0.00 KM |
Nearby Properties
| Address | Price | Distance |
|---|---|---|
| 25 Landfall Drive | £ 165,950 | 0.10 KM |
| 1 Landfall Drive | £ 123,750 | 0.10 KM |
| 70 Landfall Drive | £ 84,950 | 0.10 KM |
| 38 Landfall Drive | £ 107,950 | 0.10 KM |
| 3 Landfall Drive | £ 123,750 | 0.10 KM |