Upper Park Road, Bromley, BR1
By Sinclair Hammelton
£ 500,000
Reviews
3 out of 5 stars
Sinclair Hammelton says ..
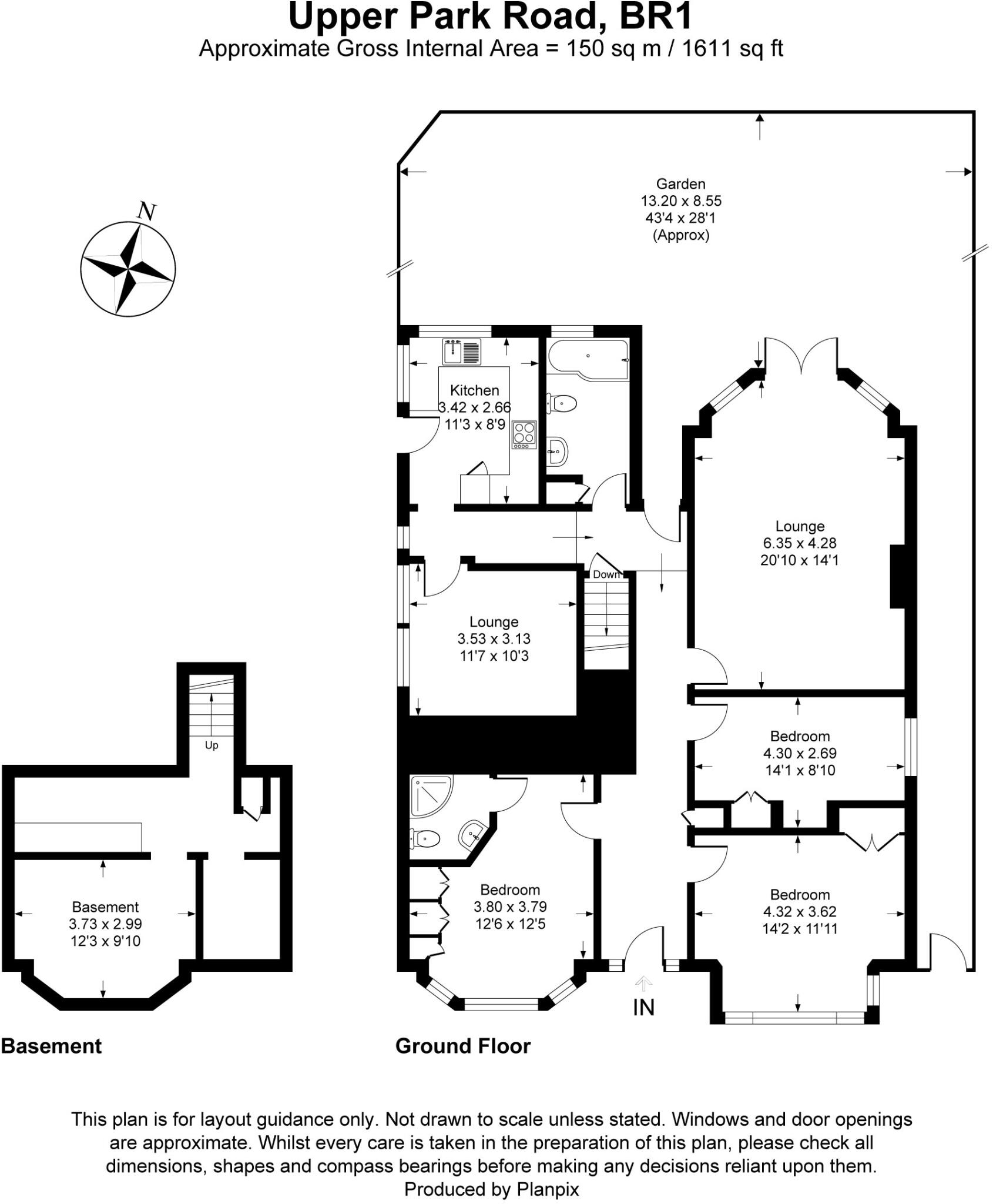
***GUIDE PRICE £500,000 - £550,000*** CHAIN FREE- Rarely available is this impressive three-bedroom Victorian conversion which occupies the entire ground floor arranged over 1600 square foot. Accommodation comprises; private entrance hall, impressive lounge, kitchen, dining room...
Property Oracle says ..
This property is a 3-bedroom, 2-bathroom apartment located in Bromley, Greater London. The apartment is situated on Upper Park Road, in the Plaistow And Sundridge locality. It has a list price of £500,000 and covers 520.23 square feet, with a plot size of 1,611 square feet.
The property benefits from being within a reasonable distance of several Southeastern train stations, including Sundridge Park (0.63km), Bromley North (1.01km), Bromley South (1.48km), Elmstead Woods (2.17km), and Grove Park (2.34km), providing convenient access to commuting routes. Several schools are also nearby, including The Tutorial Foundation (0.11km), St Joseph’s Catholic Primary School (0.19km), and Scotts Park Primary School (0.51km), offering various educational options for families.
Based on the provided images, the property appears to be a period property, showing some traditional features. While the interior shows some signs of wear and tear, it doesn’t appear to be in a state requiring extensive renovation. The garden is relatively small and could benefit from some landscaping.
Considering the average price per square foot in the area is £482, and the property is listed at £500,000, the price seems slightly higher than average, given its size and condition. However, the inclusion of a garden and its location near transport links and schools might justify the slightly elevated price compared to other flats in the area. Further analysis of comparable properties with similar features and conditions would be needed to confirm this.
Therefore, we give this property 6 / 10. *Disclaimer: This is our option and does constitute a recommendation or financial advice. Do your own research. *
- Price
- 6
- Condition
- 7
- Location
- 8
- Land
- 4
- Bedrooms
- 3
- Bathrooms
- 2
- Sqft (est)
- 520.23
- Lot (est)
- 1,611.00
The heatmap indicates the level of crime in the area. The color of the heatmap indicates the crime severity and recency.
Metrics Year-on-Year
- Average area value
- 616,250.00 £Increased by 3.00 %
- Est sale value
- 248,669.94 £Decreased by 15.40 %
- Average area rental value
- 1,730.00 £/moDecreased by 8.90 %
- Est letting value
- 520.23 £/moUnchanged by 0.00 %
- Est rental Yield
- 3.37 %Decreased by 11.55 %
- Crime Rate
- 9.00 %Unchanged by 0.00 %
Agent Activity
Sinclair Hammelton created the listing.
Nearby Schools
| Name | Type | Ofsted | Distance |
|---|---|---|---|
| The Tutorial Foundation | Other Independent Special School | Good | 0.11 KM |
| St Joseph'S Catholic Primary School | Academy Converter | Good | 0.19 KM |
| Ashgrove School Ltd | Other Independent School | Requires improvement | 0.40 KM |
| Scotts Park Primary School | Academy Converter | Good | 0.51 KM |
| Breaside Preparatory School | Other Independent School | 0.93 KM |
Images
Nearby Streets
| Name | Average Price | Average Sqft | Distance |
|---|---|---|---|
| Sudbury Crescent | £ 393,333 | 0 | 0.00 KM |
| Harton Close | £ 0 | 0 | 0.00 KM |
| Elmbank Drive | £ 1,100,000 | 0 | 0.00 KM |
| White Hart Slip | £ 0 | 0 | 0.00 KM |
| Gordon Way | £ 0 | 0 | 0.00 KM |
Nearby Transport
| Name | NLC | TLC | Distance |
|---|---|---|---|
| Sundridge Park | 5155 | SUP | 0.63 KM |
| Bromley North | 5096 | BMN | 1.01 KM |
| Bromley South | 5064 | BMS | 1.48 KM |
| Elmstead Woods | 5135 | ESD | 2.17 KM |
| Grove Park | 5139 | GRP | 2.34 KM |
Nearby Listings
| Address | Price | Type | Score | Distance |
|---|---|---|---|---|
| Upper Park Road, Bromley, BR1 | £ 500,000 | BUY | 6 / 10 | 0.00 KM |
| Upper Park Road, Bromley | £ 320,000 | BUY | 7 / 10 | 0.04 KM |
| Upper Park Road, Bromley | £ 290,000 | BUY | 6 / 10 | 0.05 KM |
| Dainton Close, Bromley, Kent | £ 320,000 | BUY | 6 / 10 | 0.07 KM |
| Henville Road, Bromley, BR1 | £ 975,000 | BUY | 7 / 10 | 0.08 KM |
Nearby Properties
| Address | Price | Distance |
|---|---|---|
| 9 Dainton Close | £ 303,000 | 0.07 KM |
| 24 Dainton Close | £ 217,500 | 0.07 KM |
| 22 Dainton Close | £ 286,000 | 0.07 KM |
| 19 Dainton Close | £ 322,000 | 0.07 KM |
| 3 Dainton Close | £ 180,000 | 0.07 KM |