Fortescue Farm and Barns
By Redferns Estate and Letting agents
£ 550,000
Reviews
2 out of 5 stars
Redferns Estate and Letting agents says ..
A superb development opportunity to renovate and develop substantial barns (STP) and planning has been granted to extend and renovate the existing grade II listed farmhouse with nearly half an acre of gardens and grounds situated on the edge of this desirable coastal town with beautiful views....
Property Oracle says ..
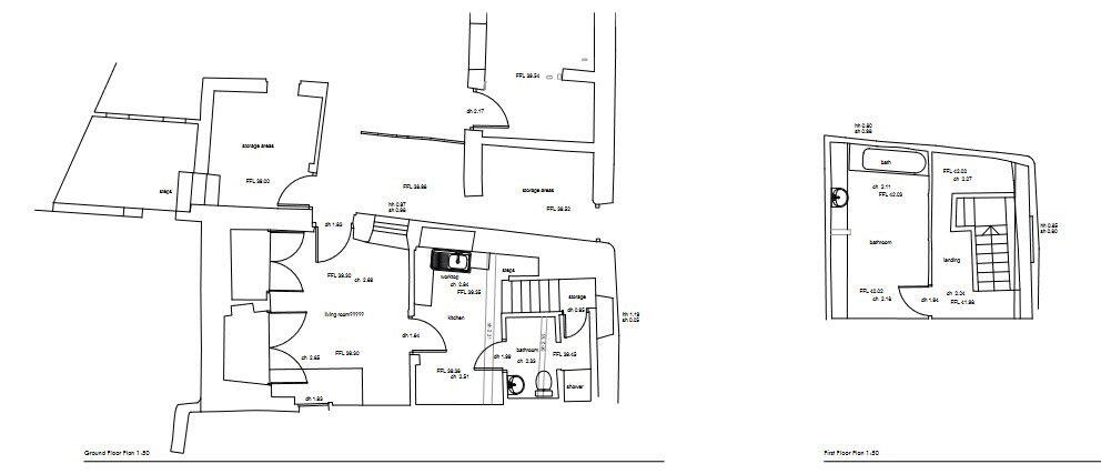
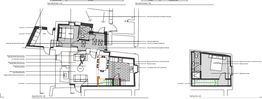
Fortescue Farm and Barns presents a unique opportunity for a buyer looking to undertake a significant renovation project in a desirable rural location near Sidmouth. The property, a barn conversion, requires extensive work but offers considerable potential. The location is advantageous, being in the sought-after area of East Devon, close to local amenities and schools. The property benefits from a substantial plot size, including garden areas and outbuildings. While the condition of the property is poor, requiring complete renovation, the asking price reflects this, making it an attractive proposition for those willing to invest in a comprehensive restoration project.
Therefore, we give this property 5 / 10. *Disclaimer: This is our option and does constitute a recommendation or financial advice. Do your own research. *
- Price
- 7
- Condition
- 2
- Location
- 6
- Land
- 7
- Bedrooms
- 0
- Bathrooms
- 0
- Sqft (est)
- 1,235.70
The heatmap indicates the level of crime in the area. The color of the heatmap indicates the crime severity and recency.
Metrics Year-on-Year
- Average area value
- 803,783.00 £Increased by 17.25 %
- Est sale value
- 607,964.40 £Increased by 17.70 %
- Average area rental value
- 930.00 £/moDecreased by 22.50 %
- Est letting value
- 0.00 £/mo
- Est rental Yield
- 1.39 %Decreased by 33.81 %
- Crime Rate
- 1.00 %Unchanged by 0.00 %
Agent Activity
Redferns Estate and Letting agents created the listing.
Nearby Schools
| Name | Type | Ofsted | Distance |
|---|---|---|---|
| Sidmouth College | Community School | Good | 1.07 KM |
| Sidmouth Church Of England (Va) Primary School | Academy Converter | Good | 2.22 KM |
| Sidmouth Children'S Centre | Children's Centre | 2.43 KM | |
| Sidbury Church Of England Primary School | Academy Converter | Good | 2.44 KM |
| St John'S School | Other Independent School | 3.31 KM |
Images
Nearby Streets
| Name | Average Price | Average Sqft | Distance |
|---|---|---|---|
| Brook Lane | £ 0 | 0 | 0.00 KM |
| Stanhope Drive | £ 0 | 0 | 0.00 KM |
| Redwood Road | £ 850,000 | 0 | 0.00 KM |
| Hillside | £ 300,000 | 0 | 0.00 KM |
| Winslade Road | £ 260,000 | 0 | 0.00 KM |
Nearby Listings
| Address | Price | Type | Score | Distance |
|---|---|---|---|---|
| Fortescue Farm and Barns | £ 550,000 | BUY | 5 / 10 | 0.00 KM |
| All Saints Road, Sidmouth, Devon, EX10 | £ 200,000 | BUY | Unknown | 0.00 KM |
| Fortescue Farm and Barns | £ 650,000 | BUY | 5 / 10 | 0.00 KM |
| Fortescue Road, Sidmouth | £ 535,000 | BUY | 6 / 10 | 0.19 KM |
| Fortescue Road, Sidmouth, Devon, EX10 | £ 465,000 | BUY | Unknown | 0.32 KM |