Sterling Avenue, Edgware, Middlesex, HA8 8BS
By Benjamin Stevens
£ 325,000
Reviews
3 out of 5 stars
Benjamin Stevens says ..
A first floor maisonette located on Sterling Avenue!
Property Oracle says ..
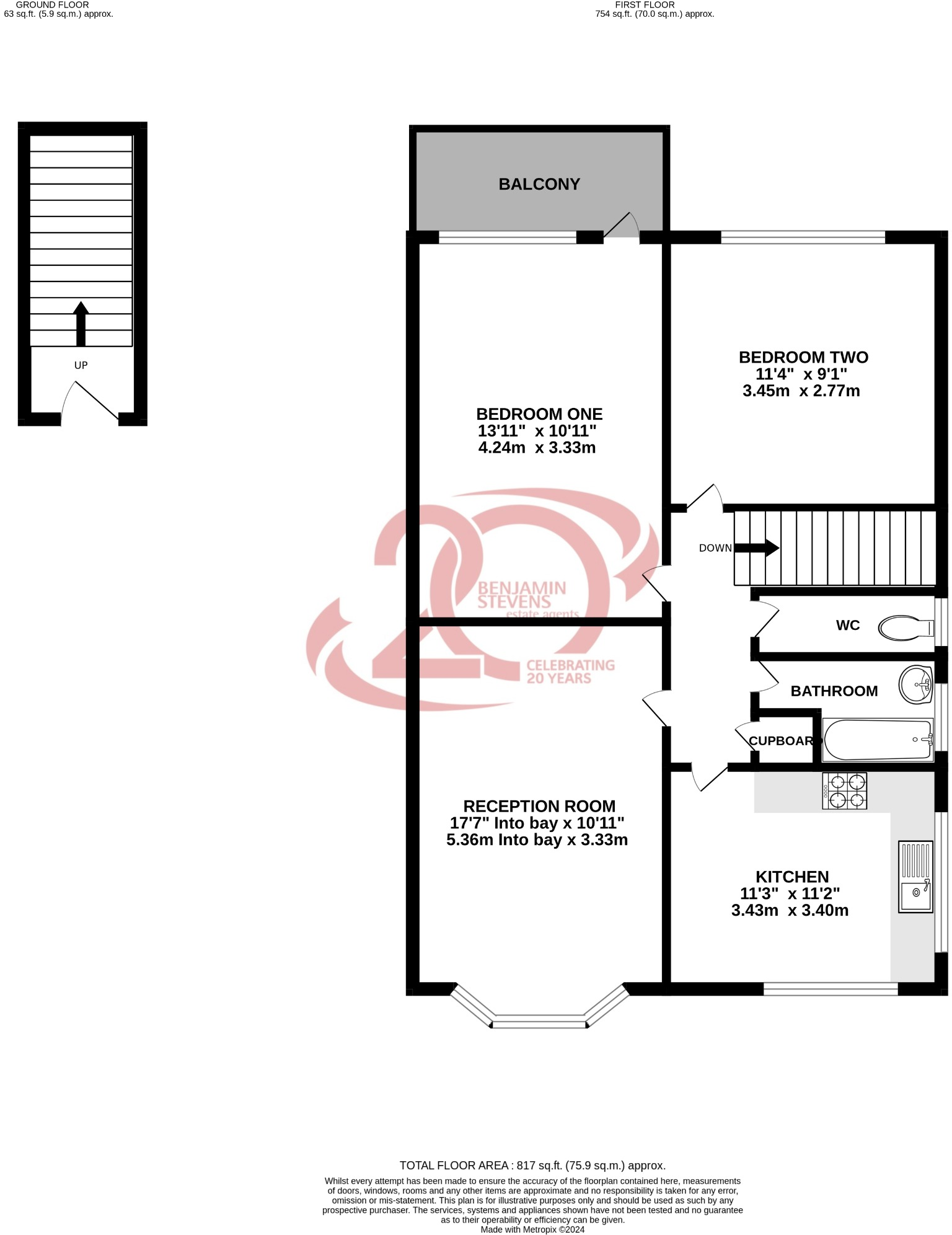
This two-bedroom, one-bathroom maisonette in Edgware, Barnet, is presented for sale at £325,000. The property is located on Sterling Avenue, benefiting from its proximity to local amenities and transport links. While the exact distances to shops, schools, and public transport are not provided, Edgware offers a range of facilities. The property itself appears to be a standard-sized maisonette, with 816.98 sq ft of living space. Images reveal that the property requires modernisation. The kitchen and bathroom, in particular, are dated. The interior décor appears relatively well-maintained but could benefit from updating. A notable feature is a garden space, seemingly reasonably sized, which is shown in the accompanying images. It may also come with access to garage space. Considering comparable properties on Sterling Avenue, the list price may be slightly above average for the area for a property in this condition. A comprehensive review would benefit from additional property details, including precise distances to amenities, a precise plot size, and a more detailed survey to fully assess the property’s structural condition. The current pricing should be considered in the context of the necessary renovations and a thorough property survey before a final judgement on the value is made.
Therefore, we give this property 6 / 10. *Disclaimer: This is our option and does constitute a recommendation or financial advice. Do your own research. *
- Price
- 7
- Condition
- 5
- Location
- 7
- Land
- 6
- Bedrooms
- 2
- Bathrooms
- 1
- Sqft (est)
- 816.98
The heatmap indicates the level of crime in the area. The color of the heatmap indicates the crime severity and recency.
Metrics Year-on-Year
- Average area value
- 523,881.00 £Decreased by 13.55 %
- Est sale value
- 451,789.94 £Increased by 12.86 %
- Average area rental value
- 1,887.00 £/moDecreased by 11.95 %
- Est letting value
- 816.98 £/moUnchanged by 0.00 %
- Est rental Yield
- 4.32 %Increased by 1.89 %
- Crime Rate
- 3.00 %Unchanged by 0.00 %
Agent Activity
Benjamin Stevens marked this listing as sold.
Benjamin Stevens created the listing.
Nearby Schools
| Name | Type | Ofsted | Distance |
|---|---|---|---|
| London Academy | Academy Sponsor Led | Good | 0.51 KM |
| Tashbar Of Edgware | Other Independent School | Inadequate | 1.00 KM |
| Holland House School | Other Independent School | 1.09 KM | |
| Edgware Jewish Girls - Beis Chinuch | Other Independent School | Good | 1.12 KM |
| Beit Shvidler Primary School | Voluntary Aided School | Good | 1.41 KM |
Images
Nearby Streets
| Name | Average Price | Average Sqft | Distance |
|---|---|---|---|
| Barnes Close | £ 675,000 | 0 | 0.00 KM |
| Savoy Close | £ 0 | 0 | 0.00 KM |
| Crossgate | £ 0 | 0 | 0.00 KM |
| Branningan Way | £ 0 | 0 | 0.00 KM |
| Stonegrove Court | £ 0 | 0 | 0.00 KM |
Nearby Transport
| Name | NLC | TLC | Distance |
|---|---|---|---|
| Elstree And Borehamwood | 1542 | ELS | 3.52 KM |
| Mill Hill Broadway | 1527 | MIL | 3.94 KM |
| Kenton | 1399 | KNT | 5.76 KM |
| South Kenton | 1453 | SOK | 6.34 KM |
| Harrow And Wealdstone | 1397 | HRW | 6.50 KM |
Nearby Listings
| Address | Price | Type | Score | Distance |
|---|---|---|---|---|
| Sterling Avenue, Edgware, Middlesex, HA8 8BS | £ 325,000 | BUY | 6 / 10 | 0.00 KM |
| Sterling Avenue, Edgware, Greater London, HA8 | £ 348,500 | BUY | 5 / 10 | 0.05 KM |
| Sterling Avenue, Edgware | £ 345,000 | BUY | 6 / 10 | 0.05 KM |
| Hillside Gardens, Edgware | £ 750,000 | BUY | 6 / 10 | 0.06 KM |
| Hillside Gardens, Edgware, HA8 | £ 750,000 | BUY | 5 / 10 | 0.08 KM |
Nearby Properties
| Address | Price | Distance |
|---|---|---|
| 32 Sterling Avenue | £ 365,000 | 0.04 KM |
| 35d Sterling Avenue | £ 145,000 | 0.04 KM |
| 11 Sterling Avenue | £ 335,000 | 0.04 KM |
| 18 Sterling Avenue | £ 235,000 | 0.04 KM |
| 4 Sterling Avenue | £ 180,000 | 0.04 KM |