Barnard Marcus says ..
A stunning conversion flat situated within an attractive, half-stucco Victorian building on the borders of Holland Park and only a street away from Kensington High Street. This brilliant home is in excellent condition throughout with a generous private garden at the rear.
Property Oracle says ..
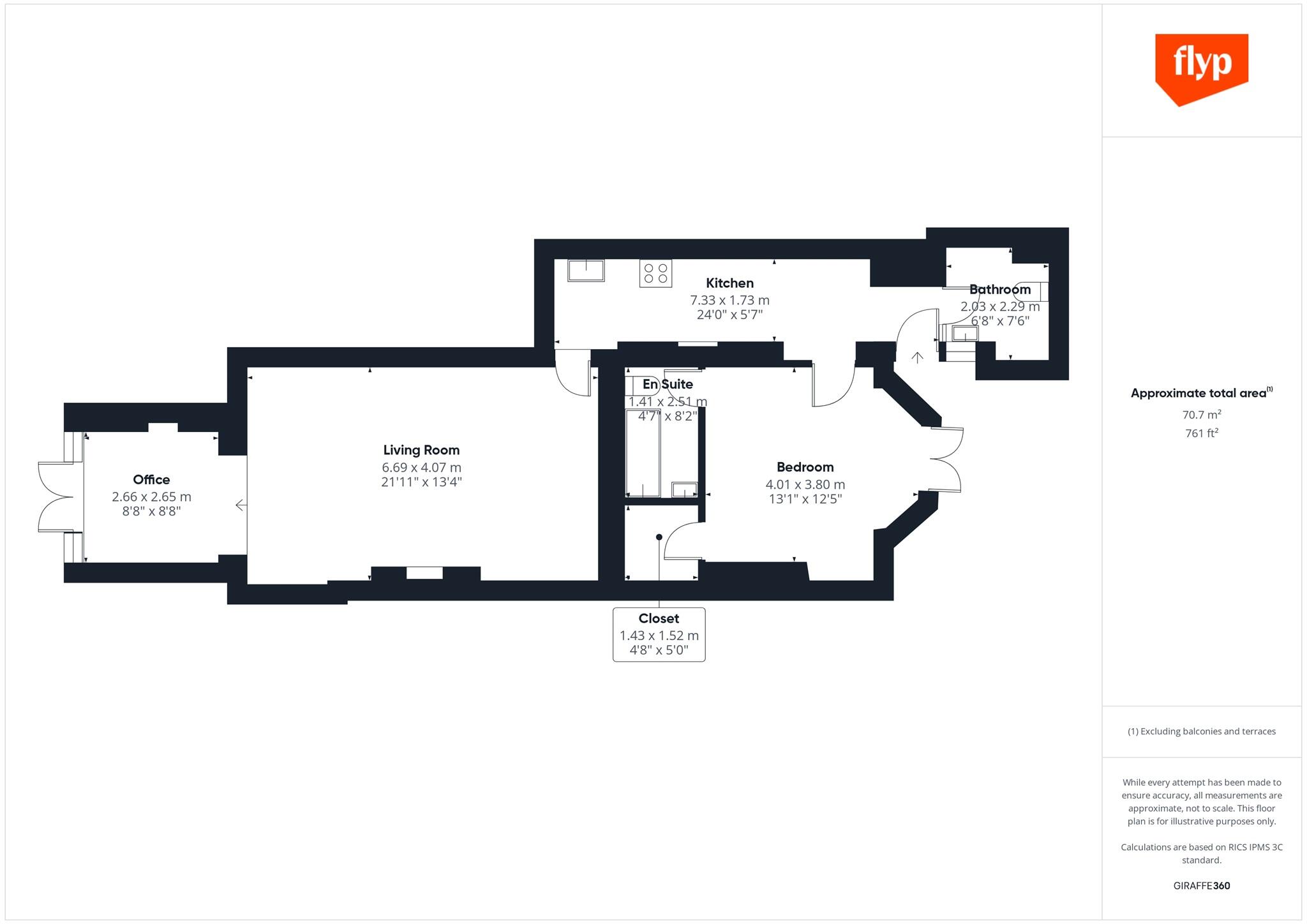
This is a ground floor flat located on Holland Road, in the desirable Kensington and Chelsea area of London. The property features one bedroom and one bathroom. The flat includes a garden, which is a sought-after feature in London. The property is conveniently located near public transportation and several schools. While the kitchen and bathroom appear modern, some areas of the flat could benefit from updating. The asking price of £695,000 seems reasonable for the location, but the lack of square footage information makes it difficult to assess the value precisely.
Therefore, we give this property 7 / 10. *Disclaimer: This is our option and does constitute a recommendation or financial advice. Do your own research. *
- Price
- 7
- Condition
- 7
- Location
- 8
- Land
- 6
- Bedrooms
- 1
- Bathrooms
- 1
The heatmap indicates the level of crime in the area. The color of the heatmap indicates the crime severity and recency.
Metrics Year-on-Year
- Average area value
- 1,614,130.00 £Decreased by 28.76 %
- Average area rental value
- 2,563.00 £/moDecreased by 18.89 %
- Est rental Yield
- 1.91 %Increased by 14.37 %
- Crime Rate
- 3.00 %Unchanged by 0.00 %
Agent Activity
Barnard Marcus created the listing.
Nearby Schools
| Name | Type | Ofsted | Distance |
|---|---|---|---|
| The Cardinal Vaughan Memorial Rc School | Academy Converter | 0.25 KM | |
| Masbro Childrens Centre | Children's Centre | 0.37 KM | |
| Norland Place School | Other Independent School | 0.47 KM | |
| St Mary'S Catholic Primary School | Voluntary Aided School | Good | 0.48 KM |
| Sial | Other Independent School | Good | 0.49 KM |
Images
Nearby Streets
| Name | Average Price | Average Sqft | Distance |
|---|---|---|---|
| Sinclair Road | £ 0 | 0 | 0.00 KM |
| Royal Crescent | £ 895,000 | 0 | 0.00 KM |
| Sinclair Road | £ 0 | 0 | 0.00 KM |
| Holland Gardens | £ 0 | 0 | 0.00 KM |
| Norland Road | £ 0 | 0 | 0.00 KM |
Nearby Transport
| Name | NLC | TLC | Distance |
|---|---|---|---|
| Kensington (Olympia) | 3092 | KPA | 0.58 KM |
| Shepherd'S Bush | 9587 | SPB | 0.59 KM |
| West Brompton | 8875 | WBP | 2.59 KM |
| Kensal Green | 1447 | KNL | 3.41 KM |
| Queens Park (London) | 1419 | QPW | 3.65 KM |
Nearby Listings
| Address | Price | Type | Score | Distance |
|---|---|---|---|---|
| Holland Road, London | £ 695,000 | BUY | 7 / 10 | 0.00 KM |
| Holland Road, Holland Park, London, W14 | £ 650,000 | BUY | 6 / 10 | 0.02 KM |
| Elsham Terrace, West Kensington | £ 330,000 | BUY | 5 / 10 | 0.02 KM |
| Holland Road, W14 | £ 695,000 | BUY | Unknown | 0.04 KM |
| Holland Road, Holland Park, London, W14 | £ 650,000 | BUY | 7 / 10 | 0.04 KM |
Nearby Properties
| Address | Price | Distance |
|---|---|---|
| 136 Holland Road | £ 362,700 | 0.00 KM |
| 148 Holland Road | £ 3,500,000 | 0.00 KM |
| 140 Holland Road | £ 85,000 | 0.00 KM |
| 132 Holland Road | £ 250,000 | 0.00 KM |
| 138e Holland Road | £ 620,000 | 0.00 KM |