Joel Street, Northwood Hills, Northwood, HA6
By Foxtons
£ 230,000
Reviews
2 out of 5 stars
Foxtons says ..
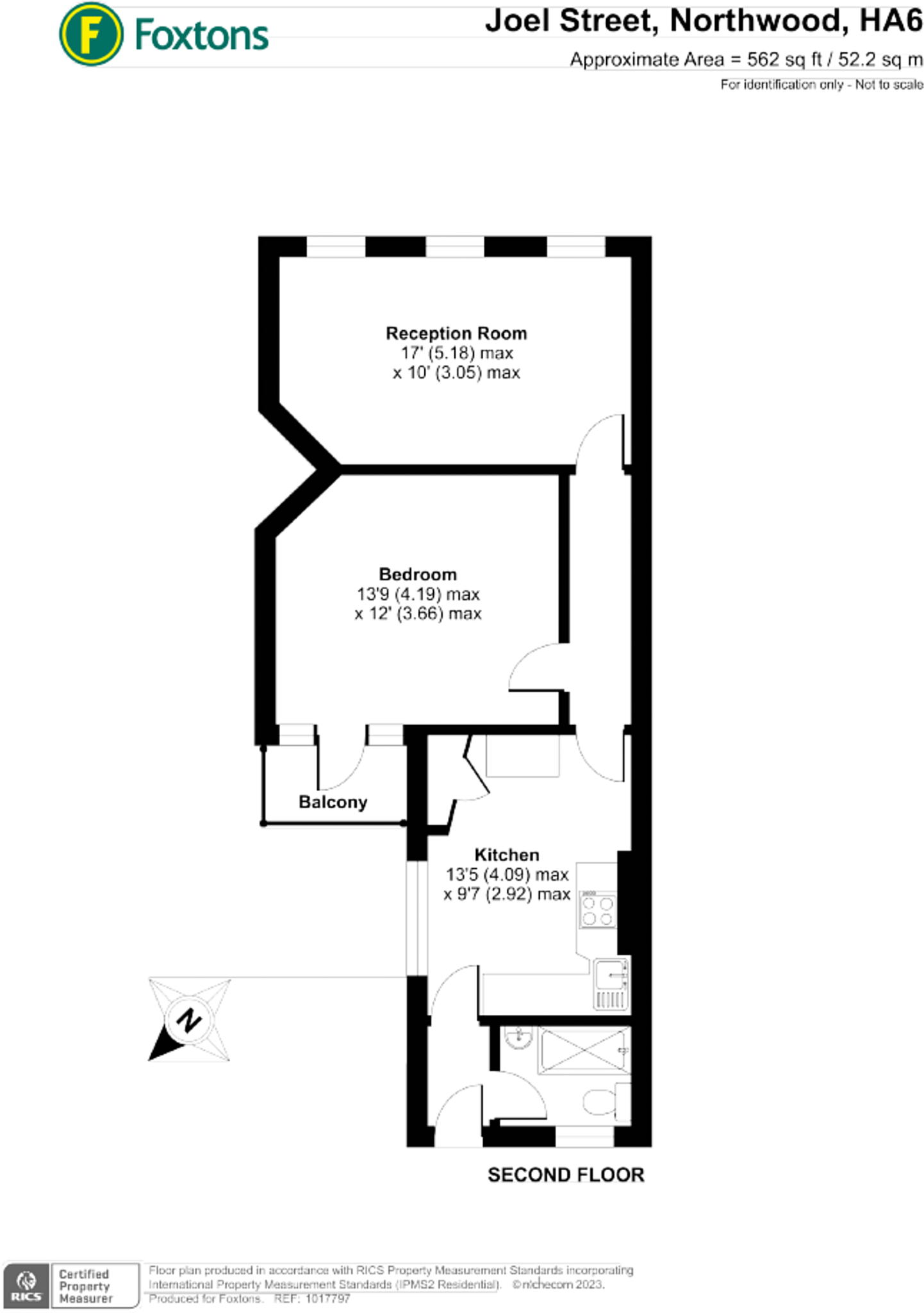
This well presented 1 bedroom 2nd floor flat is located in the heart of Northwood Hills moments from the shops and amenities, and benefits from a light and spacious reception room.
Property Oracle says ..
This one-bedroom flat located on Joel Street, Northwood Hills, HA6, is listed for £230,000. The property is situated in a convenient location, close to several well-regarded schools and within a reasonable distance of transportation links. However, reaching the nearest tube station would require a short commute. The provided photos indicate that the interior requires modernisation. The kitchen and bathroom, in particular, show outdated fixtures and finishes. There is no garden or outdoor space associated with this property. Potential buyers should factor in renovation costs to update the interior to their standards. The pricing is competitive but not necessarily a bargain, considering the need for refurbishment and the lack of outside space. The location, however, remains a strong selling point. More detailed information on comparable recent sales in the immediate vicinity would allow for a more precise valuation.
Therefore, we give this property 5 / 10. *Disclaimer: This is our option and does constitute a recommendation or financial advice. Do your own research. *
- Price
- 7
- Condition
- 5
- Location
- 7
- Land
- 1
- Bedrooms
- 1
- Bathrooms
- 1
- Sqft (est)
- 562.00
The heatmap indicates the level of crime in the area. The color of the heatmap indicates the crime severity and recency.
Metrics Year-on-Year
- Average area value
- 912,500.00 £Increased by 33.67 %
- Est sale value
- 187,708.00 £Decreased by 42.91 %
- Average area rental value
- 2,120.00 £/moIncreased by 2.61 %
- Est letting value
- 0.00 £/moDecreased by 100.00 %
- Est rental Yield
- 2.79 %Decreased by 23.14 %
- Crime Rate
- 39.00 %Unchanged by 0.00 %
Agent Activity
Foxtons created the listing.
Nearby Schools
| Name | Type | Ofsted | Distance |
|---|---|---|---|
| Northwood School | Academy Converter | Outstanding | 0.41 KM |
| Utc Heathrow | University Technical College | 0.50 KM | |
| Haydon School | Academy Converter | 0.71 KM | |
| Harlyn Primary School | Community School | Good | 0.88 KM |
| Hillside Junior School | Foundation School | Good | 0.89 KM |
Images
Nearby Streets
| Name | Average Price | Average Sqft | Distance |
|---|---|---|---|
| R33 | £ 0 | 0 | 0.00 KM |
| Northwood Hills Circus | £ 159,950 | 0 | 0.00 KM |
| Juniper Court | £ 0 | 0 | 0.00 KM |
| Addison Close | £ 0 | 0 | 0.00 KM |
| R196 | £ 525,000 | 0 | 0.00 KM |
Nearby Transport
| Name | NLC | TLC | Distance |
|---|---|---|---|
| Carpenders Park | 1442 | CPK | 4.13 KM |
| West Ruislip | 3059 | WRU | 4.56 KM |
| Hatch End | 1398 | HTE | 4.67 KM |
| South Ruislip | 3057 | SRU | 4.91 KM |
| Bushey | 1395 | BSH | 5.79 KM |
Nearby Listings
| Address | Price | Type | Score | Distance |
|---|---|---|---|---|
| Joel Street, Northwood Hills, Northwood, HA6 | £ 230,000 | BUY | 5 / 10 | 0.00 KM |
| Joel Street, Northwood | £ 200,000 | BUY | 6 / 10 | 0.05 KM |
| Northwood Hills, Middlesex, HA6 | £ 280,000 | BUY | Unknown | 0.09 KM |
| York Road, Northwood, Middlesex | £ 280,000 | BUY | 6 / 10 | 0.11 KM |
| York Road, Northwood, Middlesex | £ 185,000 | BUY | 6 / 10 | 0.13 KM |
Nearby Properties
| Address | Price | Distance |
|---|---|---|
| 91b Joel Street | £ 184,950 | 0.01 KM |
| 89b Joel Street | £ 173,750 | 0.01 KM |
| 110 Joel Street | £ 2,250 | 0.07 KM |
| 116 Joel Street | £ 248,000 | 0.07 KM |
| 112 Joel Street | £ 270,000 | 0.07 KM |