High Tilt, Cranbrook, Kent, TN17
By Jackson-Stops
£ 1,600,000
Reviews
3 out of 5 stars
Jackson-Stops says ..
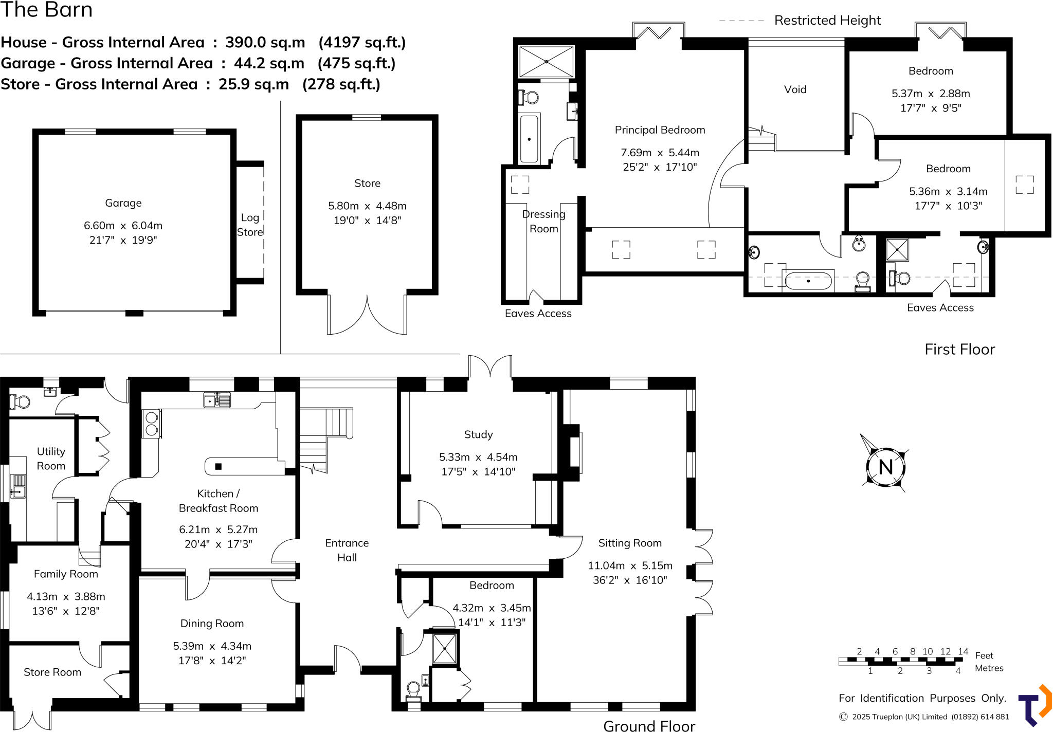
SUBSTANTIAL AND BEAUTIFULLY CONVERTED BARN WITH PADDOCK SET IN AN IDYLLIC LOCATION APPROACHED BY A PRIVATE DRIVE, WITHIN THE CRANBROOK SCHOOL CATCHMENT AREA A truly exceptional barn conversion, this property has a rare blend of character, craftsmanship, and comfort. This unique home of...
Property Oracle says ..
High Tilt is a substantial barn conversion located in a rural setting near Cranbrook, Kent. The property offers five bedrooms and three bathrooms, making it suitable for families or those seeking ample living space. The interior features a blend of traditional and modern elements, with exposed beams, a modern kitchen, and updated bathrooms. The property benefits from extensive gardens and grounds, including a patio area and a garage. While the location is somewhat remote, it offers access to reputable schools and nearby train stations. The price per square foot is below the local average, but the overall price reflects the property’s size and features.
Therefore, we give this property 7 / 10. *Disclaimer: This is our option and does constitute a recommendation or financial advice. Do your own research. *
- Price
- 6
- Condition
- 8
- Location
- 7
- Land
- 9
- Bedrooms
- 5
- Bathrooms
- 3
- Sqft (est)
- 4,197.93
The heatmap indicates the level of crime in the area. The color of the heatmap indicates the crime severity and recency.
Metrics Year-on-Year
- Average area value
- 377,000.00 £Decreased by 3.35 %
- Est sale value
- 3,538,854.99 £Increased by 70.99 %
- Average area rental value
- 664.00 £/moDecreased by 69.43 %
- Est letting value
- 4,197.93 £/moDecreased by 50.00 %
- Est rental Yield
- 2.11 %Decreased by 68.41 %
- Crime Rate
- 0.00 %
Agent Activity
Jackson-Stops created the listing.
Nearby Schools
| Name | Type | Ofsted | Distance |
|---|---|---|---|
| Dulwich Prep Cranbrook | Other Independent School | 3.14 KM | |
| Benenden School | Other Independent School | 3.35 KM | |
| Sissinghurst Voluntary Aided Church Of England Primary School | Voluntary Aided School | Good | 3.57 KM |
| Benenden Church Of England Primary School | Voluntary Controlled School | Good | 4.10 KM |
| Frittenden Church Of England Primary School | Voluntary Controlled School | Good | 4.21 KM |
Images
Nearby Transport
| Name | NLC | TLC | Distance |
|---|---|---|---|
| Headcorn | 5220 | HCN | 8.47 KM |
| Staplehurst | 5228 | SPU | 8.69 KM |
Nearby Listings
| Address | Price | Type | Score | Distance |
|---|---|---|---|---|
| High Tilt, Cranbrook, Kent, TN17 | £ 1,600,000 | BUY | 7 / 10 | 0.00 KM |
| The Nightingales, Sissinghurst, Kent, TN27 8HN | £ 1,695,000 | BUY | 7 / 10 | 1.42 KM |
| Tenterden Road, Golford, TN17 | £ 1,100,000 | BUY | 7 / 10 | 1.44 KM |
| The Nightingales, Biddenden, Ashford, Kent, TN27 | £ 1,500,000 | BUY | 8 / 10 | 1.44 KM |
| Biddenden Road, Sissinghurst, Cranbrook, Kent, TN17 | £ 795,000 | BUY | Unknown | 1.45 KM |
Nearby Properties
| Address | Price | Distance |
|---|---|---|
| 2 The Nightingales | £ 755,000 | 1.44 KM |
| Golford Place | £ 825,000 | 1.69 KM |
| Golford Cottage | £ 500,000 | 1.70 KM |
| Brindles | £ 430,000 | 1.70 KM |