Land At Pipes Meadow, Bilston, West Midlands, WV14
By Your Move
£ 180,000
Reviews
2 out of 5 stars
Your Move says ..
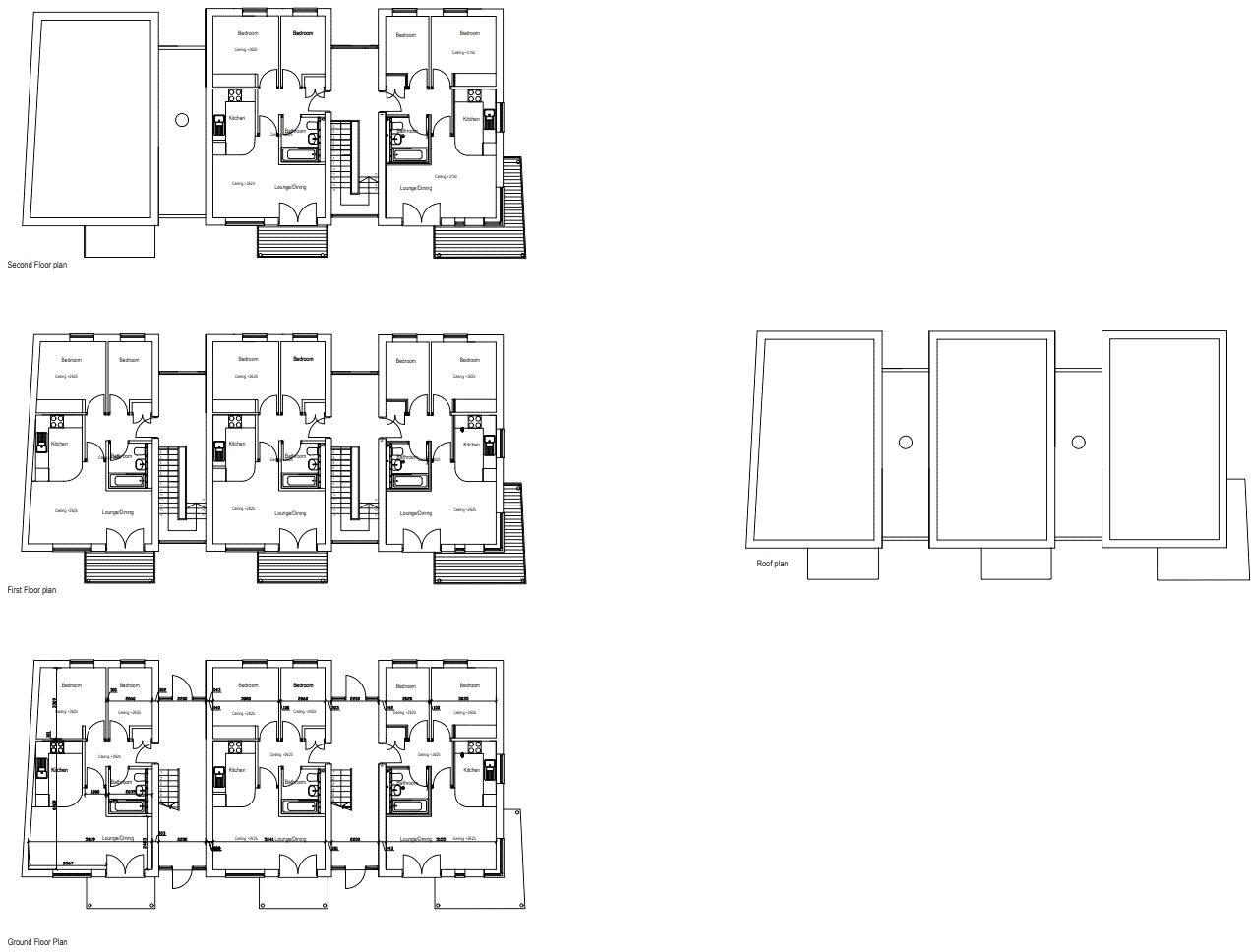
Erection of three and two storey building containing eight apartments of 530 sq ft (50 m2) with associated landscaping | Site Adjacent To Bilston Post Office Hall Street Pipes Meadow Wolverhampton West Midlands Planning reference - 20/01426/FUL
Property Oracle says ..
This is a plot of land in Bilston, West Midlands, presenting a development opportunity. The location offers access to local schools and amenities, although it is not a prime spot. The land requires complete development, reflected in its poor condition score. The price appears reasonable compared to other land listings in the area and the average price per square foot in Bilston. There are several schools within a kilometer, with Bow Street School and Holy Trinity Catholic Primary School both rated as ‘Outstanding’. Coseley train station is 2.65km away.
Therefore, we give this property 4 / 10. *Disclaimer: This is our option and does constitute a recommendation or financial advice. Do your own research. *
- Price
- 7
- Condition
- 1
- Location
- 6
- Land
- 5
- Bedrooms
- 0
- Bathrooms
- 0
- Sqft (est)
- 1,400.00
The heatmap indicates the level of crime in the area. The color of the heatmap indicates the crime severity and recency.
Metrics Year-on-Year
- Average area value
- 300,000.00 £Increased by 33.96 %
- Est sale value
- 289,800.00 £Decreased by 27.62 %
- Average area rental value
- 1,034.00 £/moIncreased by 9.53 %
- Est letting value
- 0.00 £/moDecreased by 100.00 %
- Est rental Yield
- 4.14 %Decreased by 18.18 %
- Crime Rate
- 10.00 %Unchanged by 0.00 %
Agent Activity
Your Move created the listing.
Nearby Schools
| Name | Type | Ofsted | Distance |
|---|---|---|---|
| Bow Street School | Other Independent Special School | Outstanding | 0.18 KM |
| Holy Trinity Catholic Primary School | Voluntary Aided School | Outstanding | 0.40 KM |
| Loxdale Primary School | Community School | Good | 0.63 KM |
| Ormiston Swb Academy | Academy Sponsor Led | 0.71 KM | |
| Villiers Primary School | Academy Converter | 0.87 KM |
Images
Nearby Streets
| Name | Average Price | Average Sqft | Distance |
|---|---|---|---|
| Pipes Meadow | £ 0 | 0 | 0.00 KM |
| Hall Street | £ 0 | 0 | 0.00 KM |
| Stone Street | £ 0 | 0 | 0.00 KM |
| Walsall Street | £ 0 | 0 | 0.00 KM |
| Fleet Street | £ 0 | 0 | 0.00 KM |
Nearby Transport
| Name | NLC | TLC | Distance |
|---|---|---|---|
| Coseley | 1143 | CSY | 2.65 KM |
| Tipton | 1159 | TIP | 3.98 KM |
| Dudley Port | 1212 | DDP | 5.24 KM |
| Wolverhampton | 1218 | WVH | 5.69 KM |
| Bloxwich | 1141 | BLX | 9.01 KM |
Nearby Listings
| Address | Price | Type | Score | Distance |
|---|---|---|---|---|
| Land At Pipes Meadow, Bilston, West Midlands, WV14 | £ 180,000 | BUY | 4 / 10 | 0.00 KM |
| Land At Pipes Meadow, Wolverhampton, West Midlands, WV14 | £ 200,000 | BUY | 4 / 10 | 0.01 KM |
| Land At Pipes Meadow, Wolverhampton, West Midlands, WV14 | £ 250,000 | BUY | Unknown | 0.01 KM |
| Land At Pipes Meadow, Bilston, West Midlands, WV14 | £ 250,000 | BUY | 4 / 10 | 0.02 KM |
| Mill Croft, Bilston | £ 100,000 | BUY | 6 / 10 | 0.21 KM |
Nearby Properties
| Address | Price | Distance |
|---|---|---|
| 2 Hall Street | £ 108,000 | 0.02 KM |
| 15 Bow Street | £ 124,995 | 0.15 KM |
| 5 Bow Street | £ 41,500 | 0.15 KM |
| 3 Bow Street | £ 140,000 | 0.15 KM |
| 9 Bow Street | £ 168,000 | 0.15 KM |