28 Mill Gardens Powmill Dollar FK14 7LQ
J

28 Mill Gardens Powmill Dollar FK14 7LQ

By J & G Wilson Solicitors

£ 445,000

Reviews

3 out of 5 stars

J & G Wilson Solicitors says ..

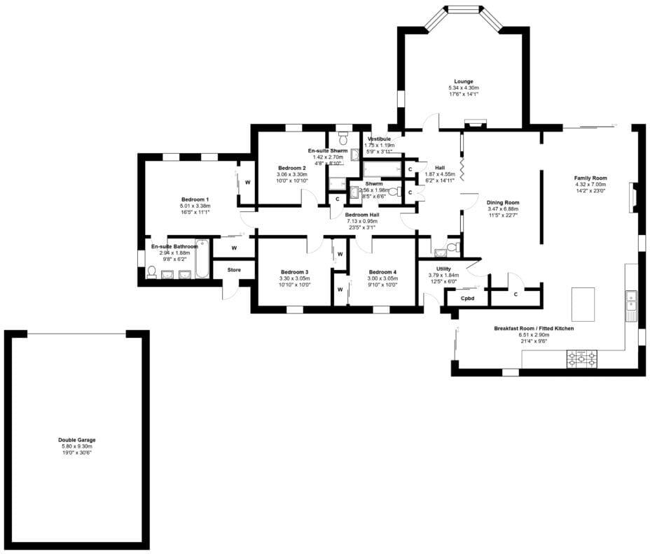
A superb detached bungalow with excellent privacy and views. Hall, lounge, dining room, family room with log burner, breakfast room, kitchen / island, utility, WC, 4 bedrooms,  2 shower rooms, master en-suite bathroom, oil c/h, d/g, solar panels, large double garage and driveway. Council tax band G.

Property Oracle says ..

This detached bungalow in Powmill offers a blend of rural living with modern comforts. The property features four bedrooms and three bathrooms, making it suitable for families. The interior is well-presented, with a modern kitchen and bathrooms. The large garden and driveway provide ample outdoor space and parking. While the price seems high compared to the average price per square foot in the area, the property’s condition and generous plot size contribute to its overall value.

Therefore, we give this property 7 / 10. *Disclaimer: This is our option and does constitute a recommendation or financial advice. Do your own research. *

Price
6
Condition
8
Location
7
Land
9
Bedrooms
4
Bathrooms
3
Sqft (est)
659.50

The heatmap indicates the level of crime in the area. The color of the heatmap indicates the crime severity and recency.

Metrics Year-on-Year

Average area value
364,143.00 £
Decreased by 3.05 %
from 375,584.00 £
Est sale value
189,936.00 £
Increased by 274.03 %
from 50,781.50 £
Average area rental value
1,800.00 £/mo
Increased by 66.67 %
from 1,080.00 £/mo
Est letting value
659.50 £/mo
from 0.00 £/mo
Est rental Yield
5.93 %
Increased by 71.88 %
from 3.45 %
Crime Rate
0.00 %
from 0.00 %

Agent Activity

  • J & G Wilson Solicitors created the listing.

Images

DRONE OVERALL FAMILY ROOM LOUNGE DINING ROOM BREAKFAST ROOM KITCHEN KITCHEN WC MASTER EN-SUITE FRONT DRONE FRONT FAMILY ROOM LOUNGE UTILITY BEDROOM 1 BEDROOM 2 BED 2 EN-SUITE BED 2 EN-SUITE BEDROOM 3 BEDROOM 4 SHOWER ROOM DOUBLE GARAGE REAR DRONE OVERALL FRONT

Nearby Streets

NameAverage PriceAverage SqftDistance
Mill Gardens £ 000.00 KM
Blairhill Drive £ 300,00000.00 KM

Nearby Listings

AddressPriceTypeScoreDistance
28 Mill Gardens Powmill Dollar FK14 7LQ £ 445,000BUY7 / 100.00 KM
14 Mill Gardens, Powmill FK14 7LQ £ 240,000BUY7 / 100.06 KM
2 Mill Gardens, Powmill, Dollar £ 400,000BUY7 / 100.15 KM
Crosskeys, Powmill, FK14 7NW £ 390,000BUY6 / 100.21 KM
Corner Cottage, Powmill FK14 7NW £ 270,000BUY6 / 100.22 KM