161 Trysull Road, Wolverhampton
BE

161 Trysull Road, Wolverhampton

By Berriman Eaton

£ 675,000

Reviews

3 out of 5 stars

Berriman Eaton says ..

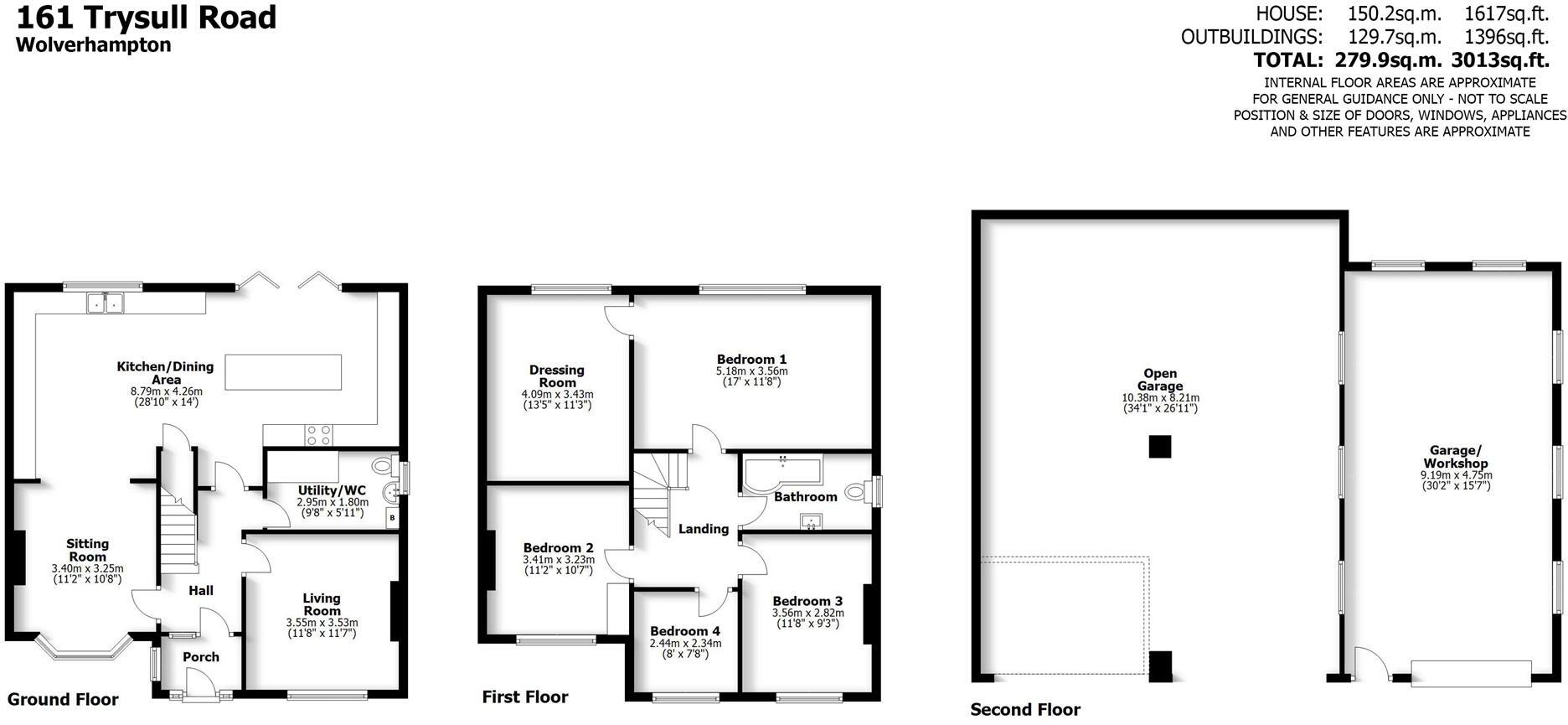
A greatly extended four bedroom detached house with a large driveway and access to the rear WITH A RANGE OF LARGE OUTBUILDINGS. These could facilitate a business use (STPP), or there is planning permission to demolish and build a new detached bungalow. EPC : TO FOLLOW WOMBOURNE OFFICE

Property Oracle says ..

This is a modern, well-presented four-bedroom house in Merry Hill, Wolverhampton. The property benefits from a recent renovation, including a modern kitchen and bathrooms. It features a garden, a large driveway, and a garage, providing ample outdoor and parking space. The location is suitable for families, with several schools nearby. However, the asking price of £675,000 appears high compared to the average property prices in the area.

Therefore, we give this property 7 / 10. *Disclaimer: This is our option and does constitute a recommendation or financial advice. Do your own research. *

Price
5
Condition
9
Location
7
Land
7
Bedrooms
4
Bathrooms
2

The heatmap indicates the level of crime in the area. The color of the heatmap indicates the crime severity and recency.

Metrics Year-on-Year

Average area value
245,000.00 £
Decreased by 15.26 %
from 289,105.00 £
Average area rental value
992.00 £/mo
Decreased by 2.94 %
from 1,022.00 £/mo
Est rental Yield
4.86 %
Increased by 14.62 %
from 4.24 %
Crime Rate
4.00 %
Unchanged by 0.00 %
from 4.00 %

Agent Activity

  • Berriman Eaton created the listing.

Nearby Schools

NameTypeOfstedDistance
St Michael'S Catholic Primary Academy And NurseryAcademy ConverterGood0.37 KM
Warstones Primary SchoolCommunity SchoolGood0.46 KM
The Star Children'S Centre (Formerly Warstones Children'S Centre)Children's Centre0.47 KM
Uplands Junior SchoolCommunity SchoolGood0.79 KM
Springdale Primary SchoolCommunity SchoolGood1.12 KM

Images

161 Trysull Road-24.jpg 161 Trysull Road-16.jpg 161 Trysull Road-17.jpg 161 Trysull Road-15.jpg 161 Trysull Road-04.jpg 161 Trysull Road-13.jpg 161 Trysull Road-14.jpg 161 Trysull Road-08.jpg 161 Trysull Road-12.jpg 161 Trysull Road-10.jpg 161 Trysull Road-11.jpg 161 Trysull Road-27.jpg 161 Trysull Road-01.jpg 161 Trysull Road-06.jpg 161 Trysull Road-07.jpg 161 Trysull Road-26.jpg 161 Trysull Road-21.jpg 161 Trysull Road-23.jpg 161 Trysull Road-Front.jpg 161 Trysull Road-18.jpg 161 Trysull Road-19.jpg 161 Trysull Road-20.jpg 161 Trysull Road-22.jpg

Nearby Streets

NameAverage PriceAverage SqftDistance
Chestnut Way £ 290,00000.00 KM
Whitehouse Avenue £ 000.00 KM
Oakley Grove £ 000.00 KM
Highclere Gardens £ 000.00 KM
B4161 £ 000.00 KM

Nearby Transport

NameNLCTLCDistance
Wolverhampton1218WVH5.31 KM
Bilbrook4618BBK6.18 KM
Codsall4616CSL7.35 KM
Coseley1143CSY9.26 KM

Nearby Listings

AddressPriceTypeScoreDistance
161 Trysull Road, Wolverhampton £ 675,000BUY7 / 100.00 KM
151 Trysull Road, Wolverhampton £ 295,000BUY7 / 100.09 KM
Attwell Park, Merry Hill £ 275,000BUYUnknown0.11 KM
21 Langley Gardens, Wolverhampton £ 250,000BUY6 / 100.11 KM
Hilary Drive, Penn, Wolverhampton £ 280,000BUY6 / 100.15 KM

Nearby Properties

AddressPriceDistance
19 Attwell Park £ 185,0000.09 KM
11 Attwell Park £ 185,0000.09 KM
22 Attwell Park £ 172,5000.09 KM
21 Attwell Park £ 205,0000.09 KM
15 Attwell Park £ 163,5000.09 KM