Selham Close, Chichester, PO19
By Henry Adams
£ 300,000
Reviews
3 out of 5 stars
Henry Adams says ..
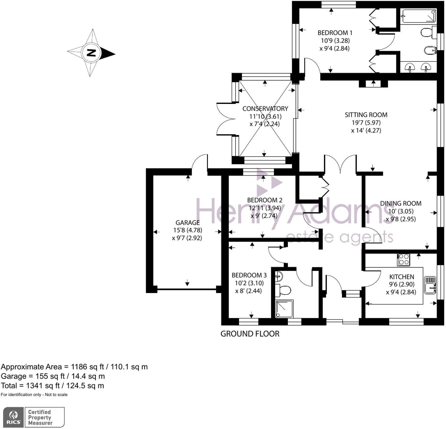
Sold via PEARSONS AUCTION - auction date WEDNESDAY 22nd OCTOBER. Perfect lock up and leave alternative to an apartment in a prestigious private estate. NO ONWARD CHAIN. Stylish BUNGALOW in sought-after location. THREE BEDROOMS. Access to communal tennis court & indoor heated swimming pool. Br...
Property Oracle says ..
This is a terraced bungalow located in Chichester North. The property features 3 bedrooms and 2 bathrooms. While the property is in reasonable condition, it would benefit from modernisation. It includes a garden and access to communal facilities such as a tennis court and indoor pool. The location is convenient, with access to local schools and amenities, and is approximately 3km from the train station. The asking price of £300,000 appears reasonable given the property’s size, location, and the local market.
Therefore, we give this property 6 / 10. *Disclaimer: This is our option and does constitute a recommendation or financial advice. Do your own research. *
- Price
- 8
- Condition
- 5
- Location
- 7
- Land
- 6
- Bedrooms
- 3
- Bathrooms
- 2
- Sqft (est)
- 254.89
The heatmap indicates the level of crime in the area. The color of the heatmap indicates the crime severity and recency.
Metrics Year-on-Year
- Average area value
- 509,575.00 £Increased by 1.97 %
- Est sale value
- 108,583.14 £Decreased by 6.99 %
- Average area rental value
- 1,508.00 £/moIncreased by 24.12 %
- Est letting value
- 254.89 £/moUnchanged by 0.00 %
- Est rental Yield
- 3.55 %Increased by 21.58 %
- Crime Rate
- 0.00 %
Agent Activity
Henry Adams created the listing.
Nearby Schools
| Name | Type | Ofsted | Distance |
|---|---|---|---|
| Fordwater School, Chichester | Community Special School | Good | 0.75 KM |
| University Of Chichester | Higher Education Institutions | 1.52 KM | |
| Jessie Younghusband Primary School | Community School | Good | 1.54 KM |
| St Anthony'S School | Community Special School | Outstanding | 1.58 KM |
| Lavant Cofe Primary School | Voluntary Controlled School | Good | 1.92 KM |
Images
Nearby Streets
| Name | Average Price | Average Sqft | Distance |
|---|---|---|---|
| The Lane | £ 0 | 0 | 0.00 KM |
| Young Street | £ 0 | 0 | 0.00 KM |
| North Mead Road | £ 0 | 0 | 0.00 KM |
| Foster Road | £ 0 | 0 | 0.00 KM |
| Hackett Way | £ 442,500 | 0 | 0.00 KM |
Nearby Transport
| Name | NLC | TLC | Distance |
|---|---|---|---|
| Chichester | 5255 | CCH | 2.95 KM |
| Fishbourne (Sussex) | 5261 | FSB | 4.83 KM |
| Bosham | 5254 | BOH | 8.11 KM |
Nearby Listings
| Address | Price | Type | Score | Distance |
|---|---|---|---|---|
| Selham Close, Chichester, PO19 | £ 450,000 | BUY | 5 / 10 | 0.00 KM |
| Selham Close, Chichester, PO19 | £ 300,000 | BUY | 6 / 10 | 0.00 KM |
| Chichester | £ 300,000 | BUY | 6 / 10 | 0.04 KM |
| Selham Close, Chichester, West Sussex | £ 395,000 | BUY | 5 / 10 | 0.04 KM |
| Selham Close, Marchwood, Summersdale, Chichester | £ 380,000 | BUY | Unknown | 0.05 KM |
Nearby Properties
| Address | Price | Distance |
|---|---|---|
| 9 Selham Close | £ 330,000 | 0.04 KM |
| 11 Selham Close | £ 380,000 | 0.04 KM |
| 12 Selham Close | £ 244,500 | 0.04 KM |
| 14 Selham Close | £ 338,000 | 0.04 KM |
| 1 Graffham Close | £ 385,000 | 0.06 KM |