Broomfield Road, Admaston, Telford, Shropshire, TF5
D

Broomfield Road, Admaston, Telford, Shropshire, TF5

By D B Roberts & Partners

£ 295,000

Reviews

3 out of 5 stars

D B Roberts & Partners says ..

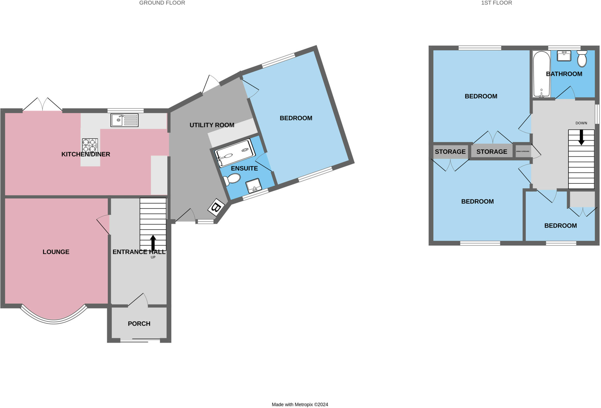
Spacious and Comfortable Accommodation Throughout! DB Roberts are excited to bring to market this immaculately presented and extended four bedroom semi-detached house, located in a sought after Telford location and boasting stylish and comfortable accommodation throughout, this propert...

Property Oracle says ..

This is a four-bedroom property located on Broomfield Road, Admaston, Telford. The house appears to be in good condition, with a modern kitchen and bathroom. It benefits from a well-maintained garden and off-street parking. The property is located in a suburban area, offering a mix of residential living with access to local amenities. The listing price of £295,000 seems competitive for the area, especially considering the size and condition of the property. The property is located 3.32 KM from Wellington (Shropshire) train station and close to local schools.

Therefore, we give this property 7 / 10. *Disclaimer: This is our option and does constitute a recommendation or financial advice. Do your own research. *

Price
8
Condition
8
Location
7
Land
7
Bedrooms
4
Bathrooms
2
Sqft (est)
1,080.00

The heatmap indicates the level of crime in the area. The color of the heatmap indicates the crime severity and recency.

Metrics Year-on-Year

Average area value
382,875.00 £
Decreased by 13.12 %
from 440,686.00 £
Est sale value
559,440.00 £
Decreased by 4.43 %
from 585,360.00 £
Average area rental value
1,824.00 £/mo
Increased by 43.40 %
from 1,272.00 £/mo
Est letting value
2,160.00 £/mo
Increased by 100.00 %
from 1,080.00 £/mo
Est rental Yield
5.72 %
Increased by 65.32 %
from 3.46 %
Crime Rate
18.00 %
Unchanged by 0.00 %
from 18.00 %

Agent Activity

  • D B Roberts & Partners created the listing.

Nearby Schools

NameTypeOfstedDistance
St Peter'S Bratton Church Of England AcademyAcademy Converter0.98 KM
Dothill Primary SchoolFoundation SchoolGood2.13 KM
St Patrick'S Catholic Primary SchoolVoluntary Aided SchoolGood2.35 KM
The Old Hall SchoolOther Independent School2.38 KM
Wrekin View Primary SchoolAcademy Converter2.47 KM

Images

Picture No. 07 Picture No. 16 Picture No. 45 Picture No. 22 Picture No. 53 Picture No. 42 Picture No. 26 Picture No. 25 Picture No. 04 Picture No. 10 Picture No. 03 Picture No. 49 Picture No. 51 Picture No. 15 Picture No. 43 Picture No. 44 Picture No. 47 Picture No. 52 Picture No. 50 Picture No. 29 Picture No. 34 Picture No. 38 Picture No. 41 Picture No. 31 Picture No. 36 Picture No. 54 Picture No. 39 Picture No. 27 Picture No. 09 Picture No. 14 Picture No. 13 Picture No. 21 Picture No. 19

Nearby Streets

NameAverage PriceAverage SqftDistance
The Beeches £ 000.00 KM
Saint Peters Walk £ 000.00 KM
MKT £ 000.00 KM
Admaston Road £ 800,00000.00 KM
B5063 £ 000.00 KM

Nearby Transport

NameNLCTLCDistance
Wellington (Shropshire)4690WLN3.32 KM

Nearby Listings

AddressPriceTypeScoreDistance
Broomfield Road, Admaston, Telford, Shropshire, TF5 £ 295,000BUY7 / 100.00 KM
The Beeches, Admaston, TF5 0AU £ 250,000BUY6 / 100.06 KM
Broomfield Road, Admaston, Telford, Shropshire, TF5 £ 245,000BUY7 / 100.10 KM
Sutton Road, Admaston, Telford, Shropshire £ 260,000BUY7 / 100.12 KM
Sutton Road, Admaston, Telford, Shropshire, TF5 0AZ £ 249,500BUY7 / 100.12 KM

Nearby Properties

AddressPriceDistance
67 Broomfield Road £ 178,0000.04 KM
65 Broomfield Road £ 215,0000.04 KM
61 Broomfield Road £ 134,0000.04 KM
106 Broomfield Road £ 145,0000.04 KM
59 Broomfield Road £ 145,5500.04 KM