1 & 1A Whitehaven Road, Cleator Moor, Cumbria CA25 5QN
AU

1 & 1A Whitehaven Road, Cleator Moor, Cumbria CA25 5QN

By Auction House Cumbria

£ 65,000

Reviews

2 out of 5 stars

Auction House Cumbria says ..

GUIDE PRICE £65,000+ FOR SALE BY PUBLIC AUCTION ON WEDNESDAY 10TH DECEMBER 2025 AT THE HALSTON HOTEL, CARLISLE - For bidding registration, please visit auctionhousecumbria.co.uk

Property Oracle says ..

This is a 3-bedroom flat located on Whitehaven Road in Cleator Moor, Cumbria. The property is listed by Auction House Cumbria with a list price of £65,000. The flat has two bathrooms and a total square footage of 1,070. While the property requires some renovation, the price per square foot is significantly below the local average, making it potentially attractive to investors or those willing to undertake renovation work. Nearby schools have ‘Good’ Ofsted ratings, which is a positive for families. Transportation links include several train stations within a few miles.

Therefore, we give this property 5 / 10. *Disclaimer: This is our option and does constitute a recommendation or financial advice. Do your own research. *

Price
8
Condition
4
Location
5
Land
3
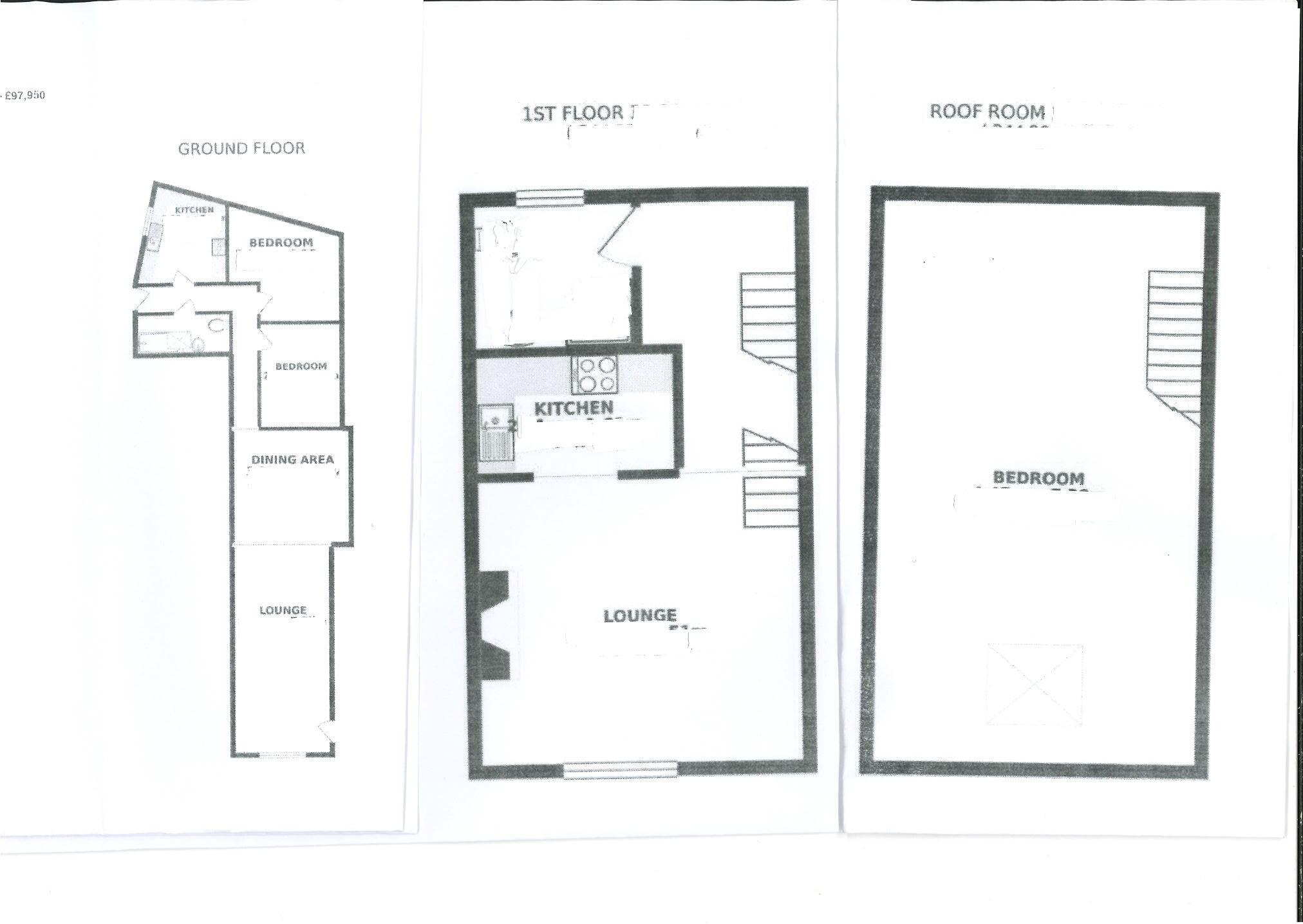
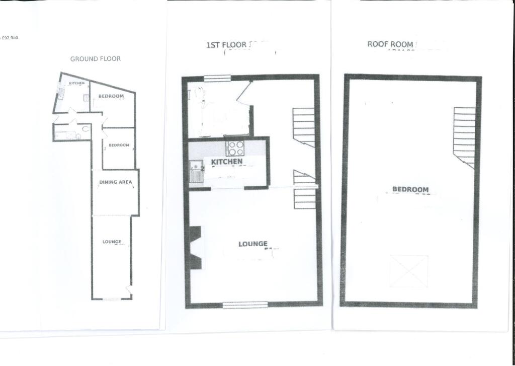
Bedrooms
3
Bathrooms
2
Sqft (est)
1,070.00

The heatmap indicates the level of crime in the area. The color of the heatmap indicates the crime severity and recency.

Metrics Year-on-Year

Average area value
436,667.00 £
Increased by 9.99 %
from 397,024.00 £
Est sale value
574,590.00 £
Increased by 46.72 %
from 391,620.00 £
Average area rental value
1,625.00 £/mo
Increased by 11.23 %
from 1,461.00 £/mo
Est letting value
1,070.00 £/mo
Unchanged by 0.00 %
from 1,070.00 £/mo
Est rental Yield
4.47 %
Increased by 1.13 %
from 4.42 %
Crime Rate
22.00 %
Unchanged by 0.00 %
from 22.00 %

Agent Activity

  • Auction House Cumbria created the listing.

Nearby Schools

NameTypeOfstedDistance
Moor Row Community Primary SchoolCommunity SchoolGood1.93 KM
St Patrick'S Catholic Primary SchoolVoluntary Aided SchoolGood2.10 KM
Montreal Cofe Primary SchoolVoluntary Controlled SchoolGood2.45 KM
Cleator Moor Nursery SchoolLocal Authority Nursery SchoolOutstanding2.54 KM
The Whitehaven AcademyAcademy Sponsor Led3.47 KM

Images

IMG 1770 T202511040927.jpg IMG 1509 T202510021414.jpeg IMG 1508 T202510021414.jpeg IMG 1505 T202510021414.jpeg IMG 1507 T202510021414.jpeg IMG 1506 T202510021414.jpeg IMG 1504 T202510021414.jpeg IMG 1513 T202510021414.jpg IMG 1514 T202510021414.jpg IMG 1515 T202510021414.jpg IMG 1512 T202510021414.jpg Fpl T202510021503.jpg

Nearby Streets

NameAverage PriceAverage SqftDistance
Eskdale Close £ 000.00 KM
Chrysler Grove £ 000.00 KM
Dale Close £ 000.00 KM
Ember Lane £ 409,95000.00 KM
The Mill £ 000.00 KM

Nearby Transport

NameNLCTLCDistance
Corkickle2049CKL6.14 KM
Whitehaven2048WTH7.08 KM
Parton2032PRN7.56 KM
St Bees2002SBS7.83 KM
Nethertown2047NRT8.76 KM

Nearby Listings

AddressPriceTypeScoreDistance
1 & 1A Whitehaven Road, Cleator Moor, Cumbria CA25 5QN £ 65,000BUY5 / 100.00 KM
Whitehaven Road, Cleator Moor, Cumbria, CA25 £ 95,000BUY6 / 100.07 KM
7 Whitehaven Road, Cleator Moor, Cumbria CA25 5QW £ 35,000BUY5 / 100.07 KM
Bowthorn Road, Cleator Moor, CA25 £ 99,000BUY6 / 100.07 KM
The Crescent, Cleator Moor £ 95,000BUY5 / 100.08 KM

Nearby Properties

AddressPriceDistance
3 Whitehaven Road £ 70,0000.04 KM
22 Weddicar Gardens £ 100,0000.08 KM
8 The Crescent £ 95,0000.09 KM
11 The Crescent £ 17,5000.09 KM
10 The Crescent £ 59,9950.09 KM