Furze Close, Ash Vale, Guildford, Surrey, GU12
By Mackenzie Smith
£ 350,000
Reviews
3 out of 5 stars
Mackenzie Smith says ..
Rarely available, this immaculate bungalow is tucked away in a private close of just eight properties, within easy reach of local amenities and just a short walk to Ash Vale and North Camp stations.
Property Oracle says ..
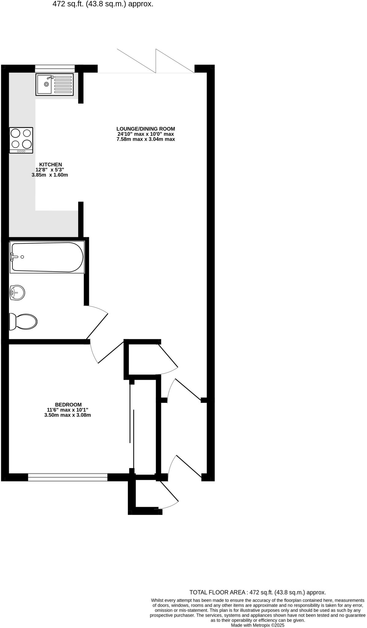
This property is a one bedroom, one bathroom bungalow located in Ash Vale, Guildford. The property is well presented and has recently been renovated to a high standard. It benefits from a private rear garden, which is relatively small but well maintained. Ash Vale is a convenient location with good transport links to London via Ash Vale train station, which is only 0.11km away. There are also several primary schools within a reasonable distance, including Holly Lodge Primary Academy (0.85km) and Shawfield Primary School (2.08km). The property is listed at £350,000 which is higher than the average price for the area (£250,215), however, the average property size in the area is significantly larger (1090 sqft vs 472 sqft), and this property has been recently renovated. Considering the condition, location, and size of the property, the price seems reasonable for a renovated property in a convenient location.
Therefore, we give this property 7 / 10. *Disclaimer: This is our option and does constitute a recommendation or financial advice. Do your own research. *
- Price
- 7
- Condition
- 9
- Location
- 8
- Land
- 6
- Bedrooms
- 1
- Bathrooms
- 1
- Sqft (est)
- 472.00
- Lot (est)
- 472.00
The heatmap indicates the level of crime in the area. The color of the heatmap indicates the crime severity and recency.
Metrics Year-on-Year
- Average area value
- 325,000.00 £Increased by 41.85 %
- Est sale value
- 141,128.00 £Increased by 32.30 %
- Average area rental value
- 473.00 £/moDecreased by 55.08 %
- Est letting value
- 0.00 £/moDecreased by 100.00 %
- Est rental Yield
- 1.75 %Decreased by 68.30 %
- Crime Rate
- 22.00 %Unchanged by 0.00 %
Agent Activity
Mackenzie Smith created the listing.
Nearby Schools
| Name | Type | Ofsted | Distance |
|---|---|---|---|
| Holly Lodge Primary Academy | Academy Converter | Good | 0.85 KM |
| Shawfield Primary School | Community School | Good | 2.08 KM |
| Sycamore Children'S Centre | Children's Centre | 2.19 KM | |
| South Farnborough Junior School | Community School | Outstanding | 2.32 KM |
| South Farnborough Infant School | Community School | Outstanding | 2.34 KM |
Images
Nearby Streets
| Name | Average Price | Average Sqft | Distance |
|---|---|---|---|
| Station Approach | £ 238,333 | 0 | 0.00 KM |
| Denton Close | £ 0 | 0 | 0.00 KM |
| Newfield Road | £ 0 | 0 | 0.00 KM |
| Enterprise Estate | £ 0 | 0 | 0.00 KM |
| Basingstoke Canal Towpath | £ 600,000 | 0 | 0.00 KM |
Nearby Transport
| Name | NLC | TLC | Distance |
|---|---|---|---|
| Ash Vale | 5547 | AHV | 0.11 KM |
| North Camp | 5636 | NCM | 1.07 KM |
| Ash | 5641 | ASH | 2.81 KM |
| Farnborough North | 5688 | FNN | 3.97 KM |
| Farnborough (Main) | 5521 | FNB | 4.56 KM |
Nearby Listings
| Address | Price | Type | Score | Distance |
|---|---|---|---|---|
| Furze Close, Ash Vale, Guildford, Surrey, GU12 | £ 350,000 | BUY | 7 / 10 | 0.00 KM |
| Frimley Road, Ash Vale | £ 475,000 | BUY | 6 / 10 | 0.08 KM |
| Frimley Road, Ash Vale, Aldershot, Surrey, GU12 | £ 475,000 | BUY | 6 / 10 | 0.09 KM |
| Frimley Road, Ash Vale, Surrey, GU12 | £ 400,000 | BUY | Unknown | 0.10 KM |
| Frimley Road, Ash Vale, Surrey, GU12 | £ 440,000 | BUY | 7 / 10 | 0.11 KM |
Nearby Properties
| Address | Price | Distance |
|---|---|---|
| 3 Furze Close | £ 315,000 | 0.01 KM |
| 8 Furze Close | £ 238,000 | 0.01 KM |
| 4 Furze Close | £ 154,000 | 0.01 KM |
| 2 Furze Close | £ 160,000 | 0.01 KM |
| 1 Furze Close | £ 148,000 | 0.01 KM |