MA
Barcombe Avenue, London, SW2
By Malixons
£ 3,850
Malixons says ..
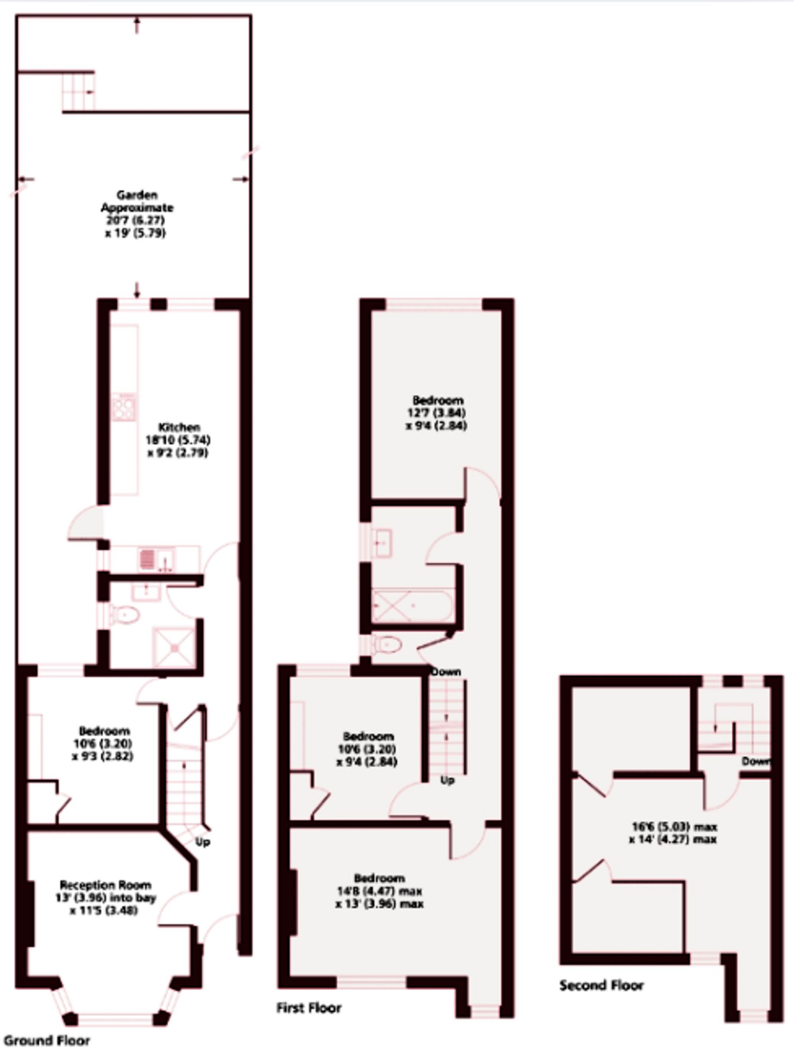
HMO Friendly! 5 bedroom house split over 3 levels suitable for up to 5 sharers!
- Bedrooms
- 5
- Bathrooms
- 2
The heatmap indicates the level of crime in the area. The color of the heatmap indicates the crime severity and recency.
Metrics Year-on-Year
- Average area value
- 628,333.00 £Decreased by 11.41 %
- Average area rental value
- 2,316.00 £/moDecreased by 1.28 %
- Est rental Yield
- 4.42 %Increased by 11.34 %
- Crime Rate
- 3.00 %Unchanged by 0.00 %
from 709,221.00 £
from 2,346.00 £/mo
from 3.97 %
from 3.00 %
Agent Activity
Malixons created the listing.
Nearby Schools
| Name | Type | Ofsted | Distance |
|---|---|---|---|
| The Livity School | Community Special School | Good | 0.28 KM |
| Christ Church, Streatham Church Of England Primary School | Academy Converter | 0.68 KM | |
| The Orchard School | Voluntary Aided School | Outstanding | 0.71 KM |
| Dunraven School | Academy Converter | Outstanding | 0.82 KM |
| Streatham Wells Primary School | Community School | Good | 0.84 KM |
Images
Nearby Streets
| Name | Average Price | Average Sqft | Distance |
|---|---|---|---|
| Leigham Court Road | £ 0 | 0 | 0.00 KM |
| Cherry Tree Drive | £ 0 | 0 | 0.00 KM |
| Claremont Close | £ 400,000 | 0 | 0.00 KM |
| Hartwell Close | £ 0 | 0 | 0.00 KM |
| Knollys Road | £ 390,000 | 0 | 0.00 KM |
Nearby Transport
| Name | NLC | TLC | Distance |
|---|---|---|---|
| Streatham Hill | 5435 | SRH | 0.41 KM |
| Streatham | 5383 | STE | 1.71 KM |
| Tulse Hill | 5390 | TUH | 2.04 KM |
| West Norwood | 5438 | WNW | 2.32 KM |
| Streatham Common | 5384 | SRC | 2.64 KM |
Nearby Listings
| Address | Price | Type | Score | Distance |
|---|---|---|---|---|
| Barcombe Avenue, London, SW2 | £ 3,850 | RENT | Unknown | 0.00 KM |
| Barcombe Avenue, London, SW2 | £ 3,400 | RENT | Unknown | 0.03 KM |
| Barcombe Avenue, SW2 | £ 4,500 | RENT | Unknown | 0.08 KM |
| Barcombe Avenue, Streatham Hill | £ 4,600 | RENT | Unknown | 0.12 KM |
| Cricklade Avenue, Streatham Hill, London, SW2 | £ 3,500 | RENT | Unknown | 0.12 KM |
Nearby Properties
| Address | Price | Distance |
|---|---|---|
| 52b Barcombe Avenue | £ 485,000 | 0.06 KM |
| 74 Barcombe Avenue | £ 890,000 | 0.06 KM |
| 82 Barcombe Avenue | £ 489,000 | 0.06 KM |
| 52a Barcombe Avenue | £ 420,000 | 0.06 KM |
| 52 Barcombe Avenue | £ 360,000 | 0.06 KM |