Rushmere Road, PONTLLANFRAITH, NP12
By Cariad Property
£ 195,000
Reviews
3 out of 5 stars
Cariad Property says ..
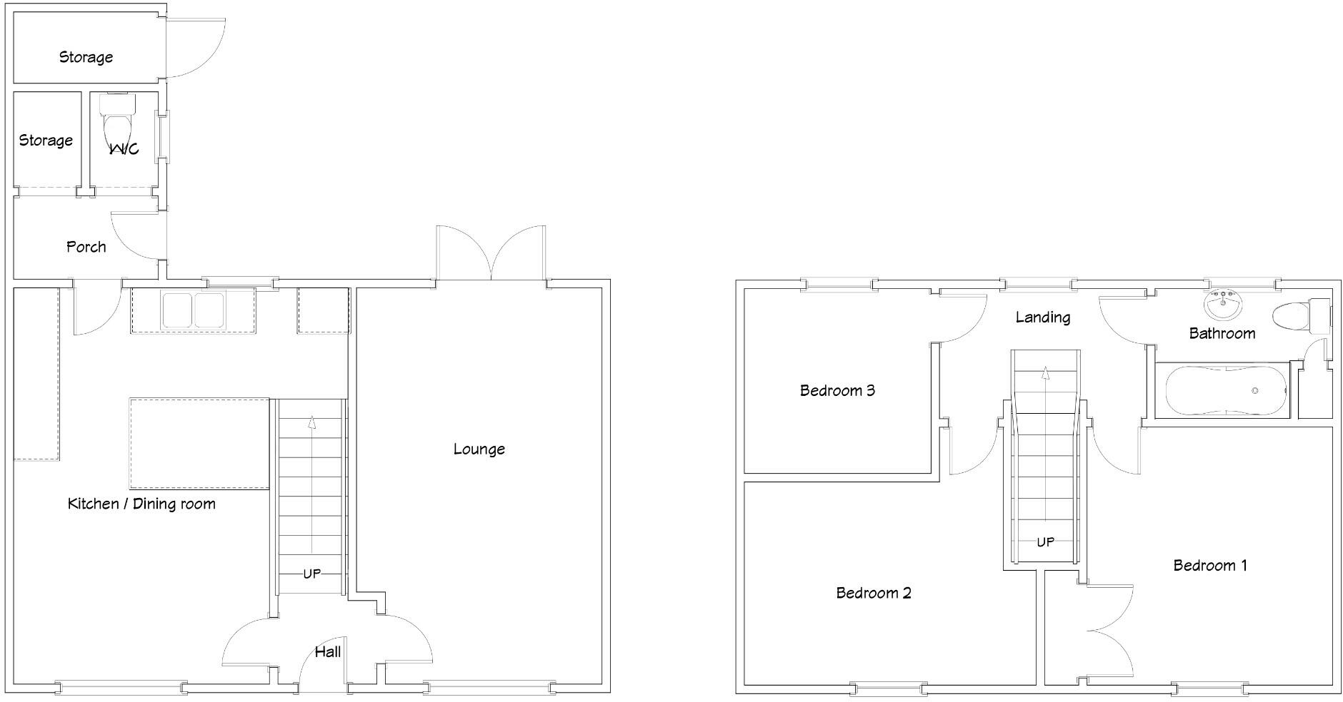
SPACIOUS THREE BEDROOM FAMILY HOME WITH A LARGE GARDEN! Popular area, perfect for schools and travel links, large kitchen/diner, two WCs, driveway and large gardens, no chain.
Property Oracle says ..
The property is a 3-bedroom, 2-bathroom house located in Pontllanfraith, Caerphilly, with nearby schools and train stations. While structurally sound, the interior requires modernisation, and the garden needs maintenance. The listed price may be reasonable considering the need for renovation and the average house prices in the area. However, a precise price-per-square-foot comparison is not possible due to missing square footage data.
Therefore, we give this property 6 / 10. *Disclaimer: This is our option and does constitute a recommendation or financial advice. Do your own research. *
- Price
- 7
- Condition
- 6
- Location
- 7
- Land
- 7
- Bedrooms
- 3
- Bathrooms
- 2
The heatmap indicates the level of crime in the area. The color of the heatmap indicates the crime severity and recency.
Metrics Year-on-Year
- Average area value
- 187,143.00 £Decreased by 32.77 %
- Average area rental value
- 825.00 £/moIncreased by 3.90 %
- Est rental Yield
- 5.29 %Increased by 54.68 %
- Crime Rate
- 9.00 %Unchanged by 0.00 %
Agent Activity
Cariad Property created the listing.
Nearby Schools
| Name | Type | Ofsted | Distance |
|---|---|---|---|
| Bryn Primary School | Welsh Establishment | 0.48 KM | |
| Penllwyn Primary School | Welsh Establishment | 0.55 KM | |
| Libanus Primary School | Welsh Establishment | 1.17 KM | |
| Pontllanfraith Primary School | Welsh Establishment | 1.72 KM | |
| Blackwood Primary School | Welsh Establishment | 1.77 KM |
Images
Nearby Streets
| Name | Average Price | Average Sqft | Distance |
|---|---|---|---|
| Lime Grove | £ 0 | 0 | 0.00 KM |
| Chestnut Grove | £ 0 | 0 | 0.00 KM |
| Laurel Drive | £ 0 | 0 | 0.00 KM |
| Gelli Lane | £ 0 | 0 | 0.00 KM |
| Penllwyn Terrace | £ 0 | 0 | 0.00 KM |
Nearby Transport
| Name | NLC | TLC | Distance |
|---|---|---|---|
| Hengoed | 4028 | HNG | 2.87 KM |
| Pengam | 4021 | PGM | 4.07 KM |
| Gilfach Fargoed | 4022 | GFF | 4.77 KM |
| Ystrad Mynach | 4026 | YSM | 4.88 KM |
| Bargoed | 4011 | BGD | 5.69 KM |
Nearby Listings
| Address | Price | Type | Score | Distance |
|---|---|---|---|---|
| Rushmere Road, PONTLLANFRAITH, NP12 | £ 195,000 | BUY | 6 / 10 | 0.00 KM |
| Rushmere Road, Pontllanfraith, NP12 | £ 180,000 | BUY | 6 / 10 | 0.07 KM |
| Rushmere Road, Pontllanfraith, NP12 | £ 190,000 | BUY | 6 / 10 | 0.07 KM |
| St. Marys Road, Pontllanfraith, NP12 | £ 194,950 | BUY | 7 / 10 | 0.12 KM |
| Highfield Crescent, Pontllanfraith, NP12 | £ 255,000 | BUY | 6 / 10 | 0.13 KM |
Nearby Properties
| Address | Price | Distance |
|---|---|---|
| 1 Rushmere Road | £ 87,950 | 0.00 KM |
| 6 Rushmere Road | £ 213,500 | 0.00 KM |
| 24 Rushmere Road | £ 80,200 | 0.00 KM |
| 10 Rushmere Road | £ 92,000 | 0.00 KM |
| 2 Beechcroft | £ 105,000 | 0.08 KM |