KE
Rowan Gardens, Iver, Buckinghamshire, SL0
By Kearns Residential
£ 435,000
Reviews
3 out of 5 stars
Kearns Residential says ..
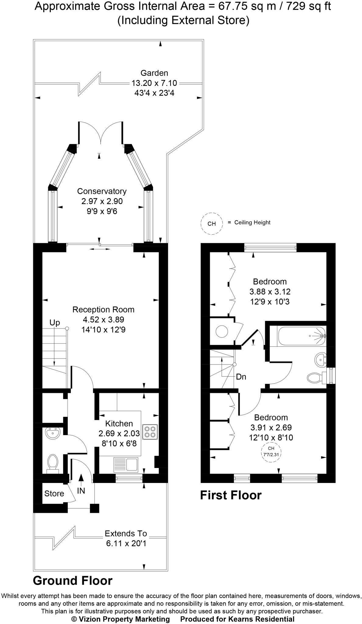
A stunning two bedroom family home, found in the heart of Iver.
Property Oracle says ..
Therefore, we give this property 7 / 10. *Disclaimer: This is our option and does constitute a recommendation or financial advice. Do your own research. *
- Price
- 8
- Condition
- 7
- Location
- 7
- Land
- 6
- Bedrooms
- 2
- Bathrooms
- 1
- Sqft (est)
- 1,592.93
The heatmap indicates the level of crime in the area. The color of the heatmap indicates the crime severity and recency.
Metrics Year-on-Year
- Average area value
- 607,000.00 £Decreased by 21.97 %
- Est sale value
- 872,925.64 £Increased by 11.84 %
- Average area rental value
- 2,192.00 £/moIncreased by 5.23 %
- Est letting value
- 1,592.93 £/moUnchanged by 0.00 %
- Est rental Yield
- 4.33 %Increased by 34.89 %
- Crime Rate
- 24.00 %Unchanged by 0.00 %
from 777,881.00 £
from 780,535.70 £
from 2,083.00 £/mo
from 1,592.93 £/mo
from 3.21 %
from 24.00 %
Agent Activity
Kearns Residential created the listing.
Nearby Schools
| Name | Type | Ofsted | Distance |
|---|---|---|---|
| Iver Heath Junior School | Community School | Good | 0.26 KM |
| Iver Heath Infant School And Nursery | Community School | Good | 0.47 KM |
| The Iver Village Junior School | Community School | Good | 2.20 KM |
| Iver Village Infant School | Community School | Good | 2.58 KM |
| The Ivers Family Centre | Children's Centre | 2.73 KM |
Images
Nearby Streets
| Name | Average Price | Average Sqft | Distance |
|---|---|---|---|
| Alder Road | £ 425,000 | 0 | 0.00 KM |
| Church Road | £ 1,661,667 | 0 | 0.00 KM |
| A412 | £ 350,000 | 0 | 0.00 KM |
| White House Way | £ 0 | 0 | 0.00 KM |
| St Margaret's Close | £ 0 | 0 | 0.00 KM |
Nearby Transport
| Name | NLC | TLC | Distance |
|---|---|---|---|
| Iver | 3170 | IVR | 3.78 KM |
| Langley | 3171 | LNY | 3.89 KM |
| Denham Golf Club | 3060 | DGC | 4.79 KM |
| Denham | 3052 | DNM | 5.39 KM |
| West Drayton | 3174 | WDT | 6.49 KM |
Nearby Listings
| Address | Price | Type | Score | Distance |
|---|---|---|---|---|
| Rowan Gardens, Iver, Buckinghamshire, SL0 | £ 435,000 | BUY | 7 / 10 | 0.00 KM |
| Alder Road, Iver, Buckinghamshire | £ 425,000 | BUY | 5 / 10 | 0.08 KM |
| Glaisyer Way, Iver, SL0 | £ 625,000 | BUY | 7 / 10 | 0.09 KM |
| Oak End Drive, Iver Heath, SL0 | £ 565,000 | BUY | Unknown | 0.09 KM |
| Oak End Drive, Iver Heath, SL0 | £ 550,000 | BUY | 7 / 10 | 0.09 KM |
Nearby Properties
| Address | Price | Distance |
|---|---|---|
| 7 Rowan Gardens | £ 84,000 | 0.01 KM |
| 1 Rowan Gardens | £ 51,500 | 0.01 KM |
| 9 Rowan Gardens | £ 48,000 | 0.01 KM |
| 11 Rowan Gardens | £ 75,000 | 0.01 KM |
| 10 Rowan Gardens | £ 18,750 | 0.01 KM |