Southwell Street, Portland
HU

Southwell Street, Portland

By Hull Gregson Hull

£ 300,000

Reviews

3 out of 5 stars

Hull Gregson Hull says ..

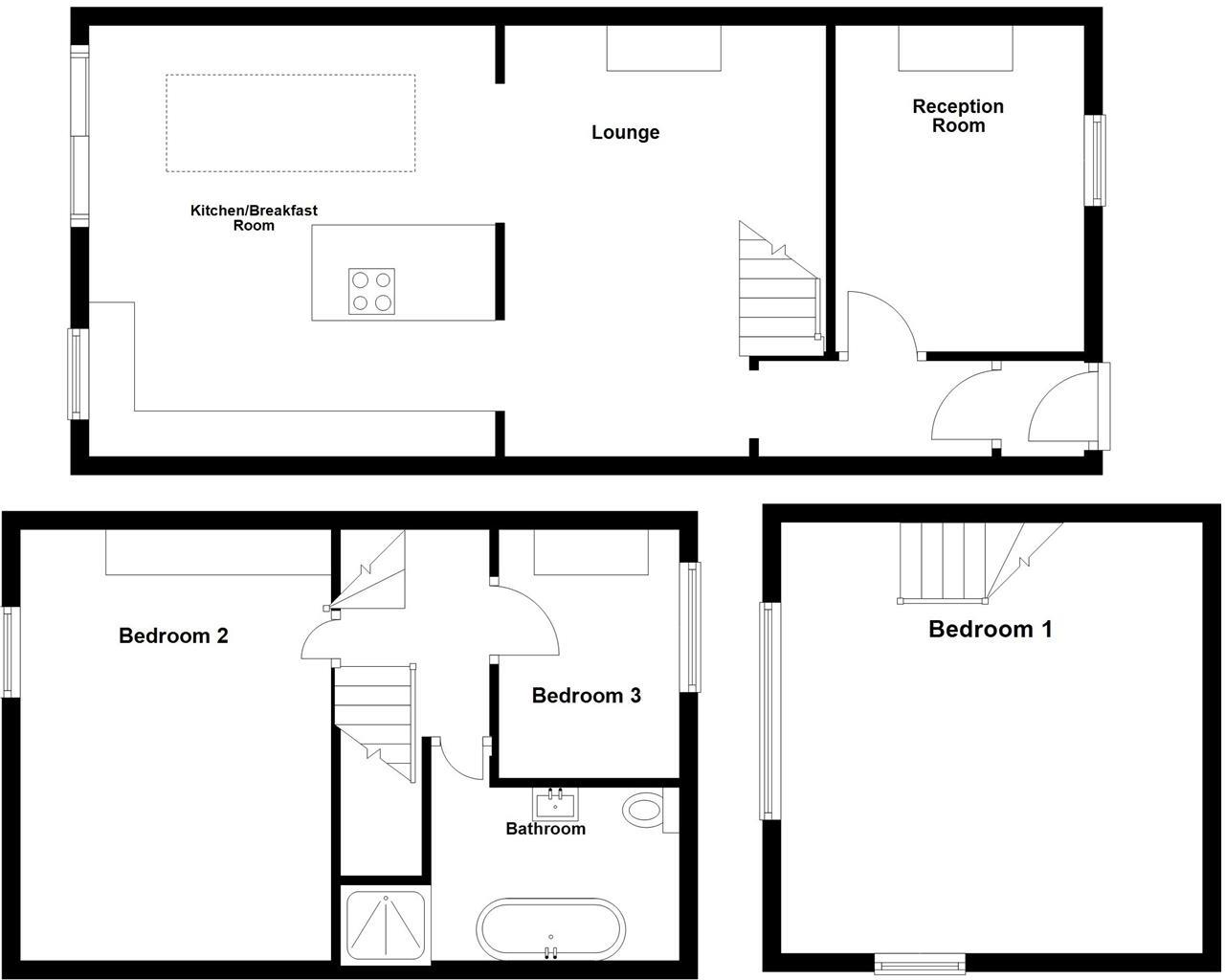
Offered FOR SALE WITH NO FORWARD CHAIN is this enchanting PORTLAND STONE COTTAGE, BUILT CIRCA 1900, a home rich with CHARACTER, SEA AIR, and undeniable PERIOD CHARM. Featuring COSY RECEPTION SPACES, a BRIGHT KITCHEN BREAKFAST ROOM with LANTERN ROOF LIGHT, and a PRINCIPAL TOP-FLOOR BEDROOM with SE...

Property Oracle says ..

This end-of-terrace property is located in Portland, Dorset. The property has three bedrooms and one bathroom. It is listed for £300,000. The property is in reasonable condition, with some modern updates. The property benefits from a garden. The property is located 1.18 KM away from Atlantic Academy Portland and 1.58 KM from St George’S Community Primary School. The property is located close to the coast. Weymouth is 9.68 KM away.

Therefore, we give this property 7 / 10. *Disclaimer: This is our option and does constitute a recommendation or financial advice. Do your own research. *

Price
7
Condition
6
Location
7
Land
8
Bedrooms
3
Bathrooms
1
Sqft (est)
1,180.00

The heatmap indicates the level of crime in the area. The color of the heatmap indicates the crime severity and recency.

Metrics Year-on-Year

Average area value
245,556.00 £
Decreased by 11.27 %
from 276,743.00 £
Est sale value
381,140.00 £
Increased by 76.50 %
from 215,940.00 £
Average area rental value
844.00 £/mo
Decreased by 6.12 %
from 899.00 £/mo
Est letting value
1,180.00 £/mo
from 0.00 £/mo
Est rental Yield
4.12 %
Increased by 5.64 %
from 3.90 %
Crime Rate
10.00 %
Unchanged by 0.00 %
from 10.00 %

Agent Activity

  • Hull Gregson Hull created the listing.

Nearby Schools

NameTypeOfstedDistance
Atlantic Academy PortlandAcademy Sponsor Led1.18 KM
St George'S Community Primary SchoolFoundation SchoolGood1.58 KM
Outlooks - Portland Children'S CentreChildren's Centre3.86 KM
Wyke Regis Church Of England Junior SchoolVoluntary Controlled SchoolRequires improvement8.29 KM
All Saints' Church Of England AcademyAcademy Sponsor Led8.34 KM

Images

20251113_101745.jpg 20251113_101709.jpg 67f4298d1f191-1271935 D (9).jpg -Southwell-Street-11112025_160232.jpg -Southwell-Street-11112025_160445.jpg -Southwell-Street-11112025_160630.jpg tTVgxTwxHk2u5XUzm1qA8g.jpg -Southwell-Street-11112025_160402.jpg -Southwell-Street-11112025_160520.jpg -Southwell-Street-11112025_160734.jpg -Southwell-Street-Bathroom.jpg Southwell-Street-Bedroom 1.jpg Southwell-Street-Bedroom 2.jpg -Southwell-Street-11112025_151932.jpg -Southwell-Street-11112025_160251.jpg 20251113_101654.jpg Southwell-Street-11112025_152125.jpg Southwell-Street-Kitchen 1.jpg 20251113_101819.jpg -Southwell-Street-Office.jpg 20251113_101808.jpg 67e6ddf01a338-1268382 D (10).jpg

Nearby Streets

NameAverage PriceAverage SqftDistance
Gypsy Lane £ 000.00 KM
Leading to Four Acres £ 000.00 KM
Red Crane Walk £ 000.00 KM
Kingbarrow Drive £ 000.00 KM
Station Road £ 000.00 KM

Nearby Transport

NameNLCTLCDistance
Weymouth5965WEY9.68 KM

Nearby Listings

AddressPriceTypeScoreDistance
Southwell Street, Portland £ 300,000BUY7 / 100.00 KM
Southwell Street, Portland £ 325,000BUYUnknown0.03 KM
Southwell Street, Portland £ 300,000BUYUnknown0.03 KM
Southwell Street, Portland £ 260,000BUY6 / 100.03 KM
Southwell Street, Portland £ 535,000BUY8 / 100.03 KM

Nearby Properties

AddressPriceDistance
25 High Street £ 62,0000.05 KM
23 High Street £ 200,0000.05 KM
13 High Street £ 215,0000.05 KM
11 High Street £ 225,0000.07 KM
5 Cedar Drive £ 224,0000.09 KM