Uttoxeter New Road, Derby, DE22
By SABEL & CO
£ 400,000
Reviews
3 out of 5 stars
SABEL & CO says ..
Unique Opportunity to Purchase Two Leasehold FlatsThis versatile property is currently configured as shared accommodation but offers potential for various uses.
Property Oracle says ..
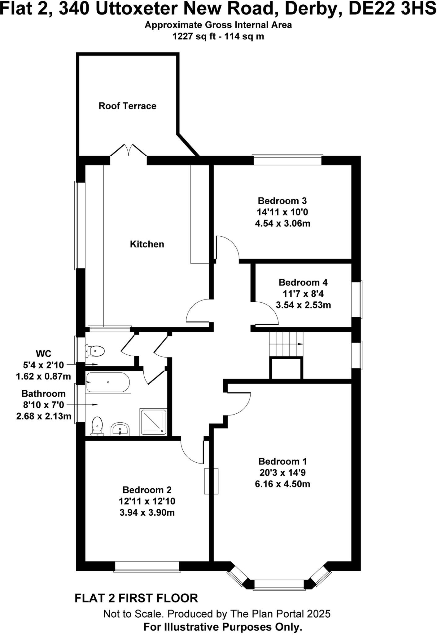
This property in Derby, located on Uttoxeter New Road, is an eight-bedroom, five-bathroom house presented as shared accommodation. Its location offers proximity to several schools, including The Bemrose School, which received a ‘Good’ Ofsted rating. The images suggest the house has undergone some recent renovations or refurbishment, as it features a modern interior design and updated fixtures. The property showcases stylish décor in various rooms, with newly painted walls and updated lighting and flooring in several areas. Images reveal a small rear garden area and a paved area that appears to provide parking space. More information is needed to fully assess the size and layout of the property, especially with regard to the external space and to make a definitive statement on its suitability for families or investors, or as continued shared accommodation. The asking price of £400,000 requires more data to confidently ascertain value, given that the property is advertised as a house share, which may influence individual room sizes. Comparing the price to nearby properties also requires precise square footage information for this property to perform a more exact analysis. The lack of complete detail on square footage and land sizes makes a complete assessment difficult. Further inspection is recommended to thoroughly assess the property’s condition, potential, and suitability to your needs before making a purchase decision. This property is well located for access to schools and transport, but the overall price and available information are insufficient to properly value it and make an informed recommendation.
Therefore, we give this property 6 / 10. *Disclaimer: This is our option and does constitute a recommendation or financial advice. Do your own research. *
- Price
- 6
- Condition
- 7
- Location
- 7
- Land
- 4
- Bedrooms
- 8
- Bathrooms
- 5
The heatmap indicates the level of crime in the area. The color of the heatmap indicates the crime severity and recency.
Metrics Year-on-Year
- Average area value
- 350,323.00 £Decreased by 1.18 %
- Average area rental value
- 1,334.00 £/moDecreased by 2.49 %
- Est rental Yield
- 4.57 %Decreased by 1.30 %
- Crime Rate
- 7.00 %Unchanged by 0.00 %
Agent Activity
SABEL & CO created the listing.
Nearby Schools
| Name | Type | Ofsted | Distance |
|---|---|---|---|
| The Bemrose School | Foundation School | Good | 0.16 KM |
| Bishop Lonsdale Church Of England Primary School And Nursery | Academy Sponsor Led | Good | 0.98 KM |
| Ashgate Nursery School | Local Authority Nursery School | Good | 1.22 KM |
| Derby Cathedral School | Free Schools | 1.25 KM | |
| Ashgate Primary School | Community School | Good | 1.28 KM |
Images
Nearby Streets
| Name | Average Price | Average Sqft | Distance |
|---|---|---|---|
| Saint Wystan's Road | £ 299,000 | 0 | 0.00 KM |
| Cannock Court | £ 130,000 | 0 | 0.00 KM |
| Bramble Drive | £ 284,950 | 0 | 0.00 KM |
| Bright Street | £ 190,000 | 0 | 0.00 KM |
| Boundary Road | £ 140,000 | 0 | 0.00 KM |
Nearby Transport
| Name | NLC | TLC | Distance |
|---|---|---|---|
| Peartree | 1687 | PEA | 3.96 KM |
| Derby | 1823 | DBY | 4.36 KM |
| Duffield | 1691 | DFI | 8.14 KM |
| Willington | 1905 | WIL | 9.74 KM |
Nearby Listings
| Address | Price | Type | Score | Distance |
|---|---|---|---|---|
| Uttoxeter New Road, Derby, DE22 | £ 385,000 | BUY | 6 / 10 | 0.00 KM |
| Trowels Lane, Derby | £ 235,000 | BUY | 6 / 10 | 0.09 KM |
| Trowels Lane NR Derby Hospital, Derby, DE22 | £ 329,950 | BUY | 7 / 10 | 0.10 KM |
| Great Willow Court | £ 150,000 | BUY | 6 / 10 | 0.10 KM |
| Trowels Lane, Derby | £ 550,000 | BUY | 7 / 10 | 0.11 KM |
Nearby Properties
| Address | Price | Distance |
|---|---|---|
| 2a Trowels Lane | £ 115,000 | 0.09 KM |
| 2b Trowels Lane | £ 150,000 | 0.09 KM |
| 16 Trowels Lane | £ 146,000 | 0.09 KM |
| 21 Trowels Lane | £ 343,000 | 0.09 KM |
| 18 Trowels Lane | £ 168,000 | 0.09 KM |