Martin & Co says ..
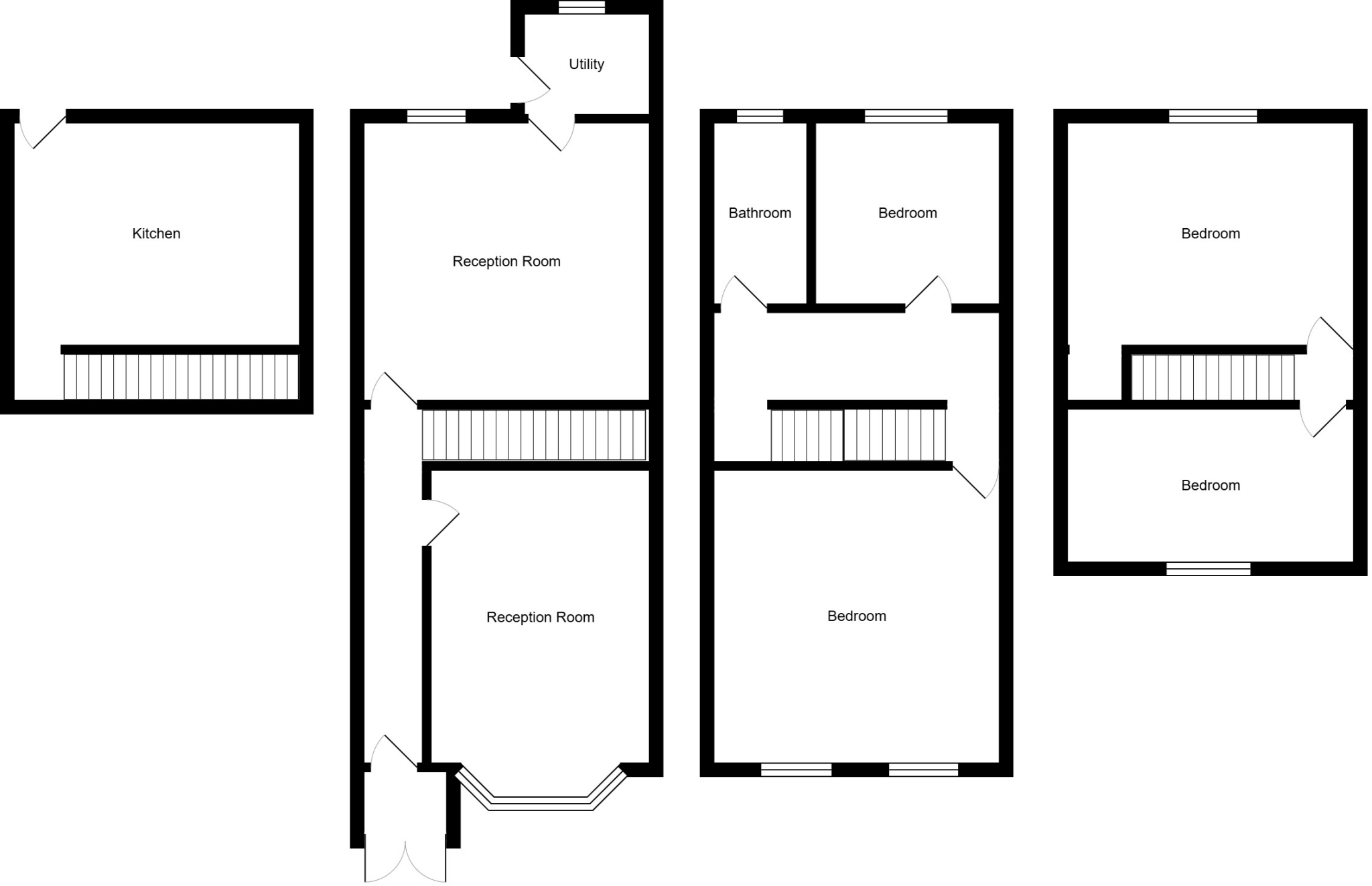
We are please to present this four bedroom family home for sale. Offering ample living space spread over four floors, this property will make an ideal family home for anyone looking to settle in the area. Boasting: four double bedrooms, modern bathroom, basement kitchen and rear yard.
Property Oracle says ..
This four-bedroom terraced house in Bradford is listed at £160,000. The property benefits from a modern bathroom and kitchen, and what appears to be a recently renovated loft conversion. However, the small rear yard is in need of some attention. The location is convenient, with good access to local schools and transport links. While the property is in good condition, the average price per square foot in the area is significantly higher than that reflected in the list price. This suggests that the property may be undervalued, particularly considering the recent renovations.
Therefore, we give this property 5 / 10. *Disclaimer: This is our option and does constitute a recommendation or financial advice. Do your own research. *
- Price
- 6
- Condition
- 7
- Location
- 7
- Land
- 3
- Bedrooms
- 4
- Bathrooms
- 1
- Sqft (est)
- 800.00
The heatmap indicates the level of crime in the area. The color of the heatmap indicates the crime severity and recency.
Metrics Year-on-Year
- Average area value
- 856,250.00 £Increased by 15.74 %
- Est sale value
- 568,000.00 £Increased by 21.37 %
- Average area rental value
- 2,000.00 £/moDecreased by 15.25 %
- Est letting value
- 800.00 £/moUnchanged by 0.00 %
- Est rental Yield
- 2.80 %Decreased by 26.89 %
- Crime Rate
- 5.00 %Unchanged by 0.00 %
Agent Activity
Martin & Co marked this listing as sold.
Martin & Co created the listing.
Nearby Schools
| Name | Type | Ofsted | Distance |
|---|---|---|---|
| Girlington Primary School | Community School | Good | 0.37 KM |
| St Philip'S Cofe Primary School | Academy Sponsor Led | Good | 0.41 KM |
| St Edmunds Nursery School & Children'S Centre | Children's Centre | 0.41 KM | |
| St Edmund'S Nursery School & Children'S Centre | Local Authority Nursery School | Outstanding | 0.42 KM |
| St Cuthbert And The First Martyrs' Catholic Primary School, A Voluntary Academy | Academy Converter | 0.53 KM |
Images
Nearby Streets
| Name | Average Price | Average Sqft | Distance |
|---|---|---|---|
| Bridgwater Road | £ 0 | 0 | 0.00 KM |
| St. Leonard's Grove | £ 180,000 | 0 | 0.00 KM |
| Rand's Almshouses | £ 0 | 0 | 0.00 KM |
| Lily Croft | £ 0 | 0 | 0.00 KM |
| Heaton Road | £ 52,000 | 0 | 0.00 KM |
Nearby Transport
| Name | NLC | TLC | Distance |
|---|---|---|---|
| Frizinghall | 8556 | FZH | 2.63 KM |
| Shipley (Yorks) | 8347 | SHY | 3.45 KM |
| Saltaire | 8561 | SAE | 3.73 KM |
| Bradford Forster Square | 8346 | BDQ | 3.90 KM |
| Bradford Interchange | 8345 | BDI | 4.45 KM |
Nearby Listings
| Address | Price | Type | Score | Distance |
|---|---|---|---|---|
| Durham Road , Bradford | £ 160,000 | BUY | 5 / 10 | 0.00 KM |
| Kensington Street, Bradford | £ 180,000 | BUY | 5 / 10 | 0.05 KM |
| Kensington Street, Bradford | £ 190,000 | BUY | 5 / 10 | 0.09 KM |
| Velvet Mills, Lilycroft Road | £ 55,000 | BUY | 7 / 10 | 0.24 KM |
| Lister Mills, Lilycroft Road, Bradford | £ 60,000 | BUY | 5 / 10 | 0.24 KM |
Nearby Properties
| Address | Price | Distance |
|---|---|---|
| 60 Durham Road | £ 120,000 | 0.00 KM |
| 14 Durham Road | £ 45,000 | 0.00 KM |
| 286 Kensington Street | £ 75,000 | 0.05 KM |
| 298 Kensington Street | £ 38,000 | 0.05 KM |
| 332 Kensington Street | £ 150,000 | 0.05 KM |