Development Site, Toronto Road, Exeter
By Naomi J Ryan
£ 390,000
Reviews
2 out of 5 stars
Naomi J Ryan says ..
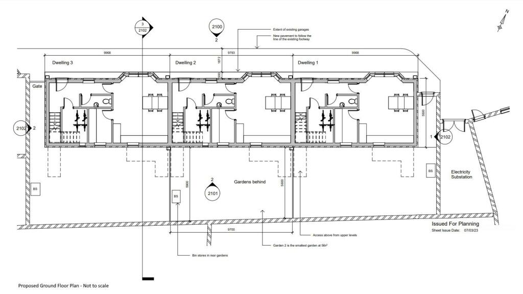
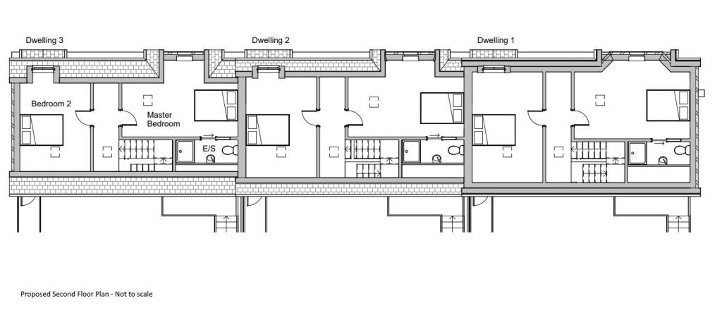
Development site with full planning permission granted for the demolition of existing garage block to construct 3 x three bedroom terraced dwellings (C3 Use Class) with external amenity space, first floor rear balconies, landscaping and associated works. Toronto Road offers a cul-de-sac ...
Property Oracle says ..
This property listing presents a development opportunity in Exeter, Devon. The site currently houses a garage block slated for demolition to make way for three new three-bedroom terraced houses, each with outdoor space and first-floor balconies. The plans reveal a well-thought-out design, promising modern, comfortable living spaces. The location, close to Exeter city centre and several schools and train stations, is another positive aspect. However, crucial information such as the precise plot size and the lack of information regarding comparable property sales near the location makes a complete assessment challenging. While the current site condition necessitates demolition, the proposed design’s potential contributes positively. Similarly, while location offers several benefits, the lack of detailed information regarding immediate amenities and infrastructure means the assessment is not without reservations. The price seems to reflect a reasonable market value, but more detailed local market information is needed to confirm its competitiveness. Overall, the project holds promise, but prospective buyers should carry out thorough due diligence before committing.
Therefore, we give this property 5 / 10. *Disclaimer: This is our option and does constitute a recommendation or financial advice. Do your own research. *
- Price
- 7
- Condition
- 4
- Location
- 7
- Land
- 5
- Bedrooms
- 9
- Bathrooms
- 6
The heatmap indicates the level of crime in the area. The color of the heatmap indicates the crime severity and recency.
Metrics Year-on-Year
- Average area value
- 521,250.00 £Increased by 29.23 %
- Average area rental value
- 1,512.00 £/moIncreased by 50.45 %
- Est rental Yield
- 3.48 %Increased by 16.39 %
- Crime Rate
- 9.00 %Unchanged by 0.00 %
Agent Activity
Naomi J Ryan created the listing.
Nearby Schools
| Name | Type | Ofsted | Distance |
|---|---|---|---|
| Newtown Primary School | Community School | Requires improvement | 0.51 KM |
| St Sidwell'S Church Of England Primary School And Nursery | Voluntary Aided School | Good | 0.68 KM |
| Stoke Hill Infant And Nursery School | Community School | Outstanding | 0.84 KM |
| The Maynard School | Other Independent School | 0.89 KM | |
| Ladysmith Junior School | Community School | Good | 0.98 KM |
Images
Nearby Streets
| Name | Average Price | Average Sqft | Distance |
|---|---|---|---|
| St James' Close | £ 275,000 | 0 | 0.00 KM |
| Culverland Close | £ 550,000 | 0 | 0.00 KM |
| Exon Mews | £ 0 | 0 | 0.00 KM |
| Clifton Hill | £ 0 | 0 | 0.00 KM |
| Townsend Court | £ 0 | 0 | 0.00 KM |
Nearby Transport
| Name | NLC | TLC | Distance |
|---|---|---|---|
| St James Park (Exeter) | 5751 | SJP | 0.44 KM |
| Exeter Central | 5755 | EXC | 1.72 KM |
| Polsloe Bridge | 3422 | POL | 1.79 KM |
| Exeter St Thomas | 3414 | EXT | 2.71 KM |
| Exeter St David'S | 3410 | EXD | 2.78 KM |
Nearby Listings
| Address | Price | Type | Score | Distance |
|---|---|---|---|---|
| Development Site, Toronto Road, Exeter | £ 390,000 | BUY | 5 / 10 | 0.00 KM |
| Toronto Road, Exeter | £ 280,000 | BUY | Unknown | 0.04 KM |
| Toronto Road, Exeter, EX4 | £ 315,000 | BUY | 6 / 10 | 0.05 KM |
| Albion Place, Exeter | £ 325,000 | BUY | 7 / 10 | 0.08 KM |
| Blackboy Road, Exeter | £ 240,000 | BUY | 5 / 10 | 0.11 KM |
Nearby Properties
| Address | Price | Distance |
|---|---|---|
| 25 Toronto Road | £ 187,500 | 0.04 KM |
| 10 Toronto Road | £ 169,000 | 0.06 KM |
| 15 Toronto Road | £ 144,950 | 0.06 KM |
| 2 Toronto Road | £ 330,000 | 0.06 KM |
| 14 Toronto Road | £ 136,000 | 0.06 KM |