Michael Anthony says ..
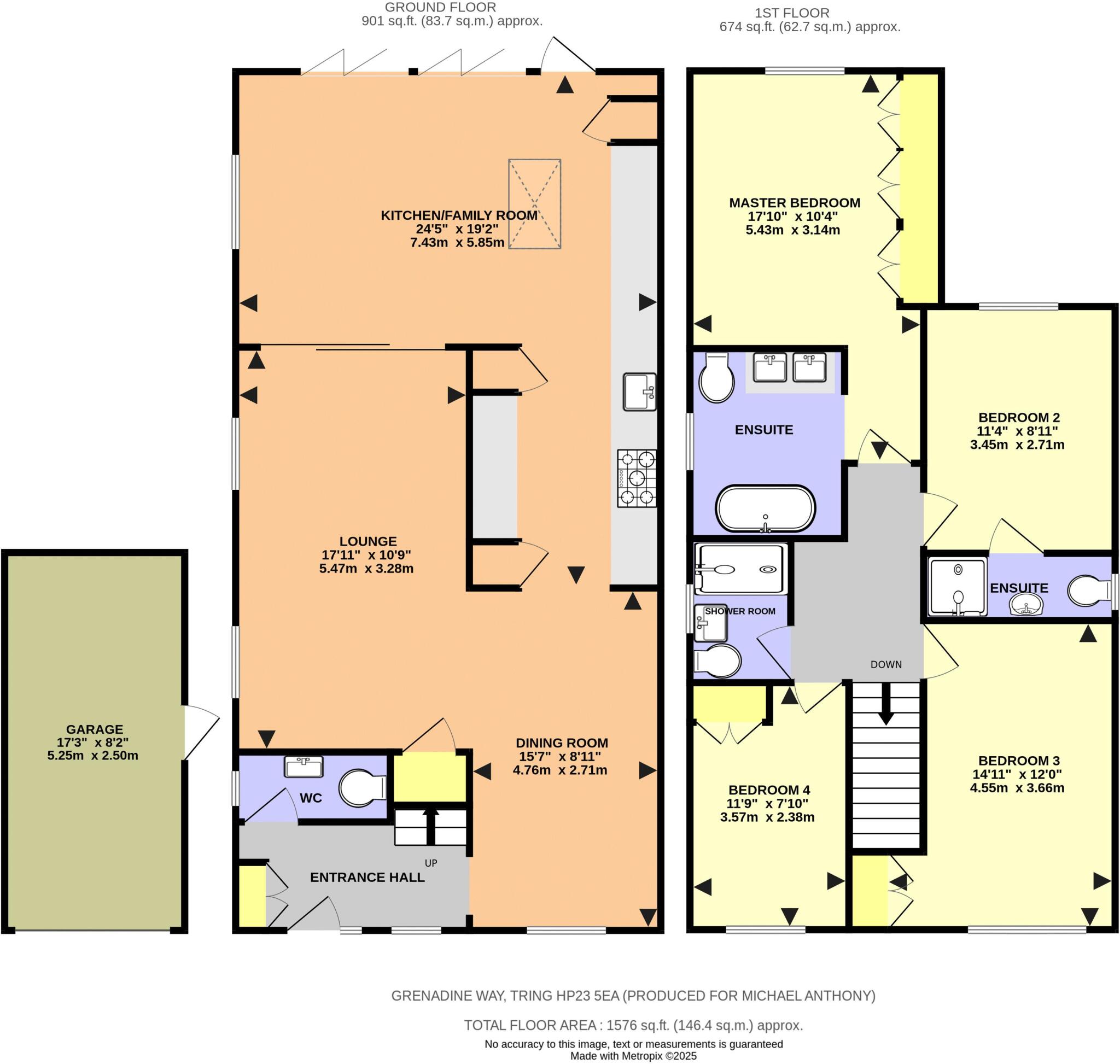
A deceptively spacious and beautifully presented four double bedroom detached family home which has been tastefully extended to now provide two separate reception rooms, a wonderful open plan kitchen/living room which opens straight onto the landscaped gardens, main bedroom with en suite bathroo...
Property Oracle says ..
Therefore, we give this property 7 / 10. *Disclaimer: This is our option and does constitute a recommendation or financial advice. Do your own research. *
- Price
- 6
- Condition
- 8
- Location
- 8
- Land
- 7
- Bedrooms
- 4
- Bathrooms
- 3
- Sqft (est)
- 1,495.11
The heatmap indicates the level of crime in the area. The color of the heatmap indicates the crime severity and recency.
Metrics Year-on-Year
- Average area value
- 428,333.00 £Decreased by 28.11 %
- Est sale value
- 737,089.23 £Decreased by 1.99 %
- Average area rental value
- 1,150.00 £/moDecreased by 30.18 %
- Est letting value
- 1,495.11 £/moUnchanged by 0.00 %
- Est rental Yield
- 3.22 %Decreased by 3.01 %
- Crime Rate
- 11.00 %Unchanged by 0.00 %
from 595,803.00 £
from 752,040.33 £
from 1,647.00 £/mo
from 1,495.11 £/mo
from 3.32 %
from 11.00 %
Agent Activity
Michael Anthony created the listing.
Nearby Schools
| Name | Type | Ofsted | Distance |
|---|---|---|---|
| Dundale Primary School And Nursery | Academy Converter | 0.28 KM | |
| D1 Orchard Family Centre | Children's Centre | 0.28 KM | |
| Tring School | Academy Converter | Good | 0.90 KM |
| Bishop Wood Church Of England Junior School, Tring | Voluntary Aided School | Good | 0.94 KM |
| Grove Road Primary School | Academy Converter | 1.05 KM |
Images
Nearby Streets
| Name | Average Price | Average Sqft | Distance |
|---|---|---|---|
| Adams Way | £ 390,000 | 0 | 0.00 KM |
| Thorn Tree Drive | £ 950,000 | 0 | 0.00 KM |
| Little Tring Road | £ 0 | 0 | 0.00 KM |
| Church Square | £ 495,000 | 0 | 0.00 KM |
| Christchurch Road | £ 1,150,000 | 0 | 0.00 KM |
Nearby Transport
| Name | NLC | TLC | Distance |
|---|---|---|---|
| Tring | 1393 | TRI | 4.31 KM |
| Cheddington | 1372 | CED | 6.17 KM |
Nearby Listings
| Address | Price | Type | Score | Distance |
|---|---|---|---|---|
| Grenadine Way, Tring | £ 650,000 | BUY | 7 / 10 | 0.00 KM |
| Elm Tree Walk, Tring | £ 575,000 | BUY | Unknown | 0.08 KM |
| Elm Tree Walk, Tring | £ 375,000 | BUY | 7 / 10 | 0.14 KM |
| Gwynne Close, Tring | £ 350,000 | BUY | 6 / 10 | 0.14 KM |
| Rosebery Way, Tring, Hertfordshire | £ 350,000 | BUY | 6 / 10 | 0.17 KM |
Nearby Properties
| Address | Price | Distance |
|---|---|---|
| 22 Grenadine Way | £ 350,000 | 0.01 KM |
| 33 Grenadine Way | £ 370,000 | 0.01 KM |
| 24 Grenadine Way | £ 195,000 | 0.01 KM |
| 29 Grenadine Way | £ 225,000 | 0.01 KM |
| 8 Grenadine Way | £ 137,500 | 0.01 KM |