SE
Brookwood Farm Drive, Knaphill, Woking, Surrey, GU21
By Seymours Estate Agents
£ 315,000
Reviews
3 out of 5 stars
Seymours Estate Agents says ..
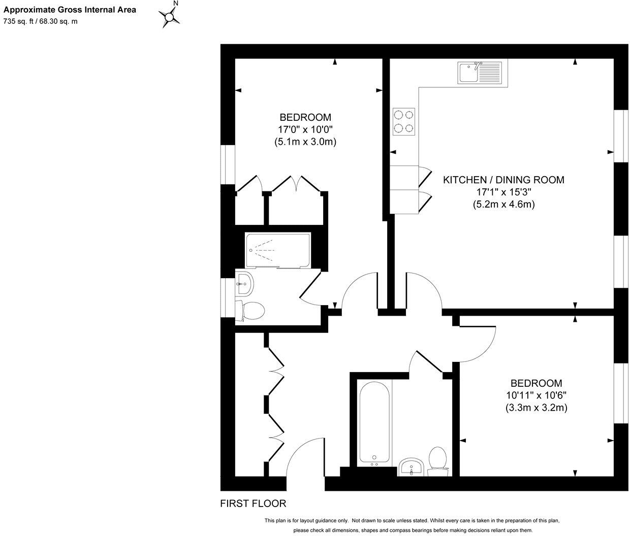
Presented in excellent condition, this modern first-floor apartment offers a comfortable and inviting living space with a thoughtfully designed layout. Ideally situated just a short stroll from Brookwood Mainline Station, it provides quick and direct access to London Waterloo—making it the ...
Property Oracle says ..
Therefore, we give this property 6 / 10. *Disclaimer: This is our option and does constitute a recommendation or financial advice. Do your own research. *
- Price
- 8
- Condition
- 9
- Location
- 7
- Land
- 1
- Bedrooms
- 2
- Bathrooms
- 2
- Sqft (est)
- 735.00
The heatmap indicates the level of crime in the area. The color of the heatmap indicates the crime severity and recency.
Metrics Year-on-Year
- Average area value
- 586,400.00 £Increased by 18.76 %
- Est sale value
- 349,860.00 £Increased by 6.01 %
- Average area rental value
- 2,150.00 £/moIncreased by 9.47 %
- Est letting value
- 735.00 £/moUnchanged by 0.00 %
- Est rental Yield
- 4.40 %Decreased by 7.76 %
- Crime Rate
- 8.00 %Unchanged by 0.00 %
from 493,776.00 £
from 330,015.00 £
from 1,964.00 £/mo
from 735.00 £/mo
from 4.77 %
from 8.00 %
Agent Activity
Seymours Estate Agents created the listing.
Nearby Schools
| Name | Type | Ofsted | Distance |
|---|---|---|---|
| The Knaphill Lower School | Academy Converter | 0.76 KM | |
| Brookwood Primary School | Academy Sponsor Led | Good | 0.83 KM |
| Brookwood & Pirbright Sure Start Children'S Centre | Children's Centre | 0.88 KM | |
| Knaphill School | Academy Converter | 1.04 KM | |
| Bisley Cofe Primary School | Voluntary Aided School | Good | 1.42 KM |
Images
Nearby Streets
| Name | Average Price | Average Sqft | Distance |
|---|---|---|---|
| Gloucester Close | £ 735,000 | 0 | 0.00 KM |
| Guernsey Way | £ 0 | 0 | 0.00 KM |
| Oak Tree Road | £ 0 | 0 | 0.00 KM |
| Stafford Lake | £ 0 | 0 | 0.00 KM |
| Trinity Road | £ 660,000 | 0 | 0.00 KM |
Nearby Transport
| Name | NLC | TLC | Distance |
|---|---|---|---|
| Brookwood | 5687 | BKO | 1.09 KM |
| Worplesdon | 5686 | WPL | 5.98 KM |
| Woking | 5685 | WOK | 8.24 KM |
| Wanborough | 5639 | WAN | 8.56 KM |
| Bagshot | 5681 | BAG | 8.59 KM |
Nearby Listings
| Address | Price | Type | Score | Distance |
|---|---|---|---|---|
| Brookwood Farm Drive, Knaphill, Woking, Surrey, GU21 | £ 255,000 | BUY | Unknown | 0.00 KM |
| Brookwood Farm Drive, Knaphill, Woking, Surrey, GU21 | £ 310,000 | BUY | 5 / 10 | 0.00 KM |
| Brookwood Farm Drive, Knaphill, Woking, Surrey, GU21 | £ 315,000 | BUY | 6 / 10 | 0.00 KM |
| Brookwood Farm Drive, Woking, GU21 | £ 540,000 | BUY | Unknown | 0.00 KM |
| Brookwood Farm Drive, Knaphill, Woking, Surrey, GU21 | £ 576,500 | BUY | 7 / 10 | 0.00 KM |
Nearby Properties
| Address | Price | Distance |
|---|---|---|
| 31 Brookwood Farm Drive | £ 695,000 | 0.01 KM |
| 27 Brookwood Farm Drive | £ 575,000 | 0.01 KM |
| 21 Brookwood Farm Drive | £ 720,000 | 0.01 KM |
| 9 Brookwood Farm Drive | £ 538,000 | 0.12 KM |
| 22 Coresbrook Way | £ 365,000 | 0.12 KM |