Java House, London City Island, London E14
By JOHNS&CO
£ 925,000
Reviews
2 out of 5 stars
JOHNS&CO says ..
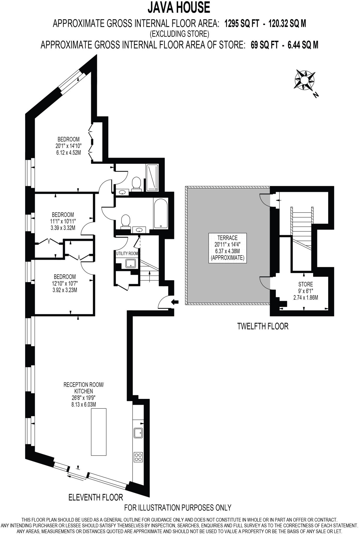
Unbeatable 180 degree views are on offer from this split level three bedroom penthouse apartment with secure underground parking in London City Island, Java House, E14.
Property Oracle says ..
This three-bedroom, two-bathroom penthouse apartment at Java House, London City Island, is presented as a modern and stylish property within a new development. The property benefits from expansive views and appears to be well-maintained based on the image provided. The apartment boasts a contemporary design, with an open-plan living area and kitchen. The images highlight a sleek, modern kitchen and bathrooms. The inclusion of what appears to be access to communal amenities such as a gym, pool and communal area are added plus points. However, the lack of information regarding private outdoor space, beyond the shared communal facilities, is a notable point to consider. The location on London City Island offers access to good public transport links with the additional benefit of proximity to Canary Wharf, a major business and commercial center. The overall impression is that of a modern, well-equipped apartment in a convenient location, though potential buyers will want to check the leasehold details, and understand the implications of living in a new development. Further investigation into the average price per sqft would offer a more accurate analysis of value for money and assist in determining whether it represents good value. The absence of plot size information prevents a more accurate evaluation of the property’s value in relation to similar properties in the area. Therefore, further information is required to support a fully considered opinion.
Therefore, we give this property 5 / 10. *Disclaimer: This is our option and does constitute a recommendation or financial advice. Do your own research. *
- Price
- 7
- Condition
- 8
- Location
- 7
- Land
- 1
- Bedrooms
- 3
- Bathrooms
- 2
- Sqft (est)
- 1,295.11
The heatmap indicates the level of crime in the area. The color of the heatmap indicates the crime severity and recency.
Metrics Year-on-Year
- Average area value
- 772,015.00 £Increased by 8.00 %
- Est sale value
- 445,517.84 £Decreased by 60.82 %
- Average area rental value
- 1,899.00 £/moDecreased by 56.45 %
- Est letting value
- 0.00 £/moDecreased by 100.00 %
- Est rental Yield
- 2.95 %Decreased by 59.70 %
- Crime Rate
- 4.00 %Unchanged by 0.00 %
Agent Activity
JOHNS&CO created the listing.
Nearby Schools
| Name | Type | Ofsted | Distance |
|---|---|---|---|
| Faraday School | Other Independent School | 0.52 KM | |
| St Luke'S Primary School | Voluntary Aided School | Good | 0.99 KM |
| Star Primary School | Community School | Good | 1.09 KM |
| Ravensbourne | Higher Education Institutions | Good | 1.11 KM |
| Aberfeldy Children'S Centre | Children's Centre Linked Site | 1.23 KM |
Images
Nearby Streets
| Name | Average Price | Average Sqft | Distance |
|---|---|---|---|
| Hope Street | £ 0 | 0 | 0.00 KM |
| Reubens Bridge | £ 575,000 | 0 | 0.00 KM |
| Lookout Lane | £ 480,000 | 0 | 0.00 KM |
| The Blue Bridge | £ 0 | 0 | 0.00 KM |
| Hercules Slip | £ 701,800 | 0 | 0.00 KM |
Nearby Transport
| Name | NLC | TLC | Distance |
|---|---|---|---|
| West Ham | 7474 | WEH | 1.90 KM |
| Maze Hill | 5149 | MZH | 3.21 KM |
| Westcombe Park | 5151 | WCB | 3.37 KM |
| Stratford | 6969 | SRA | 3.52 KM |
| Maryland | 6970 | MYL | 3.86 KM |
Nearby Listings
| Address | Price | Type | Score | Distance |
|---|---|---|---|---|
| Botanic Square, London, E14 | £ 600,000 | BUY | 6 / 10 | 0.00 KM |
| Java House, London City Island, London E14 | £ 925,000 | BUY | 5 / 10 | 0.00 KM |
| Java House, Botanic Square, London City Island, London, E14 | £ 625,000 | BUY | 6 / 10 | 0.00 KM |
| Amelia House, London City Island, London, E14 | £ 450,000 | BUY | 6 / 10 | 0.00 KM |
| Douglas Tower, 9 Good Luck Hope Walk, London | £ 400,000 | BUY | 7 / 10 | 0.01 KM |
Nearby Properties
| Address | Price | Distance |
|---|---|---|
| 7 Pilgrims Mews | £ 315,000 | 0.48 KM |
| 12 Pilgrims Mews | £ 655,000 | 0.48 KM |
| 8 Pilgrims Mews | £ 785,000 | 0.48 KM |
| 1 Pilgrims Mews | £ 259,995 | 0.48 KM |
| 5 Pilgrims Mews | £ 535,000 | 0.48 KM |