Meerbrook Road, Kidbrooke, London, SE3
By Foxtons
£ 600,000
Reviews
3 out of 5 stars
Foxtons says ..
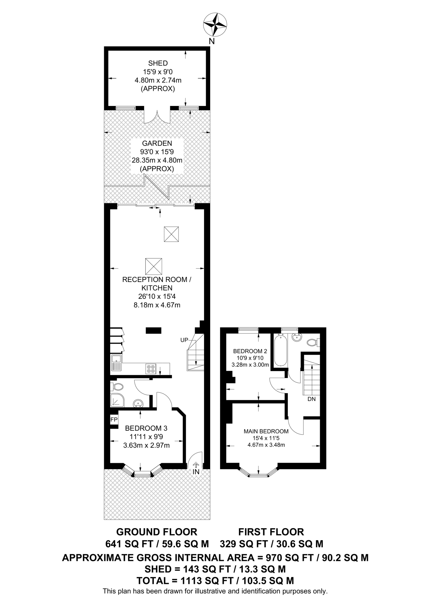
Situated on the peaceful Meerbrook Road, this charming 3 bedroom house benefits from a spacious interior including a sleek kitchen, bright reception room boasting skylights and a large private garden.
Property Oracle says ..
This three-bedroom house located on Meerbrook Road, Kidbrooke, London, SE3, is marketed by Foxtons. The property features a newly extended and renovated interior, encompassing a contemporary kitchen, a bright living space enhanced with skylights, and two bathrooms. The property has a relatively large garden, although maintenance is required. The property is situated near Kidbrooke station, providing convenient access to central London via Southeastern rail services. The area also benefits from good local schools. The list price of £600,000 appears to be in line with comparable properties in the area, although a definitive price-per-square-foot comparison cannot be made due to missing data for surrounding properties. Overall, the property presents a solid investment opportunity in a desirable location. It may appeal to families given the proximity to schools and the garden space, while its proximity to the railway will appeal to commuters. The modernised interiors provide immediate liveability, but potential buyers should factor in costs for future garden maintenance.
Therefore, we give this property 6 / 10. *Disclaimer: This is our option and does constitute a recommendation or financial advice. Do your own research. *
- Price
- 7
- Condition
- 7
- Location
- 7
- Land
- 6
- Bedrooms
- 3
- Bathrooms
- 2
- Sqft (est)
- 1,113.00
The heatmap indicates the level of crime in the area. The color of the heatmap indicates the crime severity and recency.
Metrics Year-on-Year
- Average area value
- 596,706.00 £Increased by 41.85 %
- Est sale value
- 732,354.00 £Increased by 23.45 %
- Average area rental value
- 2,446.00 £/moIncreased by 8.47 %
- Est letting value
- 2,226.00 £/moUnchanged by 0.00 %
- Est rental Yield
- 4.92 %Decreased by 23.48 %
- Crime Rate
- 7.00 %Unchanged by 0.00 %
Agent Activity
Foxtons created the listing.
Nearby Schools
| Name | Type | Ofsted | Distance |
|---|---|---|---|
| Storkway And Shooter'S Hill Children'S Centre | Children's Centre | 0.24 KM | |
| Newhaven Pupil Referral Unit | Pupil Referral Unit | Good | 0.45 KM |
| Ealdham Primary School | Community School | Good | 0.46 KM |
| Holy Family Catholic Primary School | Voluntary Aided School | Good | 0.52 KM |
| Wize Up | Other Independent Special School | Good | 0.84 KM |
Images
Nearby Streets
| Name | Average Price | Average Sqft | Distance |
|---|---|---|---|
| Meadowside | £ 0 | 0 | 0.00 KM |
| Kimbell Place | £ 300,000 | 0 | 0.00 KM |
| Banks Road | £ 0 | 0 | 0.00 KM |
| Henley Cross | £ 0 | 0 | 0.00 KM |
| Cambert Way | £ 0 | 0 | 0.00 KM |
Nearby Transport
| Name | NLC | TLC | Distance |
|---|---|---|---|
| Kidbrooke | 5108 | KDB | 0.81 KM |
| Eltham | 5103 | ELW | 2.06 KM |
| Lee | 5110 | LEE | 2.69 KM |
| Charlton | 5144 | CTN | 2.85 KM |
| Mottingham | 5118 | MTG | 2.90 KM |
Nearby Listings
| Address | Price | Type | Score | Distance |
|---|---|---|---|---|
| Meerbrook Road, Kidbrooke, London, SE3 | £ 600,000 | BUY | 6 / 10 | 0.00 KM |
| Birdbrook Road, London, SE3 | £ 425,000 | BUY | 6 / 10 | 0.06 KM |
| Ridgebrook Road, Eltham, SE3 | £ 425,000 | BUY | 7 / 10 | 0.08 KM |
| Birdbrook Road, London | £ 425,000 | BUY | Unknown | 0.12 KM |
| Tilbrook Road, Blackheath | £ 575,000 | BUY | 7 / 10 | 0.12 KM |
Nearby Properties
| Address | Price | Distance |
|---|---|---|
| 26 Meerbrook Road | £ 165,000 | 0.02 KM |
| 16 Meerbrook Road | £ 164,995 | 0.02 KM |
| 18 Meerbrook Road | £ 274,000 | 0.02 KM |
| 20 Meerbrook Road | £ 300,000 | 0.02 KM |
| 24 Meerbrook Road | £ 322,500 | 0.02 KM |