FO
Old Church Lane, Kingsbury, London, NW9
By Foxtons
£ 450,000
Reviews
3 out of 5 stars
Foxtons says ..
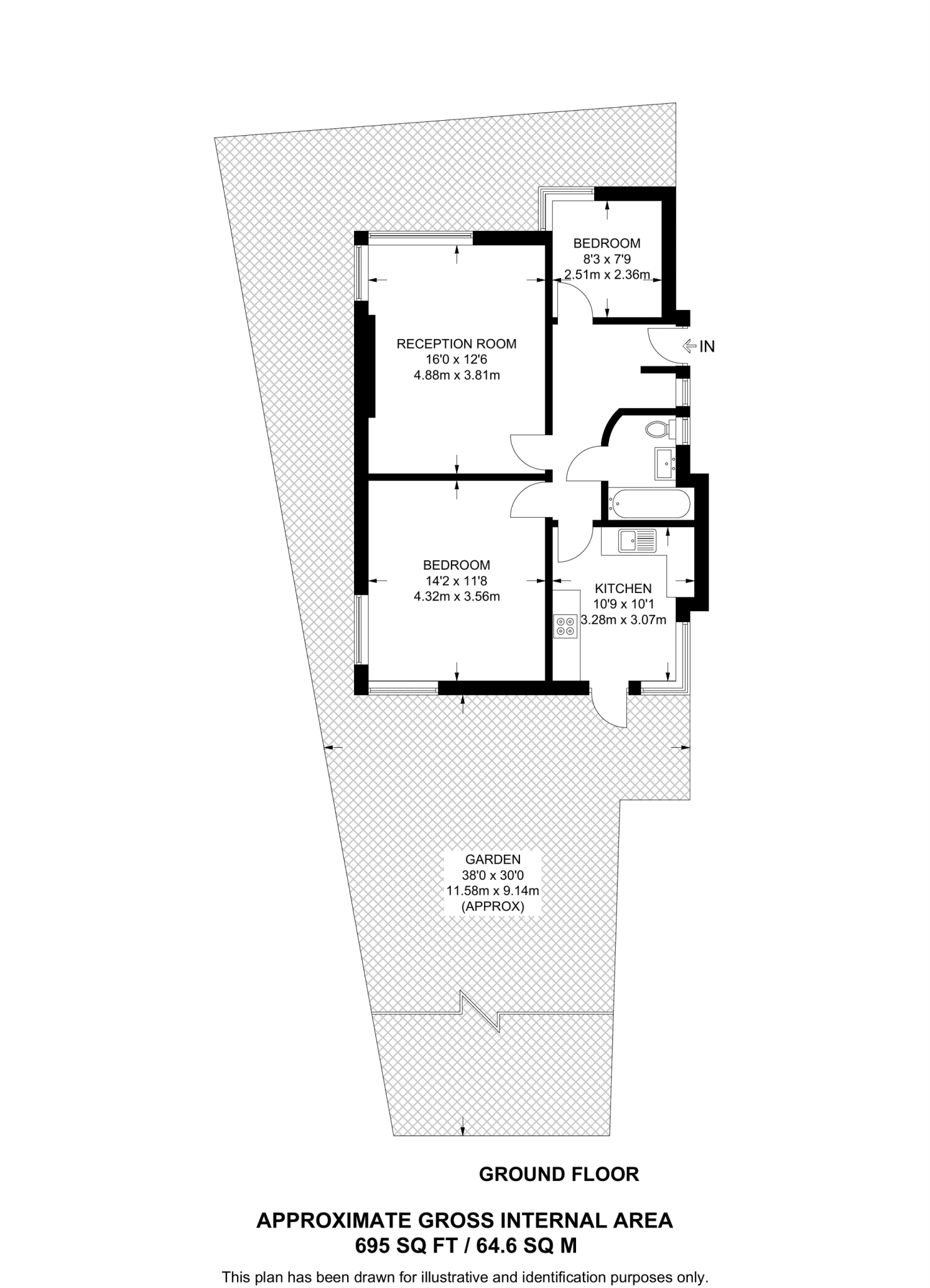
Positioned on a secluded no through road. This fabulous 2 bedroom ground floor maisonette features stylish interiors, modern décor, superb wraparound garden an allocated parking space.
Property Oracle says ..
Therefore, we give this property 7 / 10. *Disclaimer: This is our option and does constitute a recommendation or financial advice. Do your own research. *
- Price
- 6
- Condition
- 8
- Location
- 7
- Land
- 7
- Bedrooms
- 2
- Bathrooms
- 1
- Sqft (est)
- 695.00
- Lot (est)
- 1,140.00
The heatmap indicates the level of crime in the area. The color of the heatmap indicates the crime severity and recency.
Metrics Year-on-Year
- Average area value
- 366,658.00 £Decreased by 31.14 %
- Est sale value
- 355,840.00 £Decreased by 8.90 %
- Average area rental value
- 3,017.00 £/moIncreased by 83.18 %
- Est letting value
- 2,780.00 £/moIncreased by 300.00 %
- Est rental Yield
- 9.87 %Increased by 166.04 %
- Crime Rate
- 3.00 %Unchanged by 0.00 %
from 532,445.00 £
from 390,590.00 £
from 1,647.00 £/mo
from 695.00 £/mo
from 3.71 %
from 3.00 %
Agent Activity
Foxtons created the listing.
Nearby Schools
| Name | Type | Ofsted | Distance |
|---|---|---|---|
| St Nicholas School | Other Independent School | 0.60 KM | |
| St Margaret Clitherow Rc Primary School | Academy Converter | 0.79 KM | |
| Wykeham Children'S Centre | Children's Centre | 0.80 KM | |
| Wykeham Primary School | Community School | Outstanding | 0.80 KM |
| Woodfield School | Academy Special Converter | Outstanding | 0.98 KM |
Images
Nearby Streets
| Name | Average Price | Average Sqft | Distance |
|---|---|---|---|
| Neasden Lane North | £ 0 | 0 | 0.00 KM |
| Daisy Close | £ 0 | 0 | 0.00 KM |
| Ken Way | £ 365,000 | 0 | 0.00 KM |
| Arran Court | £ 0 | 0 | 0.00 KM |
| Janson Close | £ 0 | 0 | 0.00 KM |
Nearby Transport
| Name | NLC | TLC | Distance |
|---|---|---|---|
| Hendon | 1522 | HEN | 2.89 KM |
| Stonebridge Park | 1454 | SBP | 2.98 KM |
| Wembley Stadium | 1509 | WCX | 3.04 KM |
| Harlesden | 1521 | HDN | 3.38 KM |
| Willesden Junction | 1457 | WIJ | 4.20 KM |
Nearby Listings
| Address | Price | Type | Score | Distance |
|---|---|---|---|---|
| Old Church Lane, Kingsbury, London, NW9 | £ 450,000 | BUY | 7 / 10 | 0.00 KM |
| Old St Andrews Mansions, Old Church Lane, London, NW9 | £ 395,000 | BUY | 6 / 10 | 0.05 KM |
| Birchen Grove, Wembley, NW9 8RT | £ 725,000 | BUY | Unknown | 0.08 KM |
| Old Church Lane, London, NW9 | £ 425,000 | BUY | 6 / 10 | 0.10 KM |
| Old St. Andrews Mansions, Old Church Lane, Kingsbury, London, NW9 | £ 385,000 | BUY | Unknown | 0.10 KM |
Nearby Properties
| Address | Price | Distance |
|---|---|---|
| 48 Old Church Lane | £ 245,000 | 0.12 KM |
| 44 Old Church Lane | £ 499,950 | 0.12 KM |
| 27 Birchen Grove | £ 340,000 | 0.13 KM |
| 15 Birchen Grove | £ 348,000 | 0.13 KM |
| 13 Birchen Grove | £ 675,000 | 0.13 KM |