eXp UK says ..
A Rare Opportunity – Sought-After Crescent Location!
Property Oracle says ..
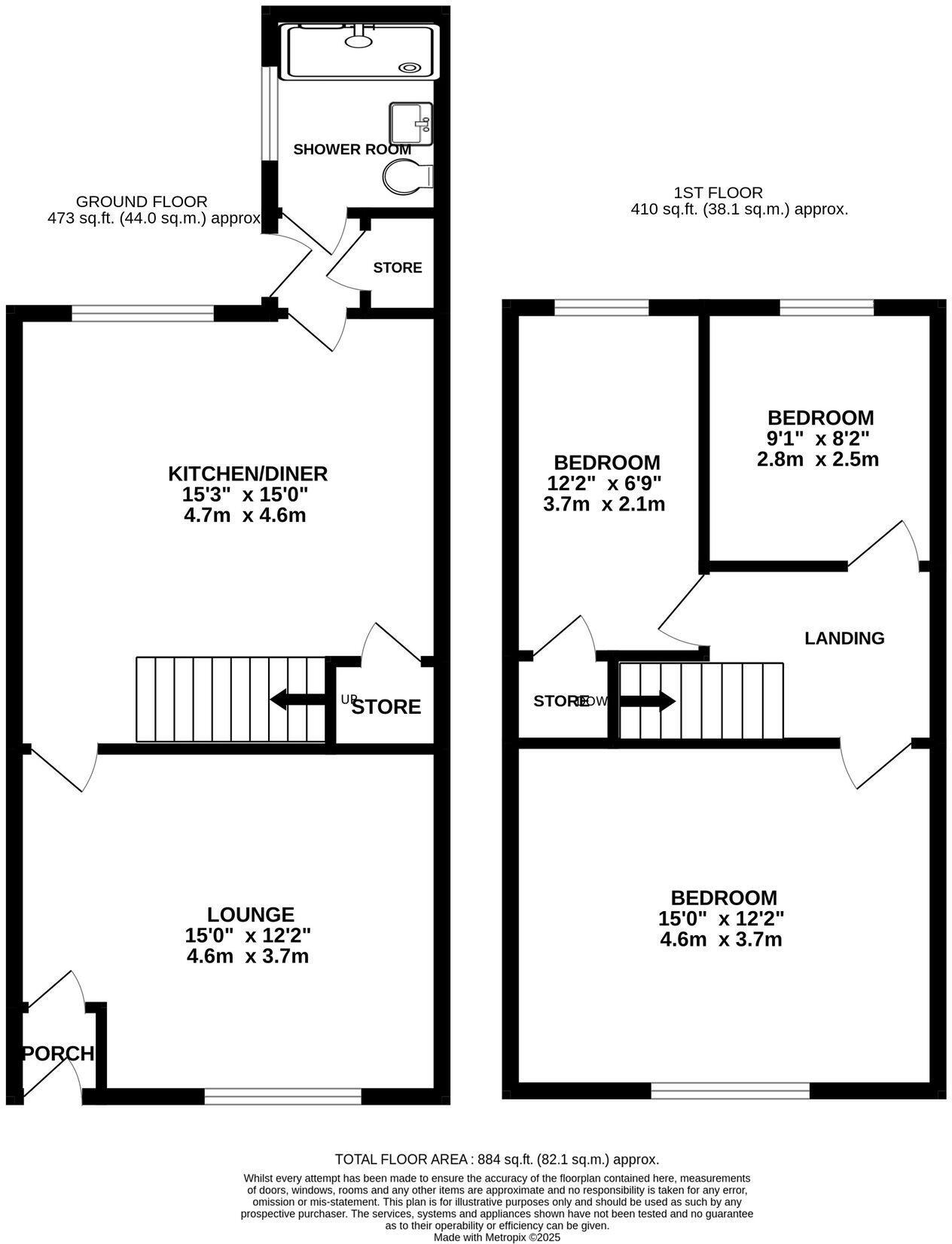
This three-bedroom terraced house in Heywood, Greater Manchester is listed at £170,000. The property boasts a modern kitchen and a recently updated bathroom, suggesting recent renovations. The living room features a fireplace and the garden is relatively small but well-maintained with artificial turf. While the property is presented well, the average house price in the area is significantly higher at £472,681, and the average price per sqft is £472.00, compared to this property’s price per sqft of approximately £192.00. Nearby comparable properties on Abbey Crescent range from £60,000 to £90,000, indicating a potential overvaluation. However, the location benefits from proximity to schools and transport links. The property is in good condition and has some modern features. The lack of plot size is a drawback.
Therefore, we give this property 5 / 10. *Disclaimer: This is our option and does constitute a recommendation or financial advice. Do your own research. *
- Price
- 4
- Condition
- 8
- Location
- 7
- Land
- 3
- Bedrooms
- 3
- Bathrooms
- 1
- Sqft (est)
- 883.72
The heatmap indicates the level of crime in the area. The color of the heatmap indicates the crime severity and recency.
Metrics Year-on-Year
- Average area value
- 160,000.00 £Decreased by 35.02 %
- Est sale value
- 240,371.84 £Increased by 18.26 %
- Average area rental value
- 960.00 £/moIncreased by 4.92 %
- Est letting value
- 883.72 £/mo
- Est rental Yield
- 7.20 %Increased by 61.43 %
- Crime Rate
- 0.00 %
Agent Activity
eXp UK created the listing.
Nearby Schools
| Name | Type | Ofsted | Distance |
|---|---|---|---|
| Derby Street Children'S Centre | Children's Centre | 0.97 KM | |
| St Michael'S Church Of England Primary School, Bamford | Voluntary Aided School | Outstanding | 1.10 KM |
| Woodland Children'S Centre | Children's Centre | 1.31 KM | |
| St Luke'S Church Of England Primary School | Voluntary Controlled School | Good | 1.35 KM |
| Woodland Community Primary School | Community School | Good | 1.44 KM |
Images
Nearby Streets
| Name | Average Price | Average Sqft | Distance |
|---|---|---|---|
| Tintern Place | £ 0 | 0 | 0.00 KM |
| Moss Bank Grove | £ 128,000 | 0 | 0.00 KM |
| Clough Lane | £ 0 | 0 | 0.00 KM |
| Furness Avenue | £ 0 | 0 | 0.00 KM |
| Melrose Avenue | £ 0 | 0 | 0.00 KM |
Nearby Transport
| Name | NLC | TLC | Distance |
|---|---|---|---|
| Castleton (Manchester) | 2919 | CAS | 5.57 KM |
| Rochdale | 2924 | RCD | 8.24 KM |
| Mills Hill (Manchester) | 2920 | MIH | 8.37 KM |
Nearby Listings
| Address | Price | Type | Score | Distance |
|---|---|---|---|---|
| Abbey Crescent, Heywood | £ 170,000 | BUY | 5 / 10 | 0.00 KM |
| 27 Thorn Close, Heywood OL10 4TQ | £ 230,000 | BUY | Unknown | 0.31 KM |
| Peel Lane, Heywood | £ 95,000 | BUY | 5 / 10 | 0.31 KM |
| Peel Lane, Heywood, Greater Manchester, OL10 | £ 130,000 | BUY | 5 / 10 | 0.33 KM |
| Victoria Terrace, Heywood | £ 425,000 | BUY | Unknown | 0.38 KM |
Nearby Properties
| Address | Price | Distance |
|---|---|---|
| 92 Abbey Crescent | £ 78,000 | 0.00 KM |
| 75 Abbey Crescent | £ 79,500 | 0.00 KM |
| 91 Abbey Crescent | £ 88,000 | 0.00 KM |
| 69 Abbey Crescent | £ 80,000 | 0.00 KM |
| 72 Abbey Crescent | £ 82,000 | 0.00 KM |