Isleworth Road, St.Thomas, EX4
By Fraser & Wheeler
£ 200,000
Reviews
3 out of 5 stars
Fraser & Wheeler says ..
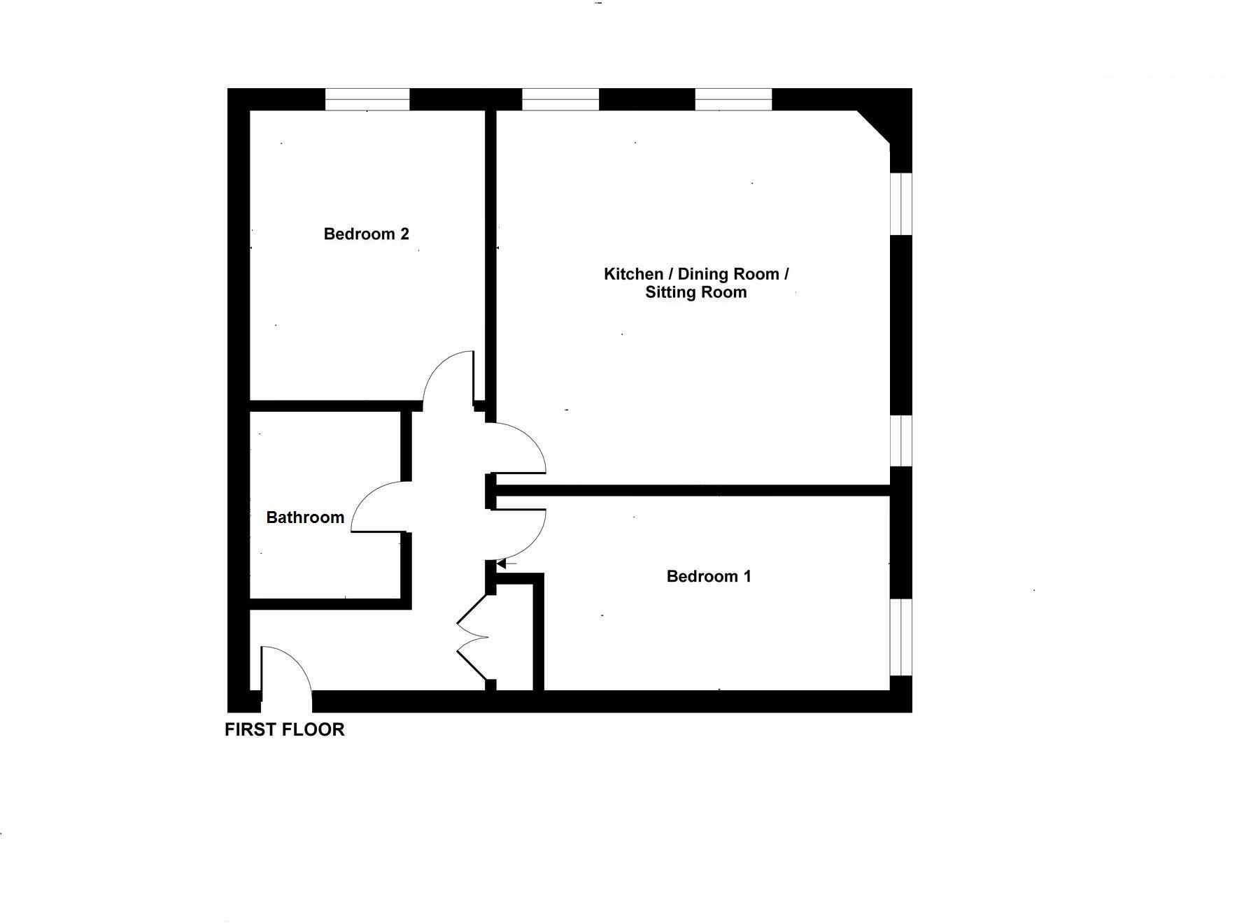
A beautifully presented first floor two bedroom apartment located within an attractive gated development with well maintained communal gardens, far reaching views over parts of Exeter and allocated parking space. EPC C, Council Tax Band C, Leasehold.
Property Oracle says ..
Therefore, we give this property 7 / 10. *Disclaimer: This is our option and does constitute a recommendation or financial advice. Do your own research. *
- Price
- 7
- Condition
- 8
- Location
- 7
- Land
- 7
- Bedrooms
- 2
- Bathrooms
- 1
- Sqft (est)
- 537.00
The heatmap indicates the level of crime in the area. The color of the heatmap indicates the crime severity and recency.
Metrics Year-on-Year
- Average area value
- 237,000.00 £Decreased by 16.10 %
- Est sale value
- 191,172.00 £Increased by 5.01 %
- Average area rental value
- 1,204.00 £/moIncreased by 6.36 %
- Est letting value
- 537.00 £/moUnchanged by 0.00 %
- Est rental Yield
- 6.10 %Increased by 26.82 %
- Crime Rate
- 8.00 %Unchanged by 0.00 %
from 282,477.00 £
from 182,043.00 £
from 1,132.00 £/mo
from 537.00 £/mo
from 4.81 %
from 8.00 %
Agent Activity
Fraser & Wheeler created the listing.
Nearby Schools
| Name | Type | Ofsted | Distance |
|---|---|---|---|
| Torlands Academy | Academy Alternative Provision Converter | 0.57 KM | |
| Redhills Primary School | Academy Converter | Good | 0.59 KM |
| Bowhill Primary School | Academy Converter | Good | 0.78 KM |
| Barley Lane School | Foundation Special School | Good | 0.80 KM |
| West Exe Children'S Centre | Children's Centre | 1.01 KM |
Images
Nearby Streets
| Name | Average Price | Average Sqft | Distance |
|---|---|---|---|
| Isleworth Road | £ 0 | 0 | 0.00 KM |
| Wiltshire Close | £ 595,000 | 0 | 0.00 KM |
| Ashleigh Close | £ 0 | 0 | 0.00 KM |
| Somerset Avenue | £ 400,000 | 0 | 0.00 KM |
| Chester Close | £ 0 | 0 | 0.00 KM |
Nearby Transport
| Name | NLC | TLC | Distance |
|---|---|---|---|
| Exeter St David'S | 3410 | EXD | 1.71 KM |
| Exeter St Thomas | 3414 | EXT | 1.79 KM |
| Exeter Central | 5755 | EXC | 2.53 KM |
| St James Park (Exeter) | 5751 | SJP | 3.88 KM |
| Polsloe Bridge | 3422 | POL | 6.01 KM |
Nearby Listings
| Address | Price | Type | Score | Distance |
|---|---|---|---|---|
| Isleworth Road, St.Thomas, EX4 | £ 300,000 | BUY | 6 / 10 | 0.00 KM |
| Isleworth Road, St Thomas, EX4 | £ 325,000 | BUY | 7 / 10 | 0.00 KM |
| Isleworth Road, St.Thomas, EX4 | £ 200,000 | BUY | 7 / 10 | 0.00 KM |
| Prescot Road, Exeter | £ 150,000 | BUY | 6 / 10 | 0.10 KM |
| Prescot Road, St Thomas, EX4 | £ 345,000 | BUY | 6 / 10 | 0.10 KM |
Nearby Properties
| Address | Price | Distance |
|---|---|---|
| 90 Isleworth Road | £ 195,250 | 0.00 KM |
| 82a Isleworth Road | £ 239,000 | 0.00 KM |
| 65 Isleworth Road | £ 335,000 | 0.00 KM |
| 55 Isleworth Road | £ 187,000 | 0.00 KM |
| 108 Isleworth Road | £ 249,950 | 0.00 KM |