GetAnOffer says ..
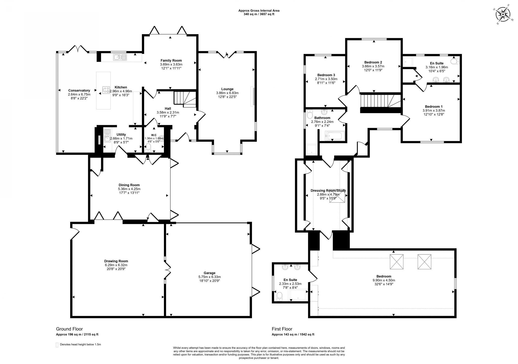
Welcome to Townsend Road, where luxury meets practicality in this architecturally designed house finished to a high standard. Offering over 3300 sq ft of living space, this modern marvel is a testament to contemporary living with its expansive layout and high-end fittings. Upon entering, y...
Property Oracle says ..
Therefore, we give this property 7 / 10. *Disclaimer: This is our option and does constitute a recommendation or financial advice. Do your own research. *
- Price
- 6
- Condition
- 8
- Location
- 8
- Land
- 7
- Bedrooms
- 4
- Bathrooms
- 3
The heatmap indicates the level of crime in the area. The color of the heatmap indicates the crime severity and recency.
Metrics Year-on-Year
- Average area value
- 340,241.00 £Decreased by 8.44 %
- Average area rental value
- 1,141.00 £/moIncreased by 2.98 %
- Est rental Yield
- 4.02 %Increased by 12.29 %
- Crime Rate
- 10.00 %Unchanged by 0.00 %
from 371,615.00 £
from 1,108.00 £/mo
from 3.58 %
from 10.00 %
Agent Activity
GetAnOffer created the listing.
Nearby Schools
| Name | Type | Ofsted | Distance |
|---|---|---|---|
| Daven Primary School | Academy Converter | 0.12 KM | |
| Congleton Children'S Centre | Children's Centre | 0.22 KM | |
| Cheshire Alternative Provision School | Other Independent School | Requires improvement | 0.43 KM |
| Esland Congleton School | Other Independent Special School | 1.15 KM | |
| Saint Mary'S Catholic Primary School | Academy Converter | Outstanding | 1.42 KM |
Images
Nearby Streets
| Name | Average Price | Average Sqft | Distance |
|---|---|---|---|
| New Street | £ 149,950 | 0 | 0.00 KM |
| Moor Street Roundabout | £ 0 | 0 | 0.00 KM |
| Siskin Way | £ 390,000 | 0 | 0.00 KM |
| Park Road | £ 297,500 | 0 | 0.00 KM |
| The Meadows | £ 0 | 0 | 0.00 KM |
Nearby Transport
| Name | NLC | TLC | Distance |
|---|---|---|---|
| Congleton | 1227 | CNG | 1.43 KM |
| Kidsgrove | 1229 | KDG | 9.44 KM |
Nearby Listings
| Address | Price | Type | Score | Distance |
|---|---|---|---|---|
| Townsend Road, Congleton, CW12 | £ 775,000 | BUY | 7 / 10 | 0.00 KM |
| Townsend Road, Congleton | £ 750,000 | BUY | 7 / 10 | 0.03 KM |
| Elvington Close, Congleton | £ 112,950 | BUY | 6 / 10 | 0.07 KM |
| Elvington Close, Congleton | £ 110,000 | BUY | 6 / 10 | 0.07 KM |
| Townsend Road, Congleton | £ 255,000 | BUY | Unknown | 0.09 KM |
Nearby Properties
| Address | Price | Distance |
|---|---|---|
| 3e Townsend Road | £ 133,500 | 0.01 KM |
| 3f Townsend Road | £ 225,000 | 0.01 KM |
| 3d Townsend Road | £ 175,000 | 0.01 KM |
| 4 Townsend Road | £ 151,000 | 0.01 KM |
| 15 Townsend Road | £ 230,000 | 0.01 KM |