CH
Alma Avenue, Hornchurch, RM12
By Chalk Street Estates
£ 600,000
Reviews
4 out of 5 stars
Chalk Street Estates says ..
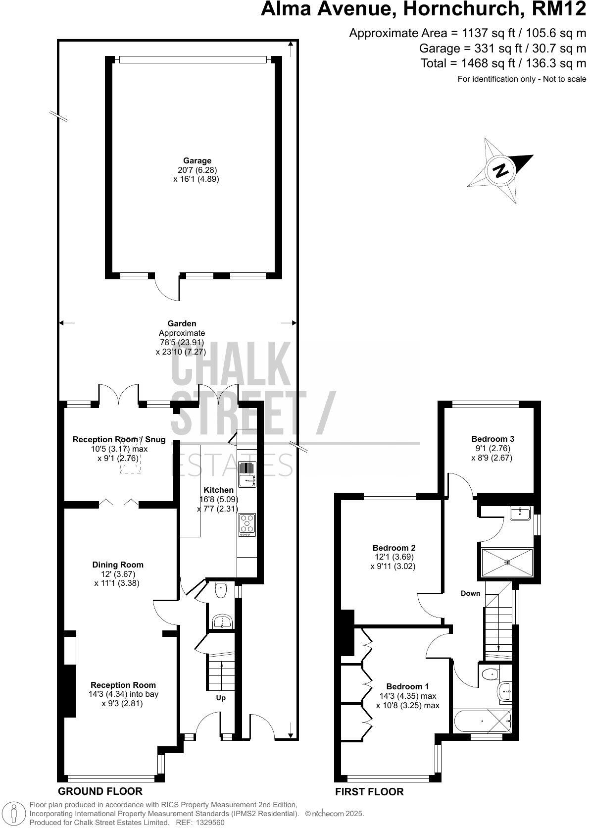
*Video Tour Attached* Ideally situated just 0.3 miles from Hornchurch Station, walking distance to Hornchurch Town Centre and within close proximity to several reputable schools, parks and country walking trails, is this three bedroom semi-detached house. Amassing over 1,100 sq. ft., th...
Property Oracle says ..
Therefore, we give this property 8 / 10. *Disclaimer: This is our option and does constitute a recommendation or financial advice. Do your own research. *
- Price
- 9
- Condition
- 7
- Location
- 8
- Land
- 8
- Bedrooms
- 3
- Bathrooms
- 2
- Sqft (est)
- 1,468.00
- Lot (est)
- 1,857.00
The heatmap indicates the level of crime in the area. The color of the heatmap indicates the crime severity and recency.
Metrics Year-on-Year
- Average area value
- 517,500.00 £Increased by 9.86 %
- Est sale value
- 845,568.00 £Increased by 12.06 %
- Average area rental value
- 2,254.00 £/moIncreased by 5.67 %
- Est letting value
- 2,936.00 £/moUnchanged by 0.00 %
- Est rental Yield
- 5.23 %Decreased by 3.68 %
- Crime Rate
- 2.00 %Unchanged by 0.00 %
from 471,047.00 £
from 754,552.00 £
from 2,133.00 £/mo
from 2,936.00 £/mo
from 5.43 %
from 2.00 %
Agent Activity
Chalk Street Estates created the listing.
Nearby Schools
| Name | Type | Ofsted | Distance |
|---|---|---|---|
| Hacton Primary School | Academy Converter | Outstanding | 0.42 KM |
| Suttons Primary School | Community School | Good | 0.56 KM |
| Sanders Draper | Academy Sponsor Led | 0.91 KM | |
| Olive Ap Academy - Havering | Academy Alternative Provision Sponsor Led | Requires improvement | 1.16 KM |
| Langtons Junior Academy | Academy Sponsor Led | Good | 1.30 KM |
Images
Nearby Streets
| Name | Average Price | Average Sqft | Distance |
|---|---|---|---|
| Gliders Drive | £ 0 | 0 | 0.00 KM |
| Ravenscourt Drive | £ 612,500 | 0 | 0.00 KM |
| Finlay Gardens | £ 0 | 0 | 0.00 KM |
| Spitfire Approach | £ 385,000 | 0 | 0.00 KM |
| Aerodrome Close | £ 0 | 0 | 0.00 KM |
Nearby Transport
| Name | NLC | TLC | Distance |
|---|---|---|---|
| Emerson Park | 7473 | EMP | 1.94 KM |
| Upminster | 7464 | UPM | 3.21 KM |
| Gidea Park | 6877 | GDP | 3.88 KM |
| Harold Wood | 6879 | HRO | 4.74 KM |
| Romford | 6886 | RMF | 5.11 KM |
Nearby Listings
| Address | Price | Type | Score | Distance |
|---|---|---|---|---|
| Alma Avenue, Hornchurch, RM12 | £ 600,000 | BUY | 8 / 10 | 0.00 KM |
| Alma Avenue, Hornchurch, Essex, RM12 6SR | £ 600,000 | BUY | 6 / 10 | 0.04 KM |
| Alma Avenue, Hornchurch, RM12 | £ 500,000 | BUY | 7 / 10 | 0.04 KM |
| Alma Avenue, Hornchurch, RM12 | £ 650,000 | BUY | 6 / 10 | 0.05 KM |
| Alma Avenue, Hornchurch, RM12 | £ 650,000 | BUY | 7 / 10 | 0.07 KM |
Nearby Properties
| Address | Price | Distance |
|---|---|---|
| 58 Alma Avenue | £ 445,000 | 0.06 KM |
| 50 Alma Avenue | £ 116,500 | 0.06 KM |
| 42 Alma Avenue | £ 290,000 | 0.06 KM |
| 30 Alma Avenue | £ 440,100 | 0.06 KM |
| 52 Alma Avenue | £ 600,000 | 0.06 KM |