Fraser & Co says ..
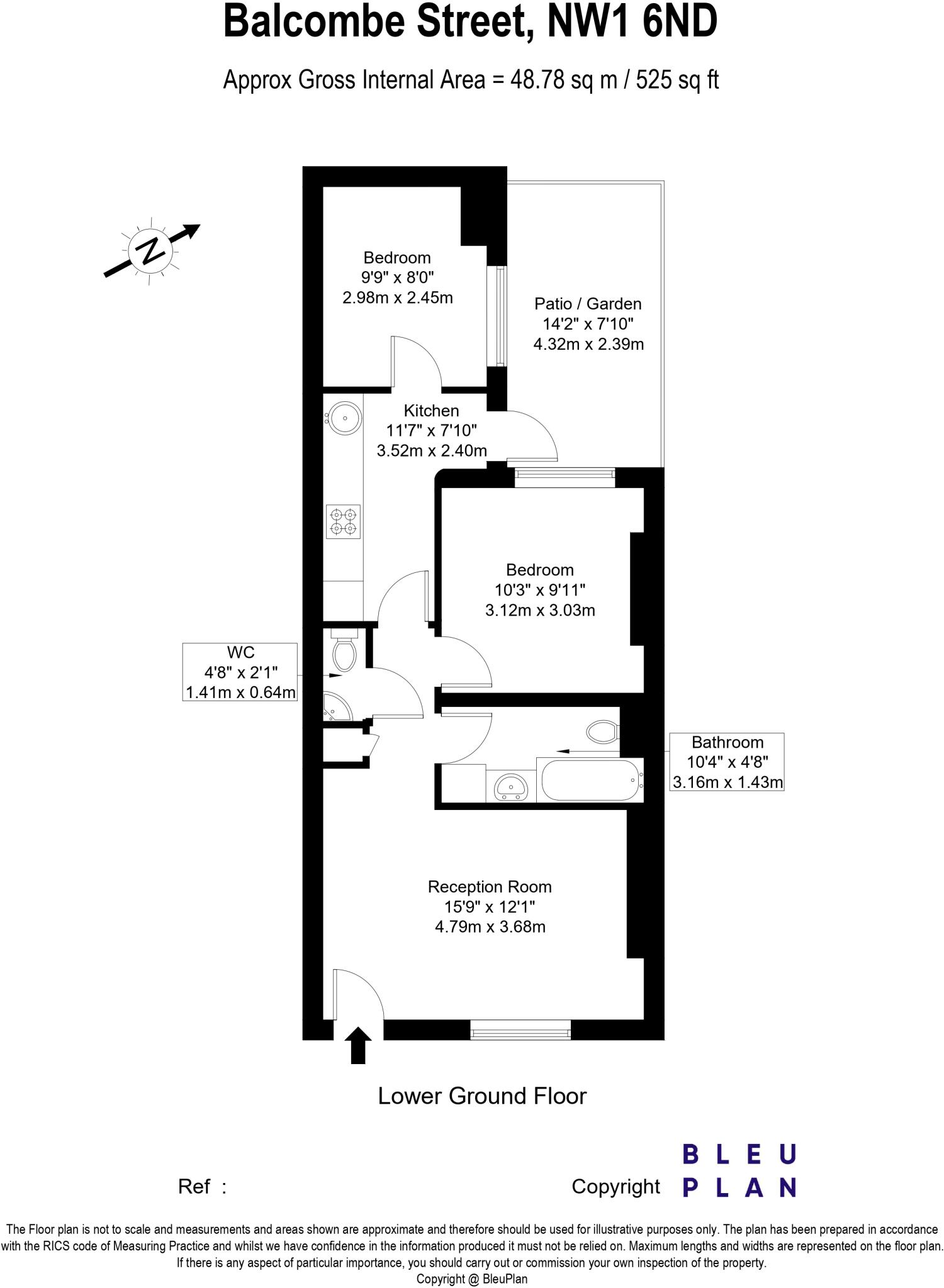
Spacious & Stylish Two-Bedroom Apartment with Private Patio in Prime Marylebone Location This beautifully presented, generously proportioned two-bedroom apartment offers bright and spacious living throughout, thanks to large windows and well-designed interiors. The property boasts ...
Property Oracle says ..
Therefore, we give this property 8 / 10. *Disclaimer: This is our option and does constitute a recommendation or financial advice. Do your own research. *
- Price
- 9
- Condition
- 8
- Location
- 9
- Land
- 6
- Bedrooms
- 2
- Bathrooms
- 2
- Sqft (est)
- 630.33
The heatmap indicates the level of crime in the area. The color of the heatmap indicates the crime severity and recency.
Metrics Year-on-Year
- Average area value
- 2,357,000.00 £Increased by 84.11 %
- Est sale value
- 1,275,157.59 £Increased by 44.50 %
- Average area rental value
- 2,420.00 £/moIncreased by 1.34 %
- Est letting value
- 1,260.66 £/moUnchanged by 0.00 %
- Est rental Yield
- 1.23 %Decreased by 45.09 %
- Crime Rate
- 9.00 %Unchanged by 0.00 %
from 1,280,198.00 £
from 882,462.00 £
from 2,388.00 £/mo
from 1,260.66 £/mo
from 2.24 %
from 9.00 %
Agent Activity
Fraser & Co created the listing.
Nearby Schools
| Name | Type | Ofsted | Distance |
|---|---|---|---|
| Francis Holland School | Other Independent School | 0.25 KM | |
| Marylebone Children'S Centre Information Point | Children's Centre Linked Site | 0.30 KM | |
| St Mary'S Bryanston Square Cofe School | Voluntary Aided School | Good | 0.35 KM |
| London Business School | Higher Education Institutions | 0.36 KM | |
| St Edward'S Catholic Primary School | Voluntary Aided School | Requires improvement | 0.38 KM |
Images
Nearby Streets
| Name | Average Price | Average Sqft | Distance |
|---|---|---|---|
| Bell Street | £ 592,500 | 0 | 0.00 KM |
| Cosway Street | £ 0 | 0 | 0.00 KM |
| Bell Street | £ 465,000 | 0 | 0.00 KM |
| Harrow Street | £ 0 | 0 | 0.00 KM |
| Whitehaven Street | £ 425,000 | 0 | 0.00 KM |
Nearby Transport
| Name | NLC | TLC | Distance |
|---|---|---|---|
| Marylebone | 1475 | MYB | 0.13 KM |
| Paddington | 3087 | PAD | 1.75 KM |
| South Hampstead | 1451 | SOH | 2.71 KM |
| Kentish Town West | 1449 | KTW | 3.09 KM |
| Euston | 1444 | EUS | 3.17 KM |
Nearby Listings
| Address | Price | Type | Score | Distance |
|---|---|---|---|---|
| Balcombe Street, London, NW1 | £ 685,000 | BUY | 8 / 10 | 0.00 KM |
| Balcombe Street, London | £ 685,000 | BUY | Unknown | 0.00 KM |
| Balcombe Street, Marylebone, London | £ 525,000 | BUY | 7 / 10 | 0.00 KM |
| Balcombe Street, Marylebone, London | £ 450,000 | BUY | 7 / 10 | 0.00 KM |
| Balcombe Street, London | £ 495,000 | BUY | Unknown | 0.01 KM |
Nearby Properties
| Address | Price | Distance |
|---|---|---|
| 28 Balcombe Street | £ 277,500 | 0.01 KM |
| 26b Balcombe Street | £ 522,500 | 0.01 KM |
| 19b Balcombe Street | £ 616,500 | 0.03 KM |
| 19a Balcombe Street | £ 410,000 | 0.03 KM |
| 31a Balcombe Street | £ 549,950 | 0.04 KM |