Wheatcroft & Lloyd says ..
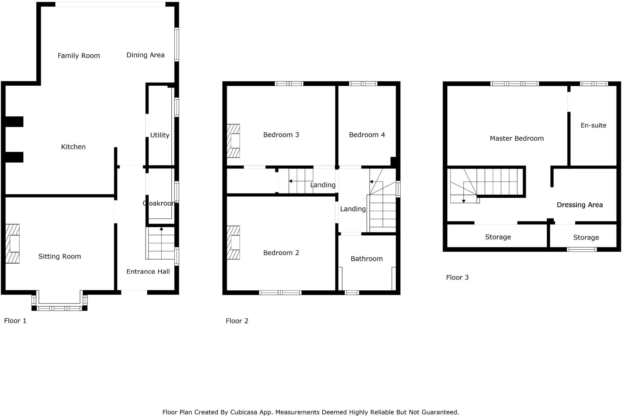
WOW never judge a book by it's cover! What appears from the front to be a traditional semi detached house is far from that. This stunning property is absolutely immaculate inside having been extended to the rear to create a modern open plan kitchen/diner/living space with bi-fold doors.
Property Oracle says ..
Therefore, we give this property 7 / 10. *Disclaimer: This is our option and does constitute a recommendation or financial advice. Do your own research. *
- Price
- 7
- Condition
- 7
- Location
- 7
- Land
- 8
- Bedrooms
- 4
- Bathrooms
- 2
- Sqft (est)
- 1,647.00
The heatmap indicates the level of crime in the area. The color of the heatmap indicates the crime severity and recency.
Metrics Year-on-Year
- Average area value
- 251,044.00 £Decreased by 14.29 %
- Est sale value
- 396,927.00 £Increased by 33.89 %
- Average area rental value
- 1,013.00 £/moIncreased by 4.54 %
- Est letting value
- 0.00 £/mo
- Est rental Yield
- 4.84 %Increased by 21.91 %
- Crime Rate
- 39.00 %Unchanged by 0.00 %
from 292,911.00 £
from 296,460.00 £
from 969.00 £/mo
from 0.00 £/mo
from 3.97 %
from 39.00 %
Agent Activity
Wheatcroft & Lloyd created the listing.
Nearby Schools
| Name | Type | Ofsted | Distance |
|---|---|---|---|
| Shavington Academy | Academy Converter | Good | 1.05 KM |
| Shavington Primary School | Academy Converter | Good | 1.25 KM |
| The Berkeley Academy | Academy Converter | Good | 1.84 KM |
| Wybunbury Delves Cofe Primary School | Academy Converter | 2.09 KM | |
| The Brooks Children'S Centre | Children's Centre | 2.79 KM |
Images
Nearby Streets
| Name | Average Price | Average Sqft | Distance |
|---|---|---|---|
| Enfield Close | £ 200,000 | 0 | 0.00 KM |
| Delves Close | £ 0 | 0 | 0.00 KM |
| Buckthorn Place | £ 0 | 0 | 0.00 KM |
| Highclere Way | £ 0 | 0 | 0.00 KM |
| Nursery Close | £ 230,000 | 0 | 0.00 KM |
Nearby Transport
| Name | NLC | TLC | Distance |
|---|---|---|---|
| Crewe | 1243 | CRE | 4.29 KM |
| Nantwich | 1247 | NAN | 7.02 KM |
Nearby Listings
| Address | Price | Type | Score | Distance |
|---|---|---|---|---|
| Newcastle Road, Crewe | £ 325,000 | BUY | 7 / 10 | 0.00 KM |
| Newcastle Road, Shavington, CW2 | £ 349,995 | BUY | Unknown | 0.02 KM |
| Shavington Park, Newcastle Road, Shavington, Crewe, CW2 5EA | £ 92,500 | BUY | 6 / 10 | 0.02 KM |
| Newcastle Road, Crewe, CW2 | £ 170,000 | BUY | 6 / 10 | 0.03 KM |
| Huntersfield, Shavington, Crewe, Cheshire, CW2 | £ 685,000 | BUY | Unknown | 0.04 KM |
Nearby Properties
| Address | Price | Distance |
|---|---|---|
| 363 Newcastle Road | £ 340,000 | 0.02 KM |
| 328 Newcastle Road | £ 210,000 | 0.02 KM |
| 323 Newcastle Road | £ 127,000 | 0.02 KM |
| 353 Newcastle Road | £ 152,950 | 0.02 KM |
| 363a Newcastle Road | £ 365,000 | 0.02 KM |