Ben Rose says ..
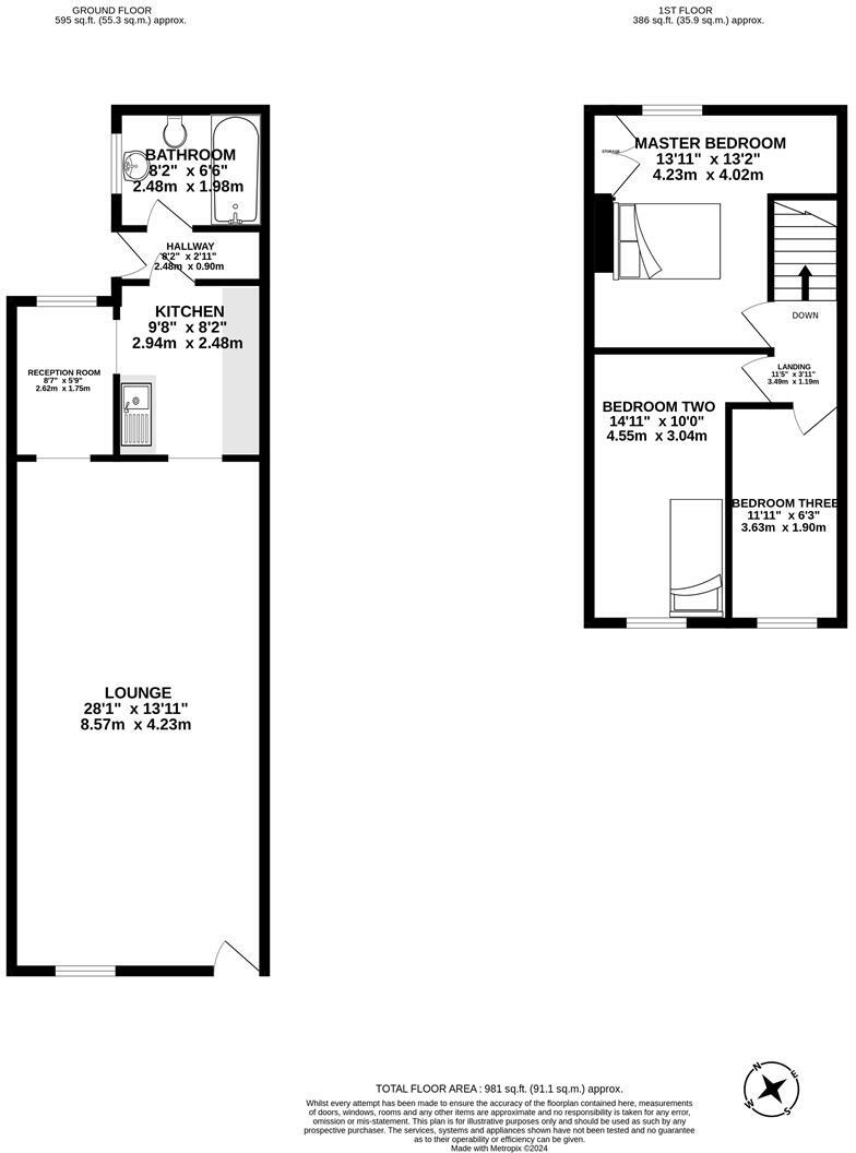
Ben Rose Estate Agents are pleased to present to market this three-bedroom, terraced property located in the heart of Chorley, Lancashire. Offering an excellent opportunity for development, this busines/home is ideal for those looking to put their own stamp on a property. The home is conveniently...
Property Oracle says ..
This is a three-bedroom terraced property located on Pall Mall in Chorley. The property is listed for sale at £100,000. The property is 980.59 sqft. The property is located close to local schools and transportation links. However, the property requires significant renovation and modernisation. The low price reflects the condition of the property.
Therefore, we give this property 4 / 10. *Disclaimer: This is our option and does constitute a recommendation or financial advice. Do your own research. *
- Price
- 8
- Condition
- 3
- Location
- 6
- Land
- 1
- Bedrooms
- 3
- Bathrooms
- 1
- Sqft (est)
- 980.59
The heatmap indicates the level of crime in the area. The color of the heatmap indicates the crime severity and recency.
Metrics Year-on-Year
- Average area value
- 271,777.00 £Increased by 15.25 %
- Est sale value
- 221,613.34 £Increased by 15.90 %
- Average area rental value
- 761.00 £/moDecreased by 4.04 %
- Est letting value
- 0.00 £/mo
- Est rental Yield
- 3.36 %Decreased by 16.83 %
- Crime Rate
- 10.00 %Unchanged by 0.00 %
Agent Activity
Ben Rose created the listing.
Nearby Schools
| Name | Type | Ofsted | Distance |
|---|---|---|---|
| Duke Street Primary School | Community School | Good | 0.32 KM |
| Duke Street Nursery School | Local Authority Nursery School | Outstanding | 0.41 KM |
| Duke Street Children'S Centre | Children's Centre | 0.41 KM | |
| Mayfield School | Community Special School | Good | 0.58 KM |
| Shaftesbury High School | Pupil Referral Unit | Good | 0.68 KM |
Images
Nearby Streets
| Name | Average Price | Average Sqft | Distance |
|---|---|---|---|
| Fleet Street | £ 0 | 0 | 0.00 KM |
| Oxford Street | £ 109,950 | 0 | 0.00 KM |
| St Georges Street | £ 0 | 0 | 0.00 KM |
| Chapel Street | £ 0 | 0 | 0.00 KM |
| Northumberland Street | £ 0 | 0 | 0.00 KM |
Nearby Transport
| Name | NLC | TLC | Distance |
|---|---|---|---|
| Chorley | 2745 | CRL | 0.80 KM |
| Buckshaw Parkway | 7501 | BSV | 4.12 KM |
| Euxton Balshaw Lane | 2080 | EBA | 4.51 KM |
| Adlington (Lancashire) | 2641 | ADL | 5.16 KM |
| Leyland | 2710 | LEY | 8.18 KM |
Nearby Listings
| Address | Price | Type | Score | Distance |
|---|---|---|---|---|
| Pall Mall, Chorley | £ 100,000 | BUY | 4 / 10 | 0.00 KM |
| Pall Mall, Chorley, PR7 | £ 100,000 | BUY | 6 / 10 | 0.07 KM |
| Gillibrand Walks, Chorley | £ 139,995 | BUY | 6 / 10 | 0.08 KM |
| Gillibrand Walks, Chorley | £ 260,000 | BUY | 6 / 10 | 0.11 KM |
| Gillibrand Walks, Chorley, Lancashire, PR7 | £ 100,000 | BUY | Unknown | 0.11 KM |
Nearby Properties
| Address | Price | Distance |
|---|---|---|
| 48 Pall Mall | £ 51,000 | 0.05 KM |
| 1 Carrington Road | £ 89,950 | 0.08 KM |
| 11 Carrington Road | £ 31,000 | 0.08 KM |
| 3 Carrington Road | £ 84,000 | 0.08 KM |
| 9 Carrington Road | £ 70,000 | 0.08 KM |