Foxtons says ..
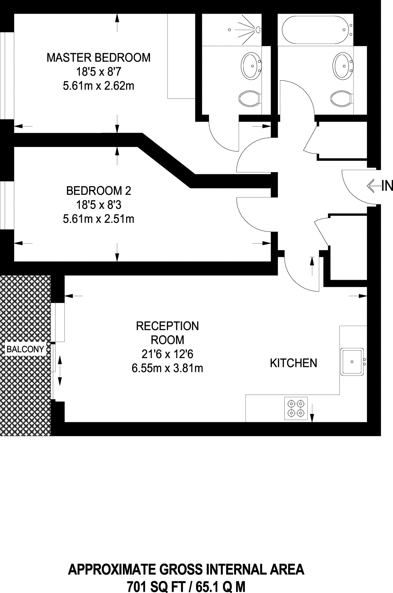
Enjoying a quiet location with easy access to Canary Wharf and The City, this fourth floor two bedroom apartment also boasts two bathrooms and a private balcony.
Property Oracle says ..
This property is a modern two-bedroom, two-bathroom flat located in Bow, London. The flat is in excellent condition and appears to be well-maintained, with a modern kitchen and bathrooms. The property benefits from a balcony offering views of the surrounding area. The location is convenient, with several schools and transportation options nearby. However, the plot size is 0 sqft, meaning there is no garden.
Therefore, we give this property 6 / 10. *Disclaimer: This is our option and does constitute a recommendation or financial advice. Do your own research. *
- Price
- 7
- Condition
- 9
- Location
- 8
- Land
- 1
- Bedrooms
- 2
- Bathrooms
- 2
- Sqft (est)
- 701.00
The heatmap indicates the level of crime in the area. The color of the heatmap indicates the crime severity and recency.
Metrics Year-on-Year
- Average area value
- 491,357.00 £Increased by 22.72 %
- Est sale value
- 597,953.00 £Increased by 37.14 %
- Average area rental value
- 2,124.00 £/moDecreased by 3.37 %
- Est letting value
- 2,103.00 £/moUnchanged by 0.00 %
- Est rental Yield
- 5.19 %Decreased by 21.24 %
- Crime Rate
- 11.00 %Unchanged by 0.00 %
Agent Activity
Foxtons created the listing.
Nearby Schools
| Name | Type | Ofsted | Distance |
|---|---|---|---|
| The Clara Grant Primary School | Academy Converter | 0.24 KM | |
| St Saviour'S Church Of England Primary School | Voluntary Aided School | Outstanding | 0.45 KM |
| Lincoln Children'S Centre | Children's Centre Linked Site | 0.53 KM | |
| Manorfield Primary School | Community School | Outstanding | 0.58 KM |
| Childrens House Nursery School | Local Authority Nursery School | Outstanding | 0.66 KM |
Images
Nearby Streets
| Name | Average Price | Average Sqft | Distance |
|---|---|---|---|
| Treadwell Walk | £ 0 | 0 | 0.00 KM |
| Bow Enterprise Park | £ 0 | 0 | 0.00 KM |
| Bow Exchange | £ 487,727 | 0 | 0.00 KM |
| St Andrews Way | £ 0 | 0 | 0.00 KM |
| Limehouse Cut | £ 0 | 0 | 0.00 KM |
Nearby Transport
| Name | NLC | TLC | Distance |
|---|---|---|---|
| Limehouse | 7491 | LHS | 2.55 KM |
| Hackney Wick | 6978 | HKW | 2.67 KM |
| West Ham | 7474 | WEH | 2.76 KM |
| Stratford | 6969 | SRA | 2.90 KM |
| Stratford International | 7222 | SFA | 2.91 KM |
Nearby Listings
| Address | Price | Type | Score | Distance |
|---|---|---|---|---|
| Violet Road, Bow, London, E3 | £ 425,000 | BUY | 6 / 10 | 0.00 KM |
| The Cubix Apartments, Bow | £ 420,000 | BUY | 5 / 10 | 0.03 KM |
| Violet Road, London | £ 500,000 | BUY | 7 / 10 | 0.04 KM |
| Violet Road, london E3 3XE | £ 285,000 | BUY | 6 / 10 | 0.04 KM |
| Violet Road, Bow, E3 | £ 400,000 | BUY | 6 / 10 | 0.04 KM |
Nearby Properties
| Address | Price | Distance |
|---|---|---|
| 23 Glaucus Street | £ 228,500 | 0.05 KM |
| 5 Glaucus Street | £ 48,000 | 0.05 KM |
| 13 Glaucus Street | £ 130,000 | 0.05 KM |
| 1 Glaucus Street | £ 285,000 | 0.05 KM |
| 14 Brock Place | £ 71,000 | 0.06 KM |