KN
Barnstaple Close, Wigston, Leicester
By Knightsbridge Estate Agents & Valuers
£ 280,000
Reviews
2 out of 5 stars
Knightsbridge Estate Agents & Valuers says ..
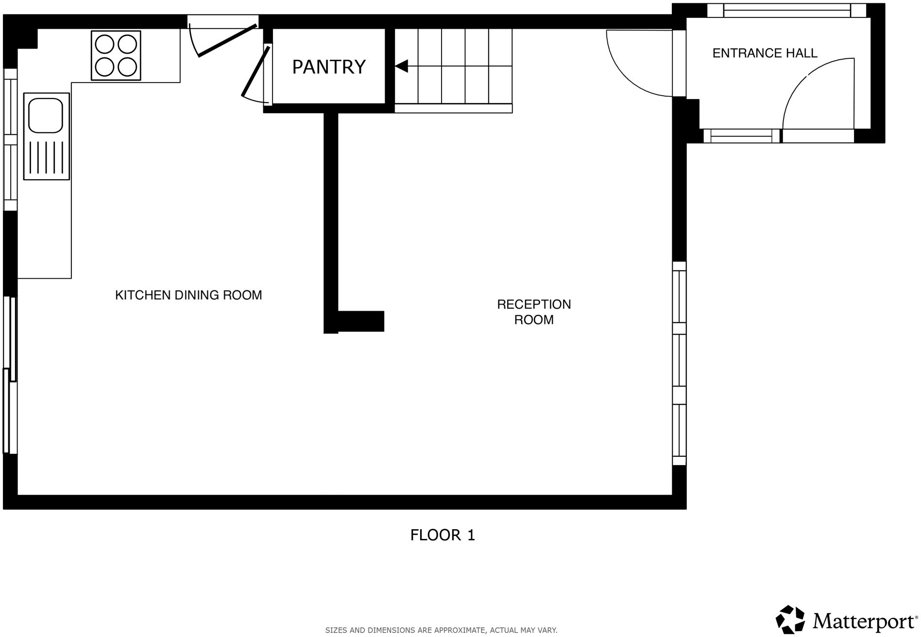
CHAIN FREE semi-detached home on Little Hill, Wigston. Features a re-fitted kitchen diner, re-plastered walls, three bedrooms, a bathroom, low-maintenance gardens, off-road parking and a GARAGE.
Property Oracle says ..
Therefore, we give this property 4 / 10. *Disclaimer: This is our option and does constitute a recommendation or financial advice. Do your own research. *
- Price
- 3
- Condition
- 3
- Location
- 7
- Land
- 5
- Bedrooms
- 3
- Bathrooms
- 1
- Sqft (est)
- 435.00
The heatmap indicates the level of crime in the area. The color of the heatmap indicates the crime severity and recency.
Metrics Year-on-Year
- Average area value
- 300,781.00 £Increased by 8.72 %
- Est sale value
- 147,900.00 £Increased by 11.48 %
- Average area rental value
- 913.00 £/moDecreased by 11.70 %
- Est letting value
- 435.00 £/moUnchanged by 0.00 %
- Est rental Yield
- 3.64 %Decreased by 18.93 %
- Crime Rate
- 3.00 %Unchanged by 0.00 %
from 276,652.00 £
from 132,675.00 £
from 1,034.00 £/mo
from 435.00 £/mo
from 4.49 %
from 3.00 %
Agent Activity
Knightsbridge Estate Agents & Valuers created the listing.
Nearby Schools
| Name | Type | Ofsted | Distance |
|---|---|---|---|
| Thythorn Field Community Primary School | Community School | Good | 0.46 KM |
| Wigston Menphys Nursery School | Local Authority Nursery School | Good | 0.96 KM |
| Little Hill Primary | Academy Converter | 1.07 KM | |
| Wigston Magna Sure Start Children'S Centre | Children's Centre | 1.27 KM | |
| All Saints Church Of England Primary School | Academy Converter | 1.31 KM |
Images
Nearby Streets
| Name | Average Price | Average Sqft | Distance |
|---|---|---|---|
| Hillside Avenue | £ 315,000 | 0 | 0.00 KM |
| Welford Road | £ 342,500 | 0 | 0.00 KM |
| Barton Close | £ 0 | 0 | 0.00 KM |
| Black Swan Road | £ 86,250 | 0 | 0.00 KM |
| Cedar Avenue | £ 0 | 0 | 0.00 KM |
Nearby Transport
| Name | NLC | TLC | Distance |
|---|---|---|---|
| South Wigston | 1949 | SWS | 3.14 KM |
| Leicester | 1947 | LEI | 6.76 KM |
Nearby Listings
| Address | Price | Type | Score | Distance |
|---|---|---|---|---|
| Barnstaple Close, Wigston, Leicester | £ 280,000 | BUY | 4 / 10 | 0.00 KM |
| Barnstaple Close, Wigston | £ 375,000 | BUY | 7 / 10 | 0.04 KM |
| Barnstaple Close, Wigston, LE18 | £ 249,999 | BUY | 6 / 10 | 0.04 KM |
| Barnstaple Close, Wigston | £ 375,000 | BUY | 7 / 10 | 0.04 KM |
| Purbeck Close, Wigston | £ 355,000 | BUY | 6 / 10 | 0.17 KM |
Nearby Properties
| Address | Price | Distance |
|---|---|---|
| 20 Barnstaple Close | £ 101,000 | 0.04 KM |
| 2 Barnstaple Close | £ 122,000 | 0.04 KM |
| 10 Barnstaple Close | £ 67,500 | 0.04 KM |
| 33 Barnstaple Close | £ 234,000 | 0.04 KM |
| 41 Barnstaple Close | £ 139,000 | 0.04 KM |