College Street, Camborne, TR14
By Cornish Bricks
£ 250,000
Reviews
3 out of 5 stars
Cornish Bricks says ..
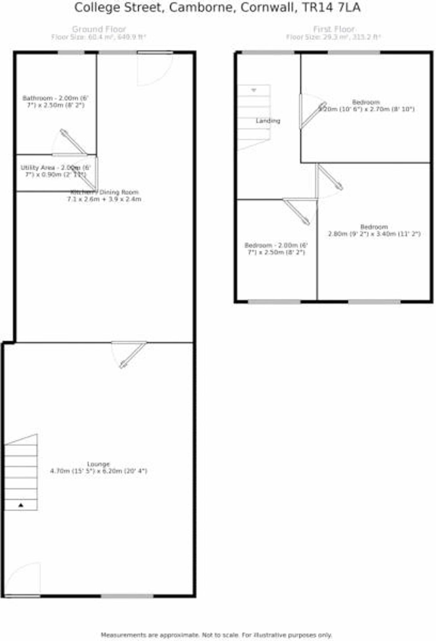
A fantastic EXTENDED, Cornish granite, mid terrace family home with PARKING & GARAGE which is DECEPTIVELY SPACIOUS.
Property Oracle says ..
College Street property in Camborne offers a convenient location near schools and transport links. The property is in good condition with recent renovations, and includes a modest-sized garden. While the list price seems reasonable considering the renovations and desirable location, it is lower than the area average, likely due to the smaller size.
Therefore, we give this property 7 / 10. *Disclaimer: This is our option and does constitute a recommendation or financial advice. Do your own research. *
- Price
- 7
- Condition
- 8
- Location
- 7
- Land
- 6
- Bedrooms
- 3
- Bathrooms
- 1
- Sqft (est)
- 704.18
- Lot (est)
- 650.14
The heatmap indicates the level of crime in the area. The color of the heatmap indicates the crime severity and recency.
Metrics Year-on-Year
- Average area value
- 328,750.00 £Increased by 17.44 %
- Est sale value
- 243,646.28 £Increased by 23.57 %
- Average area rental value
- 1,000.00 £/moIncreased by 34.23 %
- Est letting value
- 704.18 £/mo
- Est rental Yield
- 3.65 %Increased by 14.42 %
- Crime Rate
- 23.00 %Unchanged by 0.00 %
Agent Activity
Cornish Bricks created the listing.
Nearby Schools
| Name | Type | Ofsted | Distance |
|---|---|---|---|
| Weeth Community Primary School | Academy Converter | Good | 0.31 KM |
| Camborne Nursery School | Local Authority Nursery School | Outstanding | 0.35 KM |
| St Meriadoc Cofe Infant Academy | Academy Converter | Good | 0.47 KM |
| St Meriadoc Cofe Junior Academy | Academy Converter | Good | 0.49 KM |
| Camborne Science And International Academy | Academy Converter | Good | 0.59 KM |
Images
Nearby Streets
| Name | Average Price | Average Sqft | Distance |
|---|---|---|---|
| St Martin's Crescent | £ 190,000 | 0 | 0.00 KM |
| Coronation Avenue | £ 0 | 0 | 0.00 KM |
| Mitchell Road | £ 0 | 0 | 0.00 KM |
| Rectory Road | £ 220,000 | 0 | 0.00 KM |
| Primrose Close | £ 342,500 | 0 | 0.00 KM |
Nearby Transport
| Name | NLC | TLC | Distance |
|---|---|---|---|
| Camborne | 3504 | CBN | 1.18 KM |
| Redruth | 3530 | RED | 9.18 KM |
Nearby Listings
| Address | Price | Type | Score | Distance |
|---|---|---|---|---|
| College Street, Camborne, TR14 | £ 250,000 | BUY | 7 / 10 | 0.00 KM |
| St Martins cresent, Camborne, Camborne | £ 200,000 | BUY | 6 / 10 | 0.13 KM |
| The Glebe, Camborne, Camborne | £ 125,000 | BUY | Unknown | 0.15 KM |
| Weeth Lane, Camborne, Cornwall, TR14 | £ 300,000 | BUY | 6 / 10 | 0.15 KM |
| College Street, Camborne - Chain free sale, ideal first time buyer | £ 200,000 | BUY | 5 / 10 | 0.16 KM |
Nearby Properties
| Address | Price | Distance |
|---|---|---|
| 108 College Street | £ 137,500 | 0.06 KM |
| 104 College Street | £ 97,000 | 0.06 KM |
| 112 College Street | £ 64,950 | 0.06 KM |
| 100 College Street | £ 167,500 | 0.06 KM |
| 130 College Street | £ 150,000 | 0.06 KM |