Church Road, Buckley, Flintshire, CH7
By Oakfield Property
£ 95,000
Reviews
2 out of 5 stars
Oakfield Property says ..
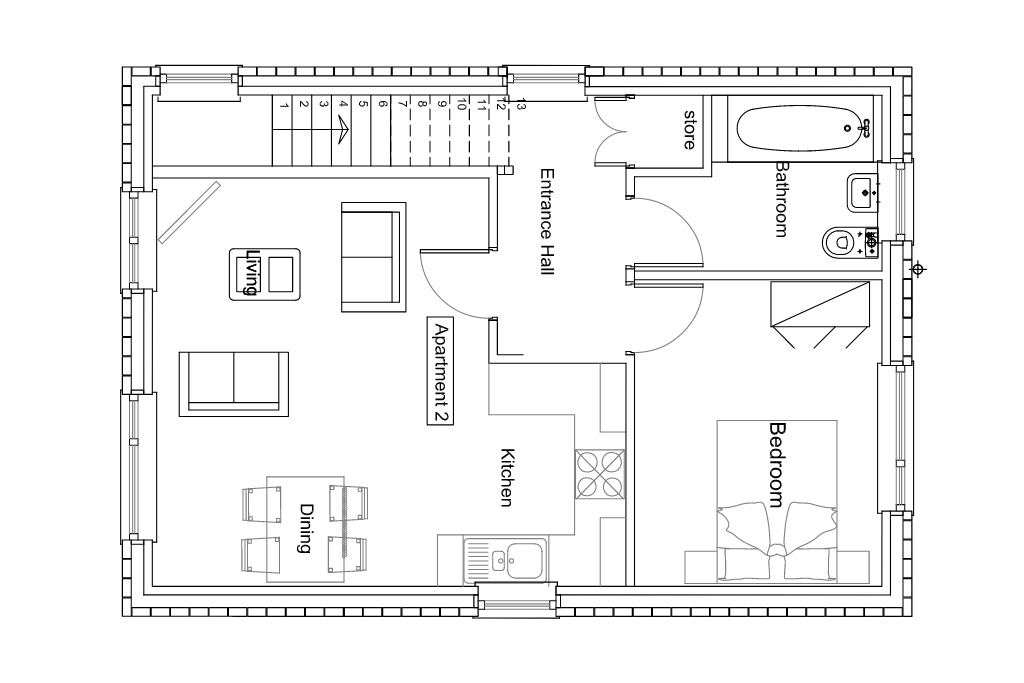
Charming building plot with approved planning for 2 x 1 bedroom apartments in sought-after Church Road, Buckley location. Don't miss this opportunity, call us for more details!
Property Oracle says ..
This property listing is for a building plot on Church Road, Buckley, Flintshire. The plans indicate the construction of two 1-bedroom apartments is proposed. The location is convenient, with relative proximity to Buckley town centre and amenities, schools, and transport links (Buckley train station being 1.59 km away). The plot size appears significant enough to comfortably accommodate the planned development as per the site plan. However, the absence of specifics like square footage for the planned apartments and the total building cost prevents a complete assessment of the development viability. The current price of £95,000 seems reasonably priced compared to other properties in the vicinity, although it is significantly below the average price of other properties in Buckley. It’s important to consider that the stated price is for the land, not a finished property; construction costs and other development-related expenses will need to be added to the overall cost. A thorough market analysis considering build costs, and sales estimates once complete, is necessary to determine the true financial feasibility of the project. The architectural plans offer a solid foundation for the proposed development; however, potential buyers should proceed with caution, seeking professional advice from contractors and financial specialists to accurately assess all costs, profit margins, and risks associated with the project. Without additional information, this property could be suitable for an investor seeking a development project within Buckley, however caution must be taken.
Therefore, we give this property 5 / 10. *Disclaimer: This is our option and does constitute a recommendation or financial advice. Do your own research. *
- Price
- 6
- Condition
- 4
- Location
- 7
- Land
- 6
- Bedrooms
- 2
- Bathrooms
- 1
The heatmap indicates the level of crime in the area. The color of the heatmap indicates the crime severity and recency.
Metrics Year-on-Year
- Average area value
- 227,500.00 £Decreased by 10.08 %
- Average area rental value
- 1,101.00 £/moIncreased by 16.88 %
- Est rental Yield
- 5.81 %Increased by 29.98 %
- Crime Rate
- 8.00 %Unchanged by 0.00 %
Agent Activity
Oakfield Property created the listing.
Nearby Schools
| Name | Type | Ofsted | Distance |
|---|---|---|---|
| Mountain Lane C.P. School | Welsh Establishment | 0.50 KM | |
| Westwood Community Primary School | Welsh Establishment | 1.48 KM | |
| Elfed High School | Welsh Establishment | 1.58 KM | |
| Drury C.P. School | Welsh Establishment | 1.79 KM | |
| Buckley Southdown C.P. | Welsh Establishment | 2.29 KM |
Images
Nearby Streets
| Name | Average Price | Average Sqft | Distance |
|---|---|---|---|
| Colliers Way | £ 270,000 | 0 | 0.00 KM |
| Clos Brith | £ 0 | 0 | 0.00 KM |
| Clos Allt y Nant | £ 277,500 | 0 | 0.00 KM |
| Brunswick Road | £ 145,000 | 0 | 0.00 KM |
| Rydal Drive | £ 260,000 | 0 | 0.00 KM |
Nearby Transport
| Name | NLC | TLC | Distance |
|---|---|---|---|
| Buckley | 2422 | BCK | 1.59 KM |
| Penyffordd | 2433 | PNF | 3.23 KM |
| Hawarden | 2428 | HWD | 4.53 KM |
| Shotton | 2546 | SHT | 5.98 KM |
| Hope (Flintshire) | 2432 | HPE | 6.70 KM |
Nearby Listings
| Address | Price | Type | Score | Distance |
|---|---|---|---|---|
| Church Road, Buckley, Flintshire, CH7 | £ 95,000 | BUY | 5 / 10 | 0.00 KM |
| Church Road, Buckley, Flintshire, CH7 | £ 280,000 | BUY | Unknown | 0.04 KM |
| Church Road, Buckley | £ 285,000 | BUY | 6 / 10 | 0.04 KM |
| Butterley Drive, Buckley, CH7 | £ 350,000 | BUY | 7 / 10 | 0.07 KM |
| Brunswick Road, Buckley, CH7 | £ 150,000 | BUY | 6 / 10 | 0.13 KM |
Nearby Properties
| Address | Price | Distance |
|---|---|---|
| 4 Miners Way | £ 207,000 | 0.05 KM |
| 1 Church Road | £ 140,000 | 0.11 KM |
| 7 Church Road | £ 89,000 | 0.11 KM |
| 3 Church Road | £ 88,000 | 0.11 KM |
| 15 Hanson Drive | £ 150,000 | 0.11 KM |