Mount Pleasant, Whittle-Le-Woods, Chorley
By Ben Rose
£ 249,995
Reviews
4 out of 5 stars
Ben Rose says ..
Ben Rose Estate Agents are pleased to present to the market this delightful two-bedroom mid terrace home in the much sought after area of Whittle-Le-Woods, Chorley. The properties location provides easy access to scenic walks while being just a short drive from Chorley town centre, where excellen...
Property Oracle says ..
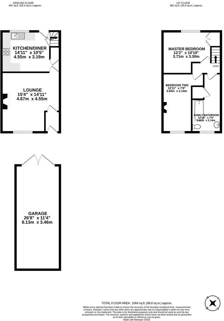
This property is a charming 2-bedroom terraced house located in Whittle-le-Woods, Lancashire. The property benefits from a modern kitchen and bathroom, and a well-maintained garden with a detached garden room/studio. The location is convenient, with nearby primary schools receiving good Ofsted ratings and train stations within a reasonable distance. However, the list price of £249,995 is significantly lower than the average house price in the area (£515,185), suggesting it may represent good value for money, especially considering the recent renovations apparent in the photos. The property appears to be in excellent condition and has character features. The small plot size is a potential drawback for some buyers.
Therefore, we give this property 8 / 10. *Disclaimer: This is our option and does constitute a recommendation or financial advice. Do your own research. *
- Price
- 9
- Condition
- 9
- Location
- 8
- Land
- 6
- Bedrooms
- 2
- Bathrooms
- 1
- Sqft (est)
- 1,064.00
The heatmap indicates the level of crime in the area. The color of the heatmap indicates the crime severity and recency.
Metrics Year-on-Year
- Average area value
- 254,219.00 £Decreased by 14.97 %
- Est sale value
- 317,072.00 £Increased by 33.63 %
- Average area rental value
- 1,214.00 £/moIncreased by 23.75 %
- Est letting value
- 1,064.00 £/mo
- Est rental Yield
- 5.73 %Increased by 45.43 %
- Crime Rate
- 22.00 %Unchanged by 0.00 %
Agent Activity
Ben Rose marked this listing as sold.
Ben Rose created the listing.
Nearby Schools
| Name | Type | Ofsted | Distance |
|---|---|---|---|
| Whittle-Le-Woods Church Of England Primary School | Voluntary Aided School | Good | 0.49 KM |
| Clayton-Le-Woods Manor Road Primary School | Community School | Good | 1.42 KM |
| Waterloo Lodge | Other Independent Special School | Good | 1.82 KM |
| St Bede'S Catholic Primary School | Voluntary Aided School | Good | 1.98 KM |
| Westwood Primary School | Community School | Good | 2.12 KM |
Images
Nearby Streets
| Name | Average Price | Average Sqft | Distance |
|---|---|---|---|
| Chapel Lane | £ 275,000 | 0 | 0.00 KM |
| Saint John's Close | £ 250,000 | 0 | 0.00 KM |
| Chapel Fold | £ 0 | 0 | 0.00 KM |
| The Walled Garden | £ 687,498 | 0 | 0.00 KM |
| Buckton Close | £ 499,950 | 0 | 0.00 KM |
Nearby Transport
| Name | NLC | TLC | Distance |
|---|---|---|---|
| Buckshaw Parkway | 7501 | BSV | 3.34 KM |
| Chorley | 2745 | CRL | 4.17 KM |
| Bamber Bridge | 2561 | BMB | 5.07 KM |
| Euxton Balshaw Lane | 2080 | EBA | 5.17 KM |
| Leyland | 2710 | LEY | 5.85 KM |
Nearby Listings
| Address | Price | Type | Score | Distance |
|---|---|---|---|---|
| Mount Pleasant, Whittle-Le-Woods, Chorley | £ 249,995 | BUY | 8 / 10 | 0.00 KM |
| Mount Pleasant, Whittle-Le-Woods, Chorley | £ 429,995 | BUY | 6 / 10 | 0.11 KM |
| Chorley Old Road, Whittle-Le-Woods, PR6 | £ 350,000 | BUY | 8 / 10 | 0.15 KM |
| Chorley Old Road, Whittle-Le-Woods, Chorley | £ 229,995 | BUY | 6 / 10 | 0.16 KM |
| Cross Keys Drive, Whittle-Le-Woods, Chorley, PR6 | £ 425,000 | BUY | 6 / 10 | 0.17 KM |
Nearby Properties
| Address | Price | Distance |
|---|---|---|
| 3 Mount Pleasant | £ 76,000 | 0.01 KM |
| 16 Mount Pleasant | £ 148,000 | 0.01 KM |
| 5 Mount Pleasant | £ 213,000 | 0.01 KM |
| 11 Mount Pleasant | £ 144,000 | 0.01 KM |
| 7 Mount Pleasant | £ 325,000 | 0.01 KM |