TH
Park Road, Dundee, DD3
By Thorntons Property Services
£ 220,000
Reviews
3 out of 5 stars
Thorntons Property Services says ..
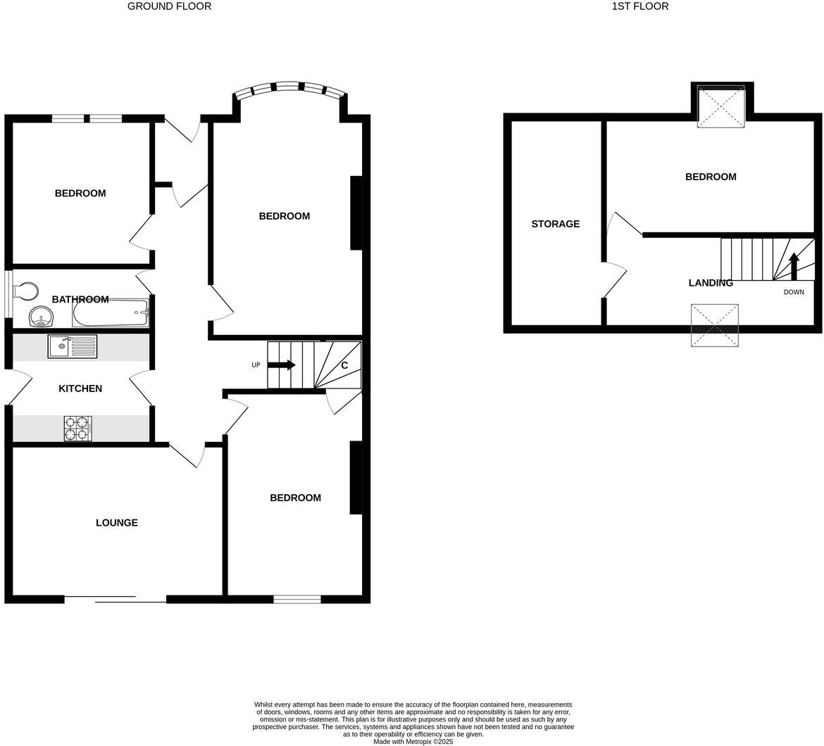
Versatile, semi-detached house located, in a desirable area of Dundee, which offers spacious accommodation over two levels, comprising; lounge with patio doors leading out to a composite decked area and onto the fully enclosed rear garden with patio area and timber sheds, four bedrooms, a kitc...
Property Oracle says ..
Therefore, we give this property 7 / 10. *Disclaimer: This is our option and does constitute a recommendation or financial advice. Do your own research. *
- Price
- 8
- Condition
- 7
- Location
- 6
- Land
- 7
- Bedrooms
- 4
- Bathrooms
- 1
- Sqft (est)
- 909.00
The heatmap indicates the level of crime in the area. The color of the heatmap indicates the crime severity and recency.
Metrics Year-on-Year
- Average area value
- 299,533.00 £Decreased by 4.46 %
- Est sale value
- 309,969.00 £Increased by 11.07 %
- Average area rental value
- 1,335.00 £/moIncreased by 8.54 %
- Est letting value
- 909.00 £/moUnchanged by 0.00 %
- Est rental Yield
- 5.35 %Increased by 13.59 %
- Crime Rate
- 0.00 %
from 313,511.00 £
from 279,063.00 £
from 1,230.00 £/mo
from 909.00 £/mo
from 4.71 %
from 0.00 %
Agent Activity
Thorntons Property Services created the listing.
Images
Nearby Streets
| Name | Average Price | Average Sqft | Distance |
|---|---|---|---|
| Fairmuir Square | £ 0 | 0 | 0.00 KM |
| Old Glamis Road | £ 0 | 0 | 0.00 KM |
| Fairmuir Street | £ 0 | 0 | 0.00 KM |
| Elgin Terrace | £ 135,000 | 0 | 0.00 KM |
| Kingsway Place | £ 0 | 0 | 0.00 KM |
Nearby Transport
| Name | NLC | TLC | Distance |
|---|---|---|---|
| Dundee | 9039 | DEE | 2.80 KM |
| Invergowrie | 8778 | ING | 9.26 KM |
Nearby Listings
| Address | Price | Type | Score | Distance |
|---|---|---|---|---|
| Park Road, Dundee, DD3 | £ 220,000 | BUY | 7 / 10 | 0.00 KM |
| Fairmuir Road, Dundee | £ 299,995 | BUY | Unknown | 0.07 KM |
| Fairmuir Road, Dundee, DD3 | £ 270,000 | BUY | 7 / 10 | 0.16 KM |
| 37 Kingsway Place, Dundee | £ 150,000 | BUY | 7 / 10 | 0.21 KM |
| Old Glamis Road, Dundee, Angus, DD3 | £ 285,000 | BUY | 6 / 10 | 0.33 KM |